Id 151085

Поселение Сосенское, ЖК «Новое Летово» - 47,6 кв. м. - Аренда / Помещение свободного назначения в новом ЖК.

адрес жилой комплекс Новое Летово, к2

Многофункциональный
С отдельным входом
Торговая
Жилой комплекс (мфк)
Новостройка

166 600 RUB | в месяц

(за 1 м2 — 3 500 RUB)

площадь 47.6 м2

QR код Qr код

Предлагается в аренду помещение свободного назначения в ЖК бизнес-класса «Новое Летово» по адресу: г. Москва, НАО, поселение Сосенское. Ближайшие станции метро: Филатов Луг – 10 мин. транспортом, Саларьево – 13 мин. транспортом, Прокшино – 10 мин. транспортом.
До 2028 года планируется открытие м. Летово в ~4 км от ЖК «Новое Летово»
Удаленность от МКАД 8 км

ЖК «Новое Летово» — это три многоквартирных дома бизнес-класса с переменной этажностью от 7 до 8 этажей, окружен рощами Валиевского лесопарка, в 8 км от МКАД на улице Зимёнковская, соединяющей Калужское и Киевское шоссе.
Развивающийся район, большой поток пешеходного и автомобильного трафика.
Рядом остановка общественного транспорта.

Перспективная локация в ЖК бизнес класса с дефицитом торговой инфраструктуры вокруг.

Помещение расположено в первых корпусах на въезде в ЖК (696 квартир)
С учетом строительства будущих очередей ЖК «Новое Летово» в зоне охвата будет расположено ~8 000 квартир
Кроме того, рядом расположено ~800 частных домов
В доме уже подписаны ПДА с Магнитом и ВкусВиллом.

Ввод объектов в эксплуатацию запланирован в 4 кв. 2024 г. – 2 кв. 2025 г.

Торговое окружение:
Рядом с ЖК - несколько супермаркетов и аптек.

Технические характеристики:
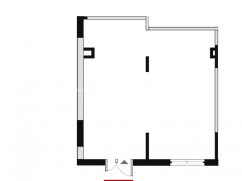
Общая площадь – 47,6 кв. м. (помещение №55), 1 этаж.
Отдельный вход.
Окна витринные по фасаду.
Свободная планировка.
Высота потолков – 4 м.
Электрическая мощность – по запросу.
Парковка перед входом.
Место для размещения рекламы.

Коммерческие условия:
Арендные платежи в месяц: 166 600 руб.
Ставка: 3 500 руб./м2/мес.

Технические характеристики

Тип здания: Многофункциональный,С отдельным входом,Торговая,Жилой комплекс (мфк),Новостройка

Общая площадь: 47.6  м2

Этаж: 1

Всего этажей: 8

Электрическая мощность: по запросу

Высота потолков: 4 м

Парковка: перед входом

Коммерческие условия

Цена в месяц: 166 600 RUB

ФОРМА ВЛАДЕНИЯ: -

карта

Расположение

Адрес: жилой комплекс Новое Летово, к2

Близость метро: Прокшино,Саларьево,Филатов Луг

Транспортная доступность: Удаленность от МКАД 8 км

Окружение

Торговое окружение: дефицит торговой инфраструктуры

Адрес:

жилой комплекс Новое Летово, к2

Округ:

Близость метро:

Прокшино,Саларьево,Филатов Луг

Транспортная доступность:

Удаленность от МКАД 8 км

карта

Торговое окружение:

дефицит торговой инфраструктуры

Общая площадь:

47.6  м2

Этаж:

1

Всего этажей:

8

Тип:

Многофункциональный,С отдельным входом,Торговая,Жилой комплекс (мфк),Новостройка

Электрическая мощность:

по запросу

Высота потолков:

4 м

Парковка:

перед входом

ФОРМА ВЛАДЕНИЯ:

-

Цена в месяц:

166 600 RUB

Планировка

Гервас Ксения

Ваш брокер по работе с клиентами

Найдите лучшее место
для жизни, бизнеса, инвестиций

Оставьте свои контакты — с вами свяжется руководитель отдела для презентации нужного вам объекта

Похожие объекты