Id 152498

Гостиничная 11с1 - 60,4 кв.м. / Продажа арендного бизнеса. СДЭК.

адрес Гостиничная 11с1

Многофункциональный
С отдельным входом

21 800 000 RUB | за все

(за 1 м2 — 360 927 RUB)

площадь 60.4 м2

QR код Qr код

Предлагаем к продаже арендный бизнес с помещением площадью 60,4 м2 в 2-этажном отдельностоящем здании в шаговой доступности от ТПУ Окружная (метро, МЦК, МЦД Окружная, ост. Аэроэкспресса в Шереметьево) по адресу: ул. Гостиничная, д. 11, стр. 1.
Помещение занимает арендатор - СДЭК

Первая линия 3-го Нижнелихоборского пр-да. Отличная транспортная доступность: между Дмитровским и Алтуфьевским ш., на пересечении СВХ и СЗХ.

Технические характеристики помещения:
- Отдельный вход с улицы;
- Стандартные окна по фасаду;
- Свободная планировка;
- Высота потолков 2,85 м;
- Мощность 10 кВт;
- Собственный с/у;
- Центральные коммуникации;
- Наземная парковка на территории комплекса.

Соседи: супермаркет "Чижик", автосалон "Автохаус".

Коммерческие условия:
Стоимость покупки: 21 800 000 рублей.
Стоимость за 1 кв.м.: 360 927 рублей.

МАП: 199 000 рублей.
ГАП: 2 388 000 рублей.
Окупаемость: 9,1 лет.

Технические характеристики

Тип здания: Многофункциональный,С отдельным входом

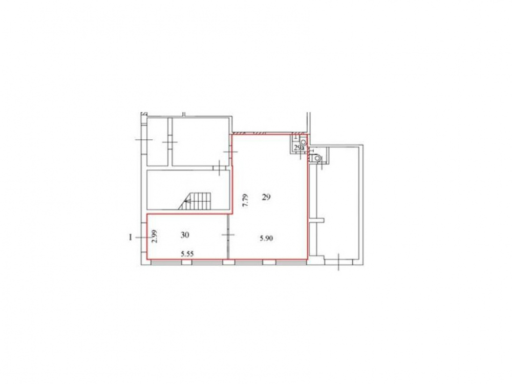
Общая площадь: 60.4  м2

Этаж: 1

Всего этажей: 2

Электрическая мощность: 10 кВт

Высота потолков: 2,85 м

Парковка: Наземная парковка на территории комплекса.

Коммерческие условия

Цена за все: 21 800 000 RUB

ФОРМА ВЛАДЕНИЯ: ИП

карта

Расположение

Адрес: Гостиничная 11с1

Округ: Северный административный округ

Близость метро: Владыкино (Серпуховско-Тимирязевская),Окружная,Петровско-разумовская

Транспортная доступность: в шаговой доступности от ТПУ Окружная (метро, МЦК, МЦД Окружная, ост. Аэроэкспресса в Шереметьево)

Окружение

Торговое окружение: Соседи: супермаркет

Адрес:

Гостиничная 11с1

Округ:

Северный административный округ

Близость метро:

Владыкино (Серпуховско-Тимирязевская),Окружная,Петровско-разумовская

Транспортная доступность:

в шаговой доступности от ТПУ Окружная (метро, МЦК, МЦД Окружная, ост. Аэроэкспресса в Шереметьево)

карта

Торговое окружение:

Соседи: супермаркет

Общая площадь:

60.4  м2

Этаж:

1

Всего этажей:

2

Тип:

Многофункциональный,С отдельным входом

Электрическая мощность:

10 кВт

Высота потолков:

2,85 м

Парковка:

Наземная парковка на территории комплекса.

ФОРМА ВЛАДЕНИЯ:

ИП

Цена за все:

21 800 000 RUB

Планировка

Гервас Ксения

Ваш брокер по работе с клиентами

Найдите лучшее место
для жизни, бизнеса, инвестиций

Оставьте свои контакты — с вами свяжется руководитель отдела для презентации нужного вам объекта

Похожие объекты