Id 154362

Москва, Пресненская набережная, д.10с2 - 23,7 кв.м. - Аренда торговой площади

адрес Москва, Пресненская набережная, д.10с2

С отдельным входом
Торговая
ТЦ

320 000 RUB | в месяц

(за 1 м2 — 13 333 RUB)

площадь 24.0 м2

QR код Qr код

Предлагается в аренду торговая площадь в IQ - квартала Москва Сити, по адресу: Москва, Пресненская набережная, дом 10с2. Помещение расположено на пешеходном трафике, на выходе из метро.

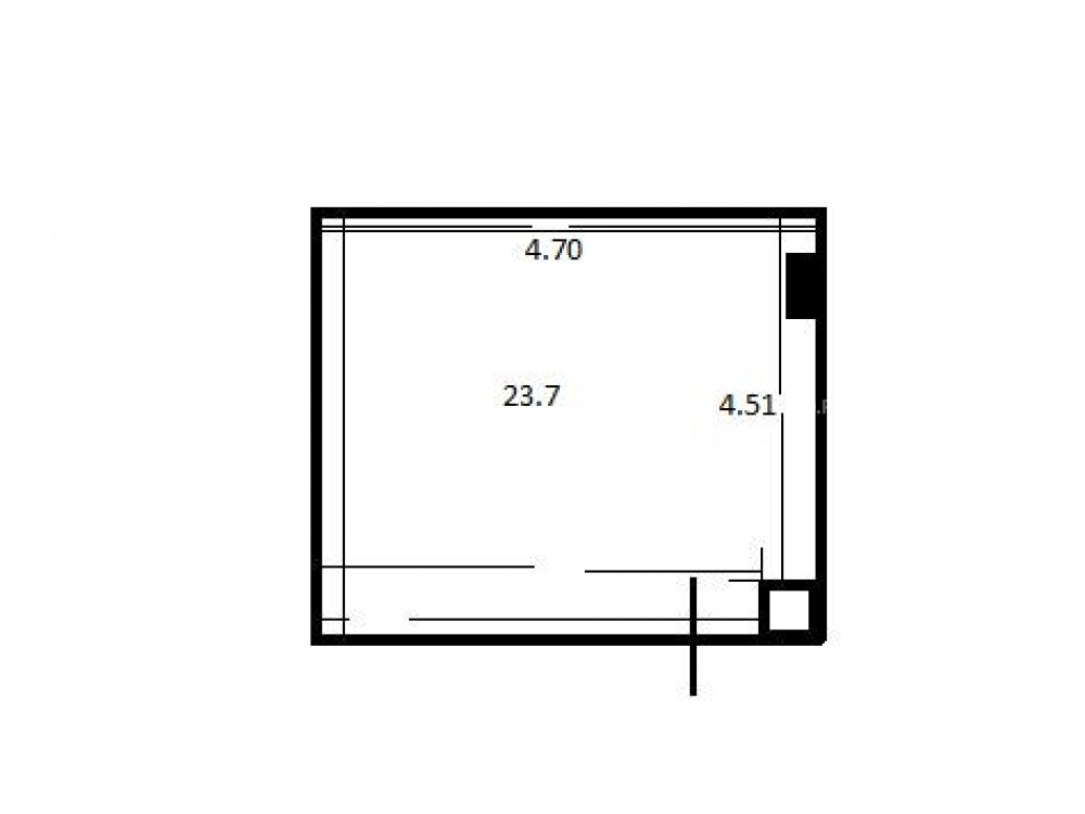
Технические харакетристики: площадь - 23,7 кв.м., на -1 этаже, приточно-вытяжная вентиляция, дымоотведение, хвс, гвс, канализация, электрическапя мощность - не менее 6 кВт.

Коммерческие условия:
Стоимость - 320 000 рублей в месяц
Депозит - 2 месяца, эксплуатационные и коммунальные расходы не входят в стоимость аренды.

Технические характеристики

Тип здания: С отдельным входом,Торговая,ТЦ

Общая площадь: 24  м2

Этаж: 1

Всего этажей: 3

Электрическая мощность: 6 кВт

Высота потолков: 3 м

Парковка: Подземная/Наземная

Коммерческие условия

Цена в месяц: 320 000 RUB

ФОРМА ВЛАДЕНИЯ: Юр. лицо

карта

Расположение

Адрес: Москва, Пресненская набережная, д.10с2

Близость метро: Деловой центр,Деловой центр (МЦК),Международная

Транспортная доступность: -

Окружение

Торговое окружение: -

Адрес:

Москва, Пресненская набережная, д.10с2

Округ:

Близость метро:

Деловой центр,Деловой центр (МЦК),Международная

Транспортная доступность:

-

карта

Торговое окружение:

-

Общая площадь:

24  м2

Этаж:

1

Всего этажей:

3

Тип:

С отдельным входом,Торговая,ТЦ

Электрическая мощность:

6 кВт

Высота потолков:

3 м

Парковка:

Подземная/Наземная

ФОРМА ВЛАДЕНИЯ:

Юр. лицо

Цена в месяц:

320 000 RUB

Планировка

Евгений

Ваш брокер по работе с клиентами

Найдите лучшее место
для жизни, бизнеса, инвестиций

Оставьте свои контакты — с вами свяжется руководитель отдела для презентации нужного вам объекта

Похожие объекты