Id 154870

Красногорск, ЖК Большое Путилково, к.28 - 70 кв.м / Продажа торгового помещения

адрес Красногорск, ЖК Большое Путилково, к.28

С отдельным входом
Торговая
Новостройка

25 464 478 RUB | за все

(за 1 м2 — 363 778 RUB)

площадь 70.0 м2

QR код Qr код

Предлагается в продажу помещение свободного назначения в ЖК "Большое Путилково".
Объект расположен в окружении плотного жилого массива. Жилой комплекс рассчитан на более 8000 квартир, более 20 000 жителей.
Удобная транспортная доступность и развитая инфраструктура.
Жилой комплекс «Большое Путилково» расположен на северо-западе Подмосковья –всего в 2,8 км от Москвы и в 15 минутах езды от метро «Сходневская» и "Планерная".
Торговое окружение: Пятёрочка, стоматология, Грузинская пекарня, Яндекса Маркет, Wow lounge.

Срок получения ключей - 1 кв. 2027 г.

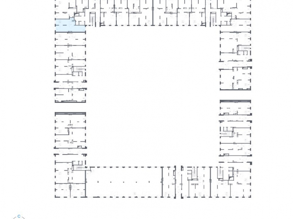
Технические характеристики: общая площадь 70 кв.м., 1й этаж жилого 25 этажного дома, электрическая мощность - 14 кВт., Отдельный вход, высота потолков 4,5 метра, Витринное остекление.

Коммерческие условия:
Стоимость - 25 464 478 рублей
Стоимость за кв.м - 363 882 рублей
Продажа от юр. лица, возможна рассрочка

Технические характеристики

Тип здания: С отдельным входом,Торговая,Новостройка

Общая площадь: 70  м2

Этаж: 1

Всего этажей: 25

Электрическая мощность: 14

Высота потолков: 4,5 м

Парковка: Стихийная

Коммерческие условия

Цена за все: 25 464 478 RUB

ФОРМА ВЛАДЕНИЯ: ДДУ

карта

Расположение

Адрес: Красногорск, ЖК Большое Путилково, к.28

Близость метро: Волоколамская

Транспортная доступность: в 15 минутах езды от метро «Сходневская» и

Окружение

Торговое окружение: Торговое окружение: Пятёрочка, стоматология, Грузинская пекарня, Яндекса Маркет, Wow lounge.

Адрес:

Красногорск, ЖК Большое Путилково, к.28

Округ:

Близость метро:

Волоколамская

Транспортная доступность:

в 15 минутах езды от метро «Сходневская» и

карта

Торговое окружение:

Торговое окружение: Пятёрочка, стоматология, Грузинская пекарня, Яндекса Маркет, Wow lounge.

Общая площадь:

70  м2

Этаж:

1

Всего этажей:

25

Тип:

С отдельным входом,Торговая,Новостройка

Электрическая мощность:

14

Высота потолков:

4,5 м

Парковка:

Стихийная

ФОРМА ВЛАДЕНИЯ:

ДДУ

Цена за все:

25 464 478 RUB

Планировка

Ирина Головина

Ваш брокер по работе с клиентами

Найдите лучшее место
для жизни, бизнеса, инвестиций

Оставьте свои контакты — с вами свяжется руководитель отдела для презентации нужного вам объекта

Похожие объекты