Id 154946

МОСКВА, ТиНАО, пос. Сосенское ЖК СКАНДИНАВИЯ корп. 18.2.4 / 107.2 м.кв/ Продажа торгового помещения

адрес ЖК Скандинавия, 18.2.4

С отдельным входом
Торговая
Жилой комплекс (мфк)
Новостройка

30 797 488 RUB | за все

(за 1 м2 — 287 290 RUB)

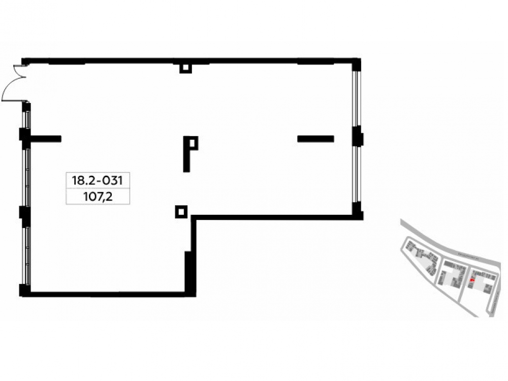
площадь 107.2 м2

QR код Qr код

Продажа торгового помещения в ЖК "Скандинавия" корп.18.2.4
Жилой Комплекс «Скандинавия» в Новой Москве — это 79 корпусов от 7 до 17 этажей. Первое жильё сдали в 2020 году, а последние строят рядом со станцией метро «Потапово».
Население 70 тыс. жителей.
На юге комплекса ГК «А101» создаёт район бизнес-класса – со своей инфраструктурой, пешеходными пространствами и точками притяжения.

Транспортная доступность:
8 минут пешком до станции метро «Потапово»
2 км – станция метро «Коммунарка»
2,5 км – станция метро «Бачуринская» (2024 г.)
1,7 км – станция метро «Бунинская аллея»
6,4 км до МКАД
Удобный выезд на трассу СБВ (Солнцево – Бутово – Варшавское шоссе)

Технические характеристики:
Площадь помещения 107.2 м.кв. Отдельный вход. Есть возможность организации 2го уровня (потолки 5.76 м). Помещение расположено на 1-м этаже 17-ти этажного жилого дома, находящегося в центре жилого квартала.
Мощность электросети 20.4 кВт. Центральные коммуникации. Сигнализация и дымоудаление. Нагрузка на пол 800 кг/м2. Парковка у фасада.

Выдача ключей - 4 квартал 2026г.

Коммерческие условия:
Стоимость помещения: 30 797 488 руб.
Стоимость м.кв.: 287 290 руб.

Технические характеристики

Тип здания: С отдельным входом,Торговая,Жилой комплекс (мфк),Новостройка

Общая площадь: 107.2  м2

Этаж: 1

Всего этажей: 17

Электрическая мощность: 20.4 кВт

Высота потолков: 5.76 м

Парковка: есть

Коммерческие условия

Цена за все: 30 797 488 RUB

ФОРМА ВЛАДЕНИЯ: -

карта

Расположение

Адрес: ЖК Скандинавия, 18.2.4

Близость метро: Коммунарка,Потапово

Транспортная доступность: 8 минут пешком до станции метро Потапово

Окружение

Торговое окружение: развитое

Адрес:

ЖК Скандинавия, 18.2.4

Округ:

Близость метро:

Коммунарка,Потапово

Транспортная доступность:

8 минут пешком до станции метро Потапово

карта

Торговое окружение:

развитое

Общая площадь:

107.2  м2

Этаж:

1

Всего этажей:

17

Тип:

С отдельным входом,Торговая,Жилой комплекс (мфк),Новостройка

Электрическая мощность:

20.4 кВт

Высота потолков:

5.76 м

Парковка:

есть

ФОРМА ВЛАДЕНИЯ:

-

Цена за все:

30 797 488 RUB

Планировка

Гервас Ксения

Ваш брокер по работе с клиентами

Найдите лучшее место
для жизни, бизнеса, инвестиций

Оставьте свои контакты — с вами свяжется руководитель отдела для презентации нужного вам объекта

Похожие объекты