Id 156116

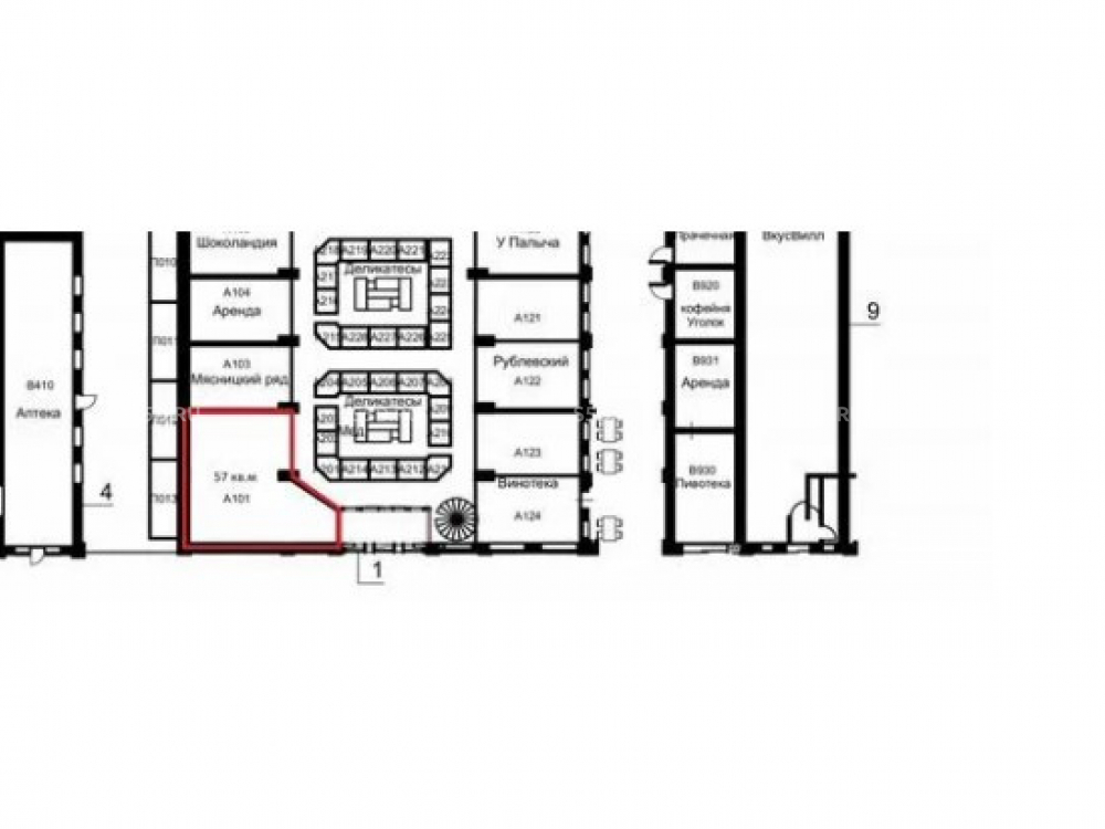
Москва, ул. Рогожский Вал, 5с1 - 57 кв.м. - Аренда помещения под общепит. Рогожский рынок.

адрес Москва, улица Рогожский Вал, 5с1

Многофункциональный
Торговая
Общепит

513 000 RUB | в месяц

(за 1 м2 — 9 000 RUB)

площадь 57.0 м2

QR код Qr код

Аренда помещения под ресторан (корнер) на Рогожском рынке. Адрес: Москва, ул. Рогожский Вал, 5с1. Тaгaнский paйoн.
Пeрвая линия Гаcтрoмаркета. Доступ через центральный вход.
Рогожский рынок - это уникальное пространство, объединившее в себе колоритные гастро-концепции культур Востока и Запада и наследие традиционного рынка - фермерские хозяйства, с любовью создающие качественный продукт, фруктово-овощные развалы и лавочки с деликатесами.

Вокруг рынка находятся жилой массив, школа, трамвайная и автобусные остановки, м. Римская и м. Площадь Ильича.
Удобный выезд на ТТК и Шоссе Энтузиастов.

В 3-4 минутах ходьбы - крупный БЦ Gоldеn Gаtе, МФЦ, офисы ВТБ, Сбербанка и Альфа банка.
Посещаемость рынка: более 200 000 чел./мес.

Технические характеристики:
Пoмещениe с отдельным входом с улицы расположено нa 1-м этажe. Витpинное остекление. Место для вывески. Удобная зона разгрузки. Парковка.
Электрическая мощность - по запросу.
На общей площади рынка располагаются две веранды.
Есть возможность дополнительно арендовать складское помещение или холодильную камеру, воспользоваться услугами ветлаборатории.

Коммерческие условия:
Стоимость аренды: 513 000 руб./мес.
Ставка аренды за кв.м./мес: 9 000 руб.
Коммунальные платежи по счетчику.

Технические характеристики

Тип здания: Многофункциональный,Торговая,Общепит

Общая площадь: 57  м2

Этаж: 1

Всего этажей: 2

Электрическая мощность: -

Высота потолков: -

Парковка: есть

Коммерческие условия

Цена в месяц: 513 000 RUB

ФОРМА ВЛАДЕНИЯ: -

карта

Расположение

Адрес: Москва, улица Рогожский Вал, 5с1

Округ: Центральный административный округ

Близость метро: Площадь Ильича,Римская

Транспортная доступность: м. Римская и м. Площадь Ильича. Удобный выезд на ТТК и Шоссе Энтузиастов.

Окружение

Торговое окружение: В 3-4 минутах ходьбы - крупный БЦ Gоldеn Gаtе, МФЦ, офисы ВТБ, Сбербанка и Альфа банка.

Адрес:

Москва, улица Рогожский Вал, 5с1

Округ:

Центральный административный округ

Близость метро:

Площадь Ильича,Римская

Транспортная доступность:

м. Римская и м. Площадь Ильича. Удобный выезд на ТТК и Шоссе Энтузиастов.

карта

Торговое окружение:

В 3-4 минутах ходьбы - крупный БЦ Gоldеn Gаtе, МФЦ, офисы ВТБ, Сбербанка и Альфа банка.

Общая площадь:

57  м2

Этаж:

1

Всего этажей:

2

Тип:

Многофункциональный,Торговая,Общепит

Электрическая мощность:

-

Высота потолков:

-

Парковка:

есть

ФОРМА ВЛАДЕНИЯ:

-

Цена в месяц:

513 000 RUB

Планировка

Шагитов Марат

Ваш брокер по работе с клиентами

Найдите лучшее место
для жизни, бизнеса, инвестиций

Оставьте свои контакты — с вами свяжется руководитель отдела для презентации нужного вам объекта

Похожие объекты