Id 156144

Колдунова 1 - 37 кв.м / Аренда торгового помещения

адрес Балашиха, улица Колдунова, 1

Торговая

185 000 RUB | в месяц

(за 1 м2 — 5 000 RUB)

площадь 37.0 м2

QR код Qr код

Аренда помещения свободного назначения по адресу: Балашиха, ул.Колдунова 1 , ЖК квартал авиаторов к8. Объект расположен в центре густонаселенного жилого района .Население более 20 000 жителей.
Торговое соседство : Пятерочка , Магнит.

Технические характеристики:
Первый этаж 14-ти этажного жилого дома, площадью 123.7 м2. Зальная планировка, витринные окна, высота потолков: 3,3 м. Выделенная мощность: 10кВт с возможностью увеличения.

Помещение в бетоне.Передача ключей сентябрь 2025 .

Коммерческие условия:
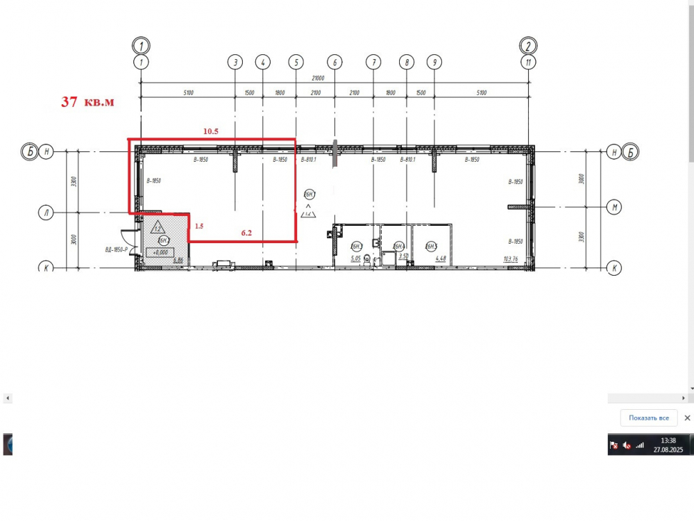
Площадь: 37 м2.
Стоимость аренды в месяц: 185 000 рублей.
Стоимость аренды за м2: 5 000 рублей.

Технические характеристики

Тип здания: Торговая

Общая площадь: 37  м2

Этаж: 1

Всего этажей: 20

Электрическая мощность: 24.6

Высота потолков: 3.3

Парковка: У помещения

Коммерческие условия

Цена в месяц: 185 000 RUB

ФОРМА ВЛАДЕНИЯ: Собственность

карта

Расположение

Адрес: Балашиха, улица Колдунова, 1

Близость метро: Авиамоторная

Транспортная доступность: -

Окружение

Торговое окружение: Пятерочка,Магнит

Адрес:

Балашиха, улица Колдунова, 1

Округ:

Близость метро:

Авиамоторная

Транспортная доступность:

-

карта

Торговое окружение:

Пятерочка,Магнит

Общая площадь:

37  м2

Этаж:

1

Всего этажей:

20

Тип:

Торговая

Электрическая мощность:

24.6

Высота потолков:

3.3

Парковка:

У помещения

ФОРМА ВЛАДЕНИЯ:

Собственность

Цена в месяц:

185 000 RUB

Планировка

Гринь Алексей

Ваш брокер по работе с клиентами

Найдите лучшее место
для жизни, бизнеса, инвестиций

Оставьте свои контакты — с вами свяжется руководитель отдела для презентации нужного вам объекта

Похожие объекты