Id 156956

Ногинск, ул Комсомольская 24 А / 656 м2/ Аренда ПСН

адрес Ногинск, Комсомольская улица, 24А

Особняк/здание
С отдельным входом
Торговая

1 100 000 RUB | за все

(за 1 м2 — 1 677 RUB)

площадь 656.0 м2

QR код Qr код

Сдается помещение в двух уровнях в отдельно стоящем здании в самом центре г Ногинск по адресу: Московская обл., г. Ногинск, ул. Комсомольская 24 А. Помещение в центре города, на первой линии, на очень активном трафике, развитая инфраструктура, в 7 мин от ж/д станции «Ногинск» и центрального автовокзала, откуда отправляются электрички и автобусы в Москву.

Технические характеристики:
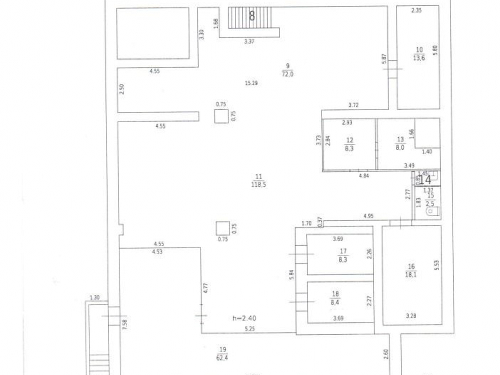
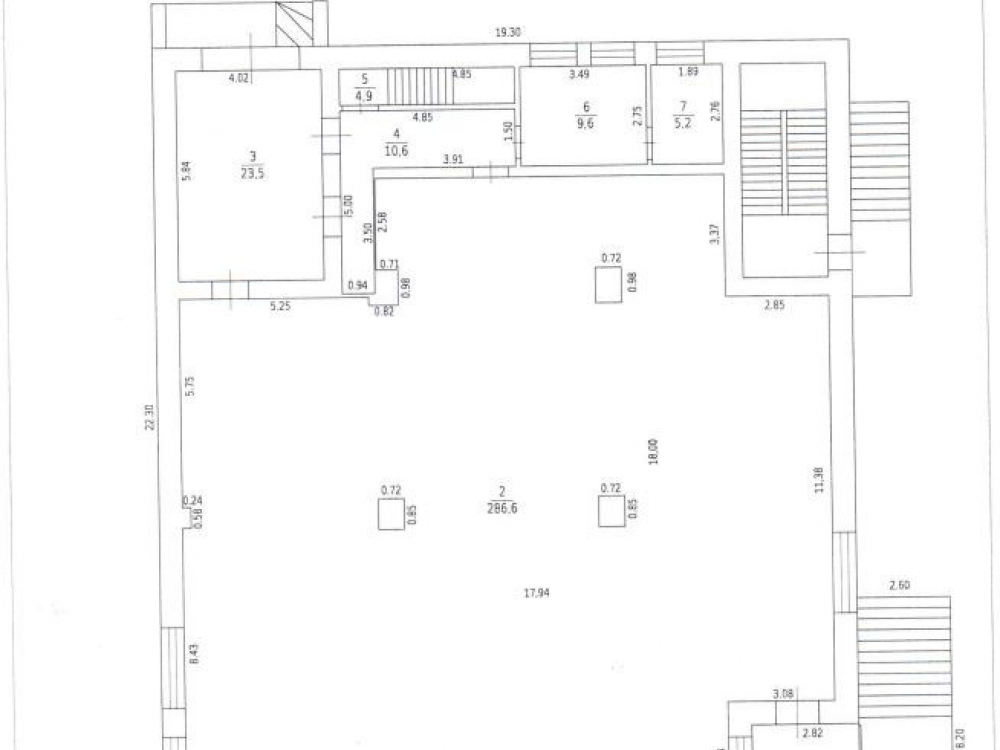
Помещение общей площадью 656 м2 (1-й этаж 276 м2 (еще на 114 м2 сидит КБ), -1 этаж - 380 м2), открытая планировка, высота потолков 3м. Коммуникации центральные (Электричество 50 кВт, возможно увеличение до 100 кВт).

Коммерческие условия:
Стоимость аренды за весь объект 1 100 000 руб.
Стоимость аренды за 1 кв.м - 1 677 руб.

Технические характеристики

Тип здания: Особняк/здание,С отдельным входом,Торговая

Общая площадь: 656  м2

Этаж: 1

Всего этажей: 2

Электрическая мощность: 50

Высота потолков: 3

Парковка: наземная городская

Коммерческие условия

Цена за все: 1 100 000 RUB

ФОРМА ВЛАДЕНИЯ: собственность

карта

Расположение

Адрес: Ногинск, Комсомольская улица, 24А

Близость метро: Курская

Транспортная доступность: в 5-ти мин от автовокзала

Окружение

Торговое окружение: пвз, кафе, продуктовые

Адрес:

Ногинск, Комсомольская улица, 24А

Округ:

Близость метро:

Курская

Транспортная доступность:

в 5-ти мин от автовокзала

карта

Торговое окружение:

пвз, кафе, продуктовые

Общая площадь:

656  м2

Этаж:

1

Всего этажей:

2

Тип:

Особняк/здание,С отдельным входом,Торговая

Электрическая мощность:

50

Высота потолков:

3

Парковка:

наземная городская

ФОРМА ВЛАДЕНИЯ:

собственность

Цена за все:

1 100 000 RUB

Планировка

Субботина Анна

Ваш брокер по работе с клиентами

Найдите лучшее место
для жизни, бизнеса, инвестиций

Оставьте свои контакты — с вами свяжется руководитель отдела для презентации нужного вам объекта

Похожие объекты