Id 157005

ЖК Вейв, Москва, ул. Борисовские пруды 1 - 52.7 м2 / Продажа ПСН

адрес Москва, улица Борисовские Пруды, 1

С отдельным входом
Торговая
Новостройка

44 122 021 RUB | за все

(за 1 м2 — 837 230 RUB)

площадь 52.7 м2

QR код Qr код

Продажа помещения свободного назначения в ЖК бизнес класса Вейв, по адресу: город Москва, Москворечье-Сабурово район, улица Борисовские пруды 1. Огромная плотность жилой высотной застройки. ЖК при полном заселении будет насчитывать 15 000 жителей. Шаговая доступность до метро.

Технические характеристики:
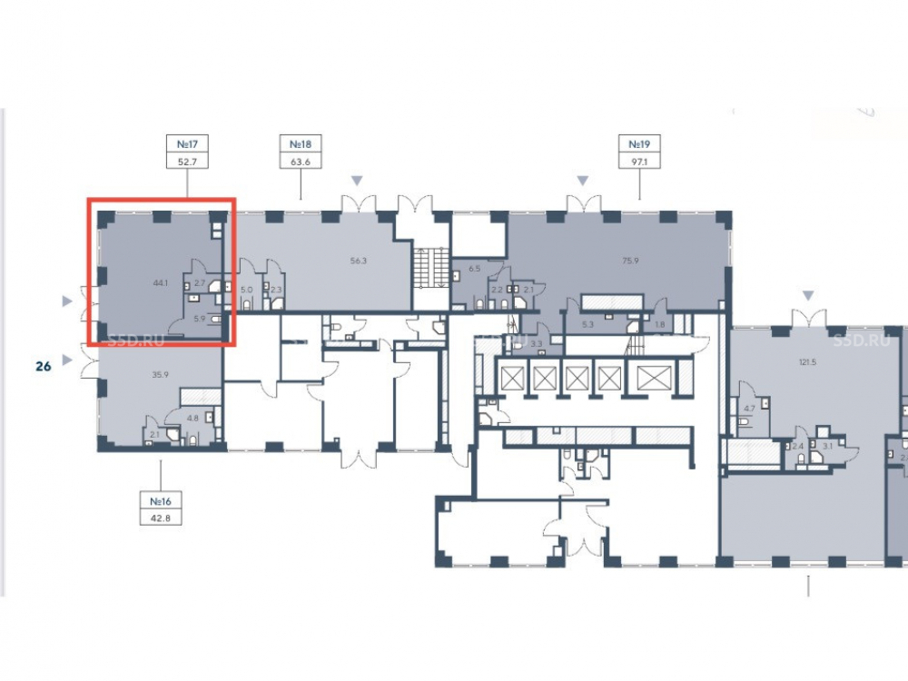
Общая площадь 52.7 м2. 1-й этаж жилого дома, угловое помещение. Квадратная ровная планировка. Отдельный вход с улицы. Витринное остекление. Мокрая точка. Эл. мощность 13 кВт. Все центральные коммуникации.

Коммерческие условия:
Стоимость объекта - 44 122 021 руб.
Стоимость за м2 - 837 230 руб.
Продажа по ДДУ.
Срок сдачи 2 квартал 2026 г.

Технические характеристики

Тип здания: С отдельным входом,Торговая,Новостройка

Общая площадь: 52.7  м2

Этаж: 1

Всего этажей: 52

Электрическая мощность: 13 кВт

Высота потолков: 4.5 м.

Парковка: -

Коммерческие условия

Цена за все: 44 122 021 RUB

ФОРМА ВЛАДЕНИЯ: юр. лицо

карта

Расположение

Адрес: Москва, улица Борисовские Пруды, 1

Округ: Южный административный округ

Близость метро: Борисово

Транспортная доступность: Станция Д2 Москворечье 12 минут пешком, станция метро Борисово в 25 минутах пешком.

Окружение

Торговое окружение: -

Адрес:

Москва, улица Борисовские Пруды, 1

Округ:

Южный административный округ

Близость метро:

Борисово

Транспортная доступность:

Станция Д2 Москворечье 12 минут пешком, станция метро Борисово в 25 минутах пешком.

карта

Торговое окружение:

-

Общая площадь:

52.7  м2

Этаж:

1

Всего этажей:

52

Тип:

С отдельным входом,Торговая,Новостройка

Электрическая мощность:

13 кВт

Высота потолков:

4.5 м.

Парковка:

-

ФОРМА ВЛАДЕНИЯ:

юр. лицо

Цена за все:

44 122 021 RUB

Планировка

Лев

Ваш брокер по работе с клиентами

Найдите лучшее место
для жизни, бизнеса, инвестиций

Оставьте свои контакты — с вами свяжется руководитель отдела для презентации нужного вам объекта

Похожие объекты