Id 157042

г. Москва, Харьковский пер. 7к1А - 60м2 / Аренда ПСН

адрес г. Москва, Харьковский пер. 7к1А

С отдельным входом
Торговая

120 000 RUB | в месяц

(за 1 м2 — 2 000 RUB)

площадь 60.0 м2

QR код Qr код

Предлагается в аренду помещение свободного назначение в 16-ти этажном панельном жилом доме 1980 года постройки по адресу: г. Москва, Харьковский пер. 7к1А
Помещение расположено в окружении густонаселенного жилого массива с высокой покупательской способностью.
Станция МЦД (D-2) Красный строитель и Покровское в 900 метрах (12 минут пешком.)
ЖД станция: Бирюлёво-Товарная (870 метров - 10 минут пешком)
Торговое окружение: ПВЗ ВБ, ВкусВилл, Горздрав, Сбербанк.

Технические характеристики:
Общая площадь 60м2. Высота потолков 2,6м. Мощность электроэнергии 20кВт (возможно увеличить). Четыре отдельных входа. Место для рекламы. Все центральные коммуникации. Открытая парковка у помещения.

Коммерческие условия:
Стоимость аренды: 120 000 рублей в месяц
Стоимость аренды за 1 м2: 2 000 рублей.
Арендные каникулы обсуждаются.

Технические характеристики

Тип здания: С отдельным входом,Торговая

Общая площадь: 60  м2

Этаж: 1

Всего этажей: 16

Электрическая мощность: 55

Высота потолков: 4.9

Парковка: открытая, общая

Коммерческие условия

Цена в месяц: 120 000 RUB

ФОРМА ВЛАДЕНИЯ: собственность

карта

Расположение

Адрес: г. Москва, Харьковский пер. 7к1А

Округ: Южный административный округ

Близость метро: Красный строитель,Покровское

Транспортная доступность: В 5-ти минутах пешком станция МЦД Грачевская

Окружение

Торговое окружение: Пятерочка, Магнит, ВкусВилл.

Адрес:

г. Москва, Харьковский пер. 7к1А

Округ:

Южный административный округ

Близость метро:

Красный строитель,Покровское

Транспортная доступность:

В 5-ти минутах пешком станция МЦД Грачевская

карта

Торговое окружение:

Пятерочка, Магнит, ВкусВилл.

Общая площадь:

60  м2

Этаж:

1

Всего этажей:

16

Тип:

С отдельным входом,Торговая

Электрическая мощность:

55

Высота потолков:

4.9

Парковка:

открытая, общая

ФОРМА ВЛАДЕНИЯ:

собственность

Цена в месяц:

120 000 RUB

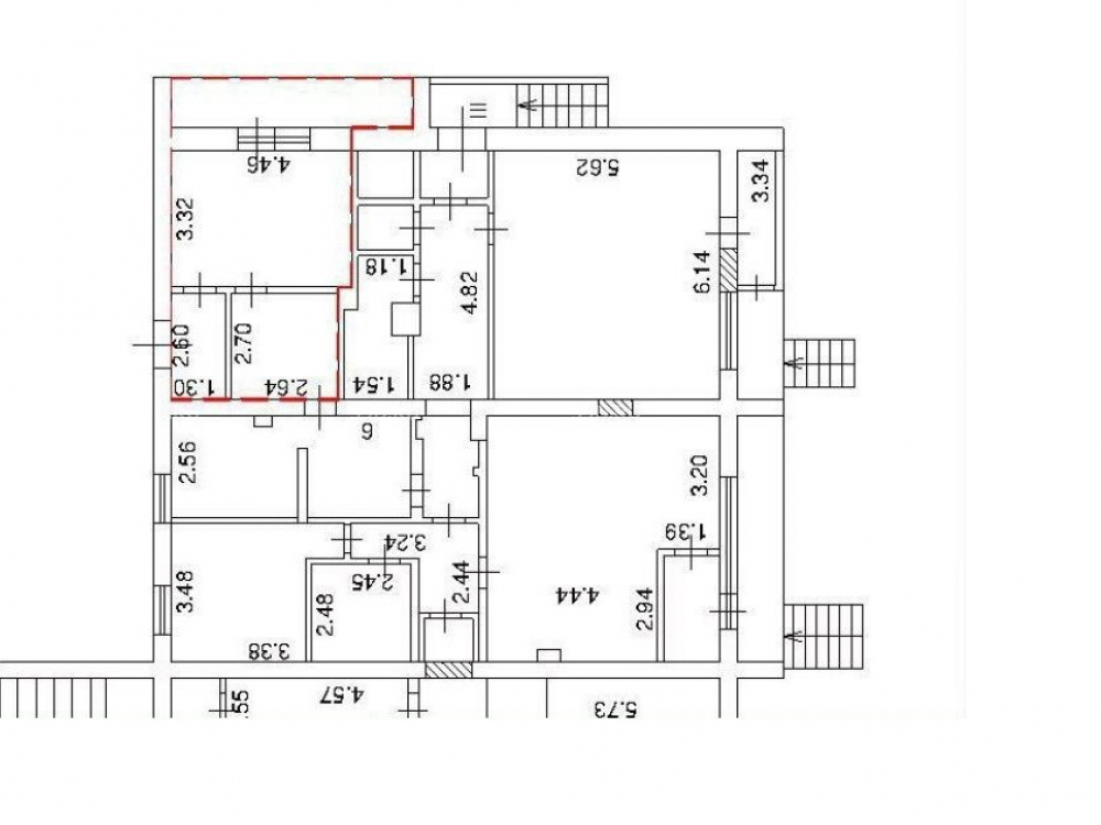
Планировка

Никифоров Андрей

Ваш брокер по работе с клиентами

Найдите лучшее место
для жизни, бизнеса, инвестиций

Оставьте свои контакты — с вами свяжется руководитель отдела для презентации нужного вам объекта

Похожие объекты