Id 157199

г. Москва, Автомобильный проезд, 4 (ЖК N`ICE LOFT корп. 7) - 54.27м2/ Продажа ПСН с НДС

адрес Москва, Автомобильный проезд, 4

С отдельным входом
Торговая

33 104 700 RUB | за все

(за 1 м2 — 609 663 RUB)

площадь 54.3 м2

QR код Qr код

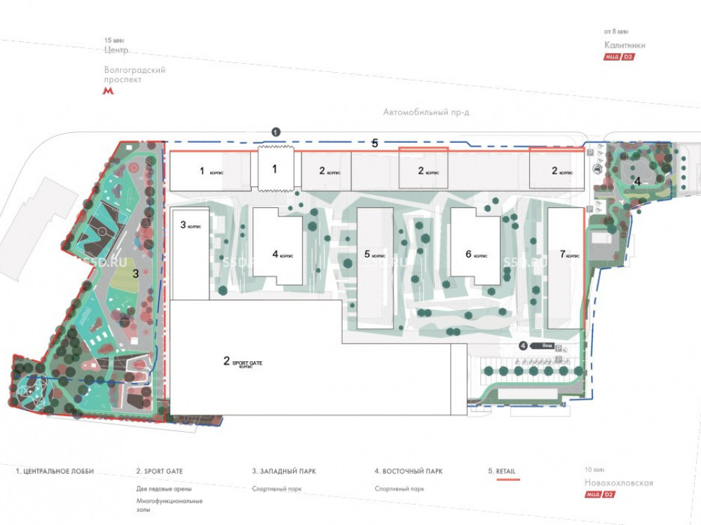
Продажа помещения свободного назначения в апарт – комплексе бизнес-класса N`ICE LOFT (корпус 7) по адресу: г. Москва, Автомобильный проезд, 4
Ближайшие станции метро: Волгоградский проспект – 10 мин. транспортом, ст. Калитники (линия D2) – 8 мин. ходьбы. За 10 минут на машине можно добраться до Садового Кольца, за 6 мин. на машине до Таганского парка.

N`ICE LOFT – комплекс апартаментов бизнес-класса на границе Таганского и Нижегородского районов Москвы. Помимо жилых корпусов на территории построены полноценные спортивные зоны и ледовые арены.
Комплекс состоит из 7 корпусов, в которые входят 2240 апартаментов. Территория площадью 2,7 га создана по всем современным законам урбанистики и направлена на максимальный инфраструктурный комфорт резидентов. Продуманная среда обеспечит не только непрерывный процесс циркуляции клиентских потоков внутри комплекса, но и станет точкой притяжении 3 соседствующих районов численность которых составляет 280 тыс. человек. 15 000 жителей проживает в радиусе 1,5 км. Стабильный пешеходный трафик.

Корпус сдан в феврале 2025 года!

Торговое окружение:
Рядом расположены пиццерия Фигаро, магазин белья и купальников Би Ангел корсет, музыкальный магазин Allb Music, столовая Еда по-домашнему, магазин галантереи и аксессуаров Оптекс-Рус, магазин мебели, кафе, магазин чая Altai herb, супермаркет Перекресток, магазин продуктов Торговый Дом Лабаз.

Технические характеристики:
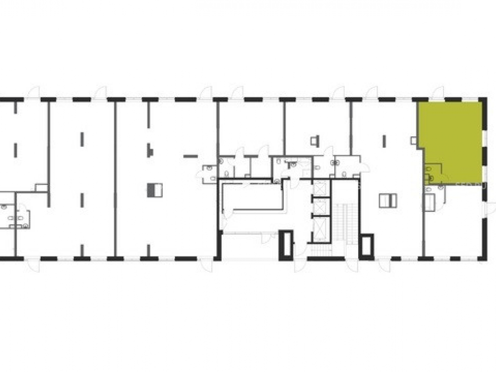
Общая площадь помещения 54.27м2, 1 этаж, 1 отдельный вход, витринные окна. Высокие потолки - 5.1 метр (возможность организации антресоли) Электрическая мощность – 11 кВт. Центральные коммуникации (ГВС / ХВС, канализация, отопление). Возможность установки вент. оборудования и кондицианирования.

Коммерческие условия:
Стоимость объекта – 33 104 700 рублей с НДС
Стоимость за 1 кв. м. – 610 000 рублей.
ДКПн (ООО с НДС)

Технические характеристики

Тип здания: С отдельным входом,Торговая

Общая площадь: 54.3  м2

Этаж: 1

Всего этажей: 20

Электрическая мощность: 11 кВт

Высота потолков: 5.1м

Парковка: открытая, общая

Коммерческие условия

Цена за все: 33 104 700 RUB

ФОРМА ВЛАДЕНИЯ: собственность

карта

Расположение

Адрес: Москва, Автомобильный проезд, 4

Округ: Юго-Восточный административный округ

Близость метро: Волгоградский проспект

Транспортная доступность: Волгоградский проспект – 10 мин. транспортом, ст. Калитники (линия D2) – 8 мин. ходьбы.

Окружение

Торговое окружение: пиццерия Фигаро, магазин белья и купальников Би Ангел корсет, музыкальный магазин Allb Music, столовая Еда по-домашнему, магазин галантереи и аксессуаров Оптекс-Рус, магазин мебели, кафе, магазин чая Altai herb, супермаркет Перекресток, магазин продуктов Торговый Дом Лабаз.

Адрес:

Москва, Автомобильный проезд, 4

Округ:

Юго-Восточный административный округ

Близость метро:

Волгоградский проспект

Транспортная доступность:

Волгоградский проспект – 10 мин. транспортом, ст. Калитники (линия D2) – 8 мин. ходьбы.

карта

Торговое окружение:

пиццерия Фигаро, магазин белья и купальников Би Ангел корсет, музыкальный магазин Allb Music, столовая Еда по-домашнему, магазин галантереи и аксессуаров Оптекс-Рус, магазин мебели, кафе, магазин чая Altai herb, супермаркет Перекресток, магазин продуктов Торговый Дом Лабаз.

Общая площадь:

54.3  м2

Этаж:

1

Всего этажей:

20

Тип:

С отдельным входом,Торговая

Электрическая мощность:

11 кВт

Высота потолков:

5.1м

Парковка:

открытая, общая

ФОРМА ВЛАДЕНИЯ:

собственность

Цена за все:

33 104 700 RUB

Планировка

Никифоров Андрей

Ваш брокер по работе с клиентами

Найдите лучшее место
для жизни, бизнеса, инвестиций

Оставьте свои контакты — с вами свяжется руководитель отдела для презентации нужного вам объекта

Похожие объекты