Id 157610

ул. Братьев Бромлей, 5к2 - 51,5 кв. м. - Аренда / Торговое помещение

адрес улица Братьев Бромлей, 5к2

С отдельным входом
Торговая
Жилой комплекс (мфк)

160 000 RUB | в месяц

(за 1 м2 — 3 107 RUB)

площадь 51.5 м2

QR код Qr код

Аренда торгового помещения в перспективном районе Новой Москвы (ЖК «Середневский лес»).
Адрес: г. Москва, НАО, мкр. Филимонковский, ул. Братьев Бромлей, 5к2. ЖК «Середневский лес» строится в Новой Москве, недалеко от Валуевского леса. В 15 минутах на автомобиле две станции метро «Филатов луг» и «Саларьево», от них до центра Москвы всего 35 минут. На рейсовом автобусе от жилого квартала до метро «Филатов луг» - 20 минут. Развитая инфраструктура: в шаговой доступности будут расположены школа, детский сад, игровые площадки и крупная детская зона PlayHub.

Технические характеристики:
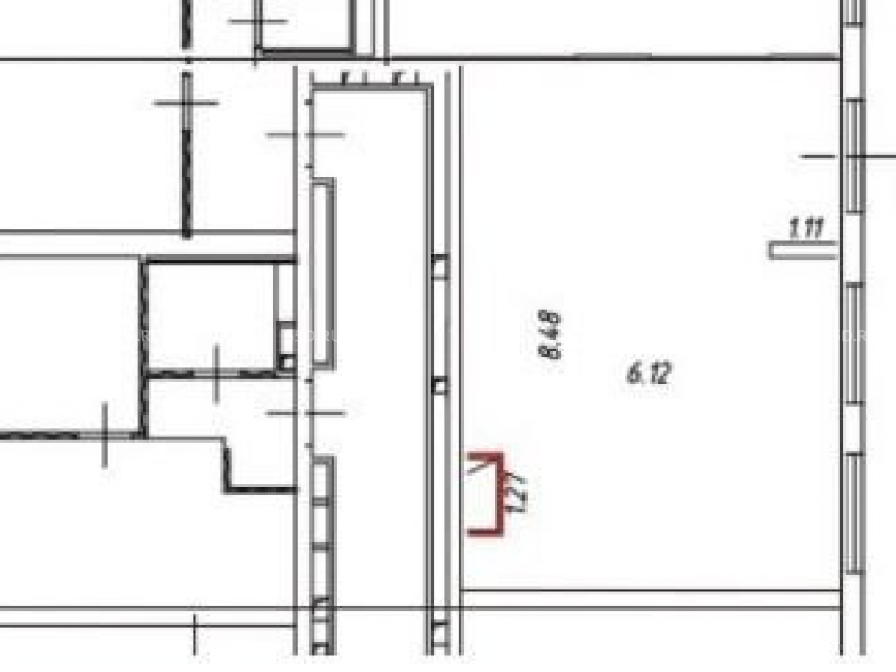
Общая площадь: 51,5 кв. м. (Помещение 18Н). 1-й этаж, отдельный вход. Витринные окна. Высота потолков: 4,09 м. Коммуникации: Электрическая мощность 20 кВт, подведены стояки холодной и горячей воды, канализации, отопление (радиаторы).

Помещение отлично подойдет для формата «у дома»: продуктовый магазин, аптека, кофейня, пекарня, салон красоты, барбершоп, цветочный магазин, служба быта и другие виды бизнеса.

Коммерческие условия:
Арендная ставка: 160 000 рублей в месяц.
Ставка за 1 кв. м. в месяц: 3 106 рублей.
Прямая долгосрочная аренда.
Коммунальные услуги: Оплачиваются отдельно.
Обеспечительный платеж: 1 месяц аренды.
Арендные каникулы: Предоставляются для ремонта.
Условия аренды обсуждаются с каждым арендатором индивидуально.

Технические характеристики

Тип здания: С отдельным входом,Торговая,Жилой комплекс (мфк)

Общая площадь: 51.5  м2

Этаж: 1

Всего этажей: 9

Электрическая мощность: 20 кВт

Высота потолков: 4.09 м

Парковка: по запросу

Коммерческие условия

Цена в месяц: 160 000 RUB

ФОРМА ВЛАДЕНИЯ: по запросу

карта

Расположение

Адрес: улица Братьев Бромлей, 5к2

Близость метро: Саларьево,Филатов Луг

Транспортная доступность: транспортом

Окружение

Торговое окружение: развитое торговое окружение

Адрес:

улица Братьев Бромлей, 5к2

Округ:

Близость метро:

Саларьево,Филатов Луг

Транспортная доступность:

транспортом

карта

Торговое окружение:

развитое торговое окружение

Общая площадь:

51.5  м2

Этаж:

1

Всего этажей:

9

Тип:

С отдельным входом,Торговая,Жилой комплекс (мфк)

Электрическая мощность:

20 кВт

Высота потолков:

4.09 м

Парковка:

по запросу

ФОРМА ВЛАДЕНИЯ:

по запросу

Цена в месяц:

160 000 RUB

Планировка

Виталий

Ваш брокер по работе с клиентами

Найдите лучшее место
для жизни, бизнеса, инвестиций

Оставьте свои контакты — с вами свяжется руководитель отдела для презентации нужного вам объекта

Похожие объекты