Id 157953

Ташкентская 18к1/ 146кв.м. / Аренда торгового помещения

адрес Москва, Ташкентская улица, 18к1

Торговая

700 000 RUB | в месяц

(за 1 м2 — 4 795 RUB)

площадь 146.0 м2

QR код Qr код

Предлагается в аренду помещение свободного назначения, расположенное по адресу: Ташкентская 18, к. 1

Отдельный вход. Объект находится 1 линии домов, на оживленной улице, в 3 минутах пешком от м. Юго-Восточная, район со сложившейся инфраструктурой и постоянным высоким пешеходным трафиком. Устоявшееся торговое соседство- Вкус Вилл, Дикси, бары, аптеки и тд
Отличная видимость с автомобильной дороги, рядом остановка общественного транспорта.
Район с с высокой плотностью застройки многоквартирными жилыми домами.

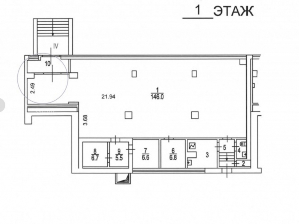
Технические Характеристики: метраж 146 кв.м., 1 этаж жилого дома, высота потолков 4.5., мощность 30 кВт, стихийная парковка, возможность разгрузки, витринное остекление, возможность рекламной вывески.

Коммерческие условия: арендная ставка 700 000 рублей в месяц, арендная ставка 4 794кв.м. месяц, арендная ставка 399 543р/кв.м в год.
Коммунальные платежи на арендаторе.

Технические характеристики

Тип здания: Торговая

Общая площадь: 146  м2

Этаж: 1

Всего этажей: 9

Электрическая мощность: 30 кВт

Высота потолков: 4.5 м

Парковка: стихийная

Коммерческие условия

Цена в месяц: 700 000 RUB

ФОРМА ВЛАДЕНИЯ: физ.лицо

карта

Расположение

Адрес: Москва, Ташкентская улица, 18к1

Округ: Восточный административный округ

Близость метро: Юго-Восточная

Транспортная доступность: 3 минуты от м. Юго-Восточная

Окружение

Торговое окружение: Банки, рестораны, кафе

Адрес:

Москва, Ташкентская улица, 18к1

Округ:

Восточный административный округ

Близость метро:

Юго-Восточная

Транспортная доступность:

3 минуты от м. Юго-Восточная

карта

Торговое окружение:

Банки, рестораны, кафе

Общая площадь:

146  м2

Этаж:

1

Всего этажей:

9

Тип:

Торговая

Электрическая мощность:

30 кВт

Высота потолков:

4.5 м

Парковка:

стихийная

ФОРМА ВЛАДЕНИЯ:

физ.лицо

Цена в месяц:

700 000 RUB

Александра

Ваш брокер по работе с клиентами

Найдите лучшее место
для жизни, бизнеса, инвестиций

Оставьте свои контакты — с вами свяжется руководитель отдела для презентации нужного вам объекта

Похожие объекты