Id 158336

ЖК Новые Ватутинки мкр. Заречный, 5/2 - 122,3 кв. м. - Аренда / Торговое помещение

адрес квартал № 61, 14

С отдельным входом
Торговая
Жилой комплекс (мфк)

244 600 RUB | в месяц

(за 1 м2 — 2 000 RUB)

площадь 122.3 м2

QR код Qr код

Сдаётся в аренду торговое помещение 122,3 м² в новом ЖК «Новые Ватутинки. Заречный».
Адрес: г. Москва, р-н Десёновское, Троицкий административный округ, квартал №61,14, корпус 1, подъезд 2. Помещение находится в новом, активно заселяемом жилом комплексе «Заречный». Уже введены в эксплуатацию 3 корпуса (1 455 квартир). Всего в ЖК запланировано 3 253 квартиры, что гарантирует растущий пешеходный и автомобильный трафик. Отличная транспортная доступность: 2 км до выезда на Калужское шоссе и 14 км до МКАД. Рядом расположены остановки общественного транспорта до станций метро Коммунарка и Ольховая. В 2025 году в шаговой доступности откроется станция МЦД «Десна», что значительно увеличит проходимость и привлекательность локации.

Технические характеристики:
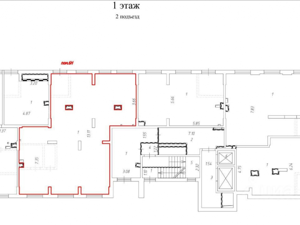
Общая площадь: 122,3 кв. м. (1 этаж). Свободная планировка и отдельный вход с улицы с выходом в оживленную пешеходную зону. Витринное остекление — 3 окна по фасаду и 3 окна во двор. Высота потолков — 4 м. Состояние — под чистовую отделку. Электрическая мощность: 15 кВт. Бесплатная парковка перед зданием, включая места для грузового транспорта. Место для размещения рекламы.

Идеально подходит для: продуктового магазина (у дома), аптеки, кафе, салона красоты, сервисного центра, студии, офиса.

Коммерческие условия:
Арендная ставка: 244 600 рублей в месяц (УСН).
Прямая аренда от собственника, долгосрочный договор.
Минимальный срок аренды: 11 месяцев.
Без обеспечительного платежа, предоплата за 1 месяц.

Технические характеристики

Тип здания: С отдельным входом,Торговая,Жилой комплекс (мфк)

Общая площадь: 122.3  м2

Этаж: 1

Всего этажей: 15

Электрическая мощность: 15 кВт

Высота потолков: 4 м

Парковка: наземная

Коммерческие условия

Цена в месяц: 244 600 RUB

ФОРМА ВЛАДЕНИЯ: собственность

карта

Расположение

Адрес: квартал № 61, 14

Близость метро: Коммунарка,Ольховая

Транспортная доступность: транспортом

Окружение

Торговое окружение: развитое торговое окружение

Адрес:

квартал № 61, 14

Округ:

Близость метро:

Коммунарка,Ольховая

Транспортная доступность:

транспортом

карта

Торговое окружение:

развитое торговое окружение

Общая площадь:

122.3  м2

Этаж:

1

Всего этажей:

15

Тип:

С отдельным входом,Торговая,Жилой комплекс (мфк)

Электрическая мощность:

15 кВт

Высота потолков:

4 м

Парковка:

наземная

ФОРМА ВЛАДЕНИЯ:

собственность

Цена в месяц:

244 600 RUB

Планировка

Виталий

Ваш брокер по работе с клиентами

Найдите лучшее место
для жизни, бизнеса, инвестиций

Оставьте свои контакты — с вами свяжется руководитель отдела для презентации нужного вам объекта

Похожие объекты