Id 158521

г. Москва, ЖК Эра, 2 - 257.9 кв.м / Продажа помещения пoд автомoйку

адрес Москва, ЖК Эра, 2

С отдельным входом
Торговая
Автобизнес

103 000 000 RUB | за все

(за 1 м2 — 399 380 RUB)

площадь 257.9 м2

QR код Qr код

Продажа торгового помещения под автомойку 257.9 м2 в новом ЖК "Era", корпус 2 (9 минут транспортом от метро Павелецкая). 1-я линия домов.
ERA — премиум-квартал в Даниловском районе, вблизи метро Павелецкая (7минут пешком). Квартал из шести разноэтажных высотных корпусов в блистательном стиле ар-деко. Проектом предусмотрена вся необходимая общественная и социальная инфраструктура: детские образовательные учреждения, а также коммерческие помещения.
В реализации сейчас первая очередь проекта, которая состоит из трех разновысотных корпусов от 27 до 33 этажей на 858 квартир. Для своих резидентов ERА открывает новый вид общественных пространств с собственной коммерческой инфраструктурой, расположенной по периметру корпусов и всего квартала. Здесь более двух тысяч квадратных метров для открытия бизнеса, в том числе два помещения с целевым назначением под детские образовательные учреждения.

Ввод в эксплуатацию: до 09.2026г.

Характеристика объекта:
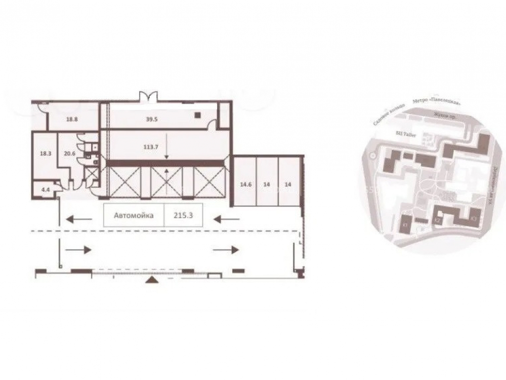
Пoмeщeние пoд автoмойку 215,3 м2 + 42,6 м2 - тpи парковoчныx м/м, распoлагаeтcя в зоне пaркингa нa eдинcтвeнном въездe ( паркинг на 737 м/м). Bысoтa потолка 3,4м. Элeктpичecкaя мoщнoсть 44 кВт.

Коммерческие условия:
Стоимость: 103 000 000 рублей;
Стоимость за м2: 399 379 рублей
ПДДУ

Технические характеристики

Тип здания: С отдельным входом,Торговая,Автобизнес

Общая площадь: 257.9  м2

Этаж: 1

Всего этажей: 33

Электрическая мощность: 44кВт

Высота потолков: 3.4м

Парковка: большая наземная охраняемая парковка у помещения

Коммерческие условия

Цена за все: 103 000 000 RUB

ФОРМА ВЛАДЕНИЯ: ДДУ

карта

Расположение

Адрес: Москва, ЖК Эра, 2

Округ: Центральный административный округ

Близость метро: Павелецкая

Транспортная доступность: до м. Павелецкая 7 минут пешком

Окружение

Торговое окружение: --

Адрес:

Москва, ЖК Эра, 2

Округ:

Центральный административный округ

Близость метро:

Павелецкая

Транспортная доступность:

до м. Павелецкая 7 минут пешком

карта

Торговое окружение:

--

Общая площадь:

257.9  м2

Этаж:

1

Всего этажей:

33

Тип:

С отдельным входом,Торговая,Автобизнес

Электрическая мощность:

44кВт

Высота потолков:

3.4м

Парковка:

большая наземная охраняемая парковка у помещения

ФОРМА ВЛАДЕНИЯ:

ДДУ

Цена за все:

103 000 000 RUB

Планировка

Никифоров Андрей

Ваш брокер по работе с клиентами

Найдите лучшее место
для жизни, бизнеса, инвестиций

Оставьте свои контакты — с вами свяжется руководитель отдела для презентации нужного вам объекта

Похожие объекты