Id 158781

г.о. Красногорск, пос. Ильинское-Усово, Архангельская ул., 7/ 86 кв.м./ продажа торгового помещения

адрес г.о. Красногорск, пос. Ильинское-Усово, Архангельская ул., 7

С отдельным входом
Торговая
Новостройка

21 000 000 RUB | за все

(за 1 м2 — 244 186 RUB)

площадь 86.0 м2

QR код Qr код

Предлагается в продажу торговое помещение в ЖК "Ильинские луга" по адресу: Московская обл., г.о. Красногорск, пос. Ильинское-Усово, Архангельская ул., 7. Рядом автобусная остановка до станции метро Строгино и МЦД D2 Пенягино. Дом 2022 года постройки. Плотная жилая застройка. Первая линия, много парковочных мест, напротив школа. Разнообразное торговое окружение: Магнит, Пятерочка, Авито, Яндекс, Озон, Автозапчасти, кафе, салоны красоты и т.д.

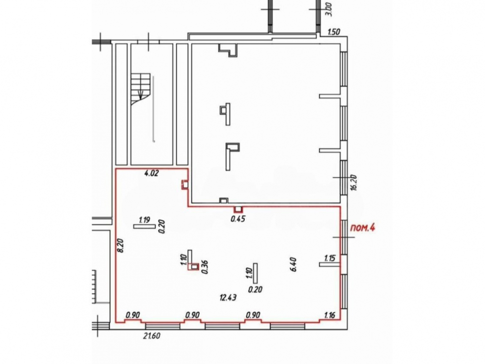
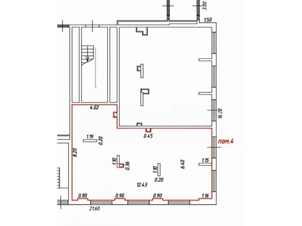
Технические характеристики: общая площадь 86 кв.м. • первый этаж жилого 9 этажного дома • электроэнергия 30 кВт. • высота потолка 4,5 м. • отдельный вход со стороны фасада и улицы • отделка • все центральные коммуникации • угловое помещение.

Коммерческие условия:
• Стоимость 21 000 000 рублей
• Стоимость кв.м. 244 186 рублей
• Продажа по ДКПН от физ. лица

Технические характеристики

Тип здания: С отдельным входом,Торговая,Новостройка

Общая площадь: 86  м2

Этаж: 1

Всего этажей: 9

Электрическая мощность: 30 кВт

Высота потолков: 4,5

Парковка: наземная

Коммерческие условия

Цена за все: 21 000 000 RUB

ФОРМА ВЛАДЕНИЯ: ДКП

карта

Расположение

Адрес: г.о. Красногорск, пос. Ильинское-Усово, Архангельская ул., 7

Округ: Западный административный округ

Близость метро: Пенягино,Строгино

Транспортная доступность: метро Строгино/МЦД D2 Пенягино

Окружение

Торговое окружение: Магнит, Пятерочка, Авито, Яндекс, Озон, Автозапчасти, кафе, салоны красоты

Адрес:

г.о. Красногорск, пос. Ильинское-Усово, Архангельская ул., 7

Округ:

Западный административный округ

Близость метро:

Пенягино,Строгино

Транспортная доступность:

метро Строгино/МЦД D2 Пенягино

карта

Торговое окружение:

Магнит, Пятерочка, Авито, Яндекс, Озон, Автозапчасти, кафе, салоны красоты

Общая площадь:

86  м2

Этаж:

1

Всего этажей:

9

Тип:

С отдельным входом,Торговая,Новостройка

Электрическая мощность:

30 кВт

Высота потолков:

4,5

Парковка:

наземная

ФОРМА ВЛАДЕНИЯ:

ДКП

Цена за все:

21 000 000 RUB

Планировка

Надежда Лежнина

Ваш брокер по работе с клиентами

Найдите лучшее место
для жизни, бизнеса, инвестиций

Оставьте свои контакты — с вами свяжется руководитель отдела для презентации нужного вам объекта

Похожие объекты