Id 158975

МО, Ленинский ГО, дер. Сапроново, ЖК «1-й Донской», к.5 – 386,3 М2 / Продажа помещения свободного назначения / Продажа ПСН

адрес деревня Сапроново, ЖК 1-й Донской

С отдельным входом
Торговая
Жилой комплекс (мфк)
Новостройка

125 000 000 RUB | за все

(за 1 м2 — 323 834 RUB)

площадь 386.0 м2

QR код Qr код

Предлагается в продажу торговое помещение по адресу: МО, Ленинский ГО, дер. Сапроново, ЖК «1-й Донской», к.5
ЖК состоит из 5 высокоэтажных корпусов (23-25 этажа) и 3 600 квартир, будет проживать около 9 000 жителей.
Первая очередь (корпуса 1 и 2) были сданы во 2 кв 2025г. Вторая очередь будет сдана в 3 кв 2026г.
Остальные корпуса, в т.ч и к. 5 планируются к сдаче в I кв 2027 год. Квартиры в ЖК продаются либо с чистовой отделкой, либо с отделкой white box. Это обеспечит быстрое заселение жителей.
Угловое помещение, рядом детский сад, школа. Смотрит на корпуса соседнего ЖК «Эко Видное 2.0».
Рядом ЖК «Видный Берег», «Видный Берег 2», «Первый Квартал».
Станция «Калинина(МЦД5)» - 15 минут пешком, м. Домодедовская - 20 минут на автомобиле.

Срок сдачи 1 кв. 2027 г. (корпус 5)

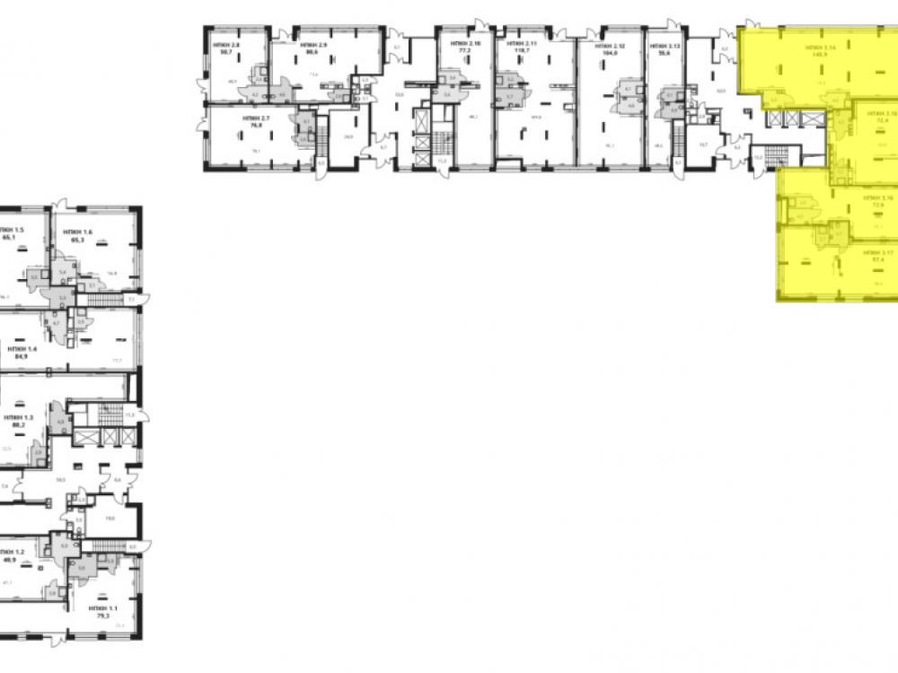
Технические характеристики: 1 этаж жилого 25 этажного дома. Общая площадь 386.3 м2
Угловое помещение, 4 отдельных входа. Электрическая мощность - 77,26 кВт. Высота потолков 4 метра, Витринные окна с обеих сторон здания. Парковка у фасада.

Коммерческие условия:
Стоимость: 125 000 000 руб.
Стоимость за кв.м.: 323 830 руб.

Технические характеристики

Тип здания: С отдельным входом,Торговая,Жилой комплекс (мфк),Новостройка

Общая площадь: 386  м2

Этаж: 1

Всего этажей: 24

Электрическая мощность: 77,26

Высота потолков: 4

Парковка: Имеется

Коммерческие условия

Цена за все: 125 000 000 RUB

ФОРМА ВЛАДЕНИЯ: Собственность

карта

Расположение

Адрес: деревня Сапроново, ЖК 1-й Донской

Близость метро: Домодедовская

Транспортная доступность: м. Домодедовская - 20 минут на автомобиле.

Окружение

Торговое окружение: по запросу

Адрес:

деревня Сапроново, ЖК 1-й Донской

Округ:

Близость метро:

Домодедовская

Транспортная доступность:

м. Домодедовская - 20 минут на автомобиле.

карта

Торговое окружение:

по запросу

Общая площадь:

386  м2

Этаж:

1

Всего этажей:

24

Тип:

С отдельным входом,Торговая,Жилой комплекс (мфк),Новостройка

Электрическая мощность:

77,26

Высота потолков:

4

Парковка:

Имеется

ФОРМА ВЛАДЕНИЯ:

Собственность

Цена за все:

125 000 000 RUB

Планировка

Егор Дмитриев

Ваш брокер по работе с клиентами

Найдите лучшее место
для жизни, бизнеса, инвестиций

Оставьте свои контакты — с вами свяжется руководитель отдела для презентации нужного вам объекта

Похожие объекты