Id 159098

Никитский бульвар, 6/20 - 55.4 кв. м. - Аренда / Помещение свободного назначения

адрес Москва, Никитский бульвар, 6/20

Многофункциональный
С отдельным входом
Торговая

2 400 000 RUB | в месяц

(за 1 м2 — 43 321 RUB)

площадь 55.4 м2

QR код Qr код

Аренда помещения свободного назначения премиум-класса в знаковом месте Москвы.
Адрес: г. Москва, ЦАО, Никитский бульвар, 6/20 (жилой дом De Luxe класса «Никитский 6»). Метро Арбатская – 5 мин. пешком. Престижное сердце культурного и делового центра Москвы с элитным жилым массивом. Знаковое место — начало Арбата и Нового Арбата, первая линия Воздвиженки. Обеспечивает высочайшую узнаваемость, статус и максимальную проходимость.

Технические характеристики:
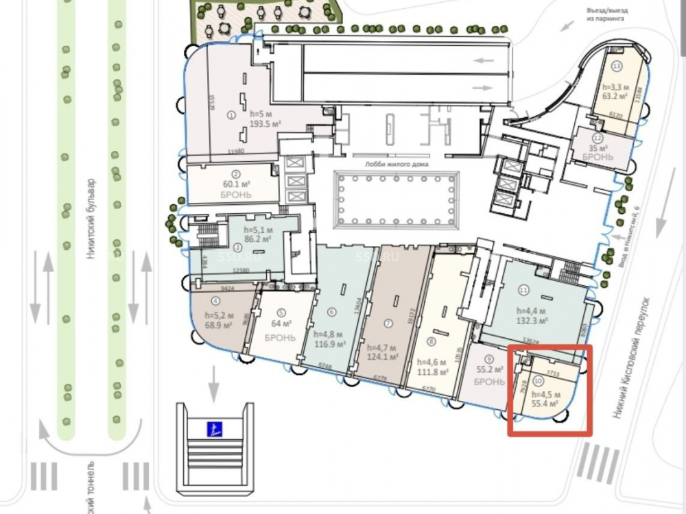
Общая площадь: 55,4 м² на 1-м этаже. Отдельный вход с улицы и панорамное остекление. Высота потолков: 4.5 м. Чистовая отделка. Коммуникации: Центральные. Электрическая мощность под любые задачи. Размещение вывески согласовано. Готовность: 3-й квартал 2026 года.

Коммерческие условия:
Арендная ставка: 2 400 000 рублей в месяц (включая НДС).
Ставка за 1 кв. м.: 43 321 рублей в год.
Тип аренды: Прямая, долгосрочная.
Коммунальные платежи: Оплачиваются дополнительно по счетчикам.
Залог: 1 месяц.
Арендные каникулы: Предусмотрены (условия обсуждаются индивидуально).

Технические характеристики

Тип здания: Многофункциональный,С отдельным входом,Торговая

Общая площадь: 55.4  м2

Этаж: 1

Всего этажей: 8

Электрическая мощность: по запросу

Высота потолков: 4.5 м

Парковка: по запросу

Коммерческие условия

Цена в месяц: 2 400 000 RUB

ФОРМА ВЛАДЕНИЯ: по запросу

карта

Расположение

Адрес: Москва, Никитский бульвар, 6/20

Округ: Центральный административный округ

Близость метро: Арбатская (Арбатско-Покровская)

Транспортная доступность: в пешей доступности

Окружение

Торговое окружение: развитое торговое окружение

Адрес:

Москва, Никитский бульвар, 6/20

Округ:

Центральный административный округ

Близость метро:

Арбатская (Арбатско-Покровская)

Транспортная доступность:

в пешей доступности

карта

Торговое окружение:

развитое торговое окружение

Общая площадь:

55.4  м2

Этаж:

1

Всего этажей:

8

Тип:

Многофункциональный,С отдельным входом,Торговая

Электрическая мощность:

по запросу

Высота потолков:

4.5 м

Парковка:

по запросу

ФОРМА ВЛАДЕНИЯ:

по запросу

Цена в месяц:

2 400 000 RUB

Планировка

Теребилов Михаил

Ваш брокер по работе с клиентами

Найдите лучшее место
для жизни, бизнеса, инвестиций

Оставьте свои контакты — с вами свяжется руководитель отдела для презентации нужного вам объекта

Похожие объекты