Id 159700

2-я Магистральная улица, 16 - 830 кв. м. - Аренда / Съемочный павильон

адрес Москва, 2-я Магистральная улица, 16

Многофункциональный
Особняк/здание
С отдельным входом
Торговая
Лофт
Склад

3 290 000 RUB | в месяц

(за 1 м2 — 3 964 RUB)

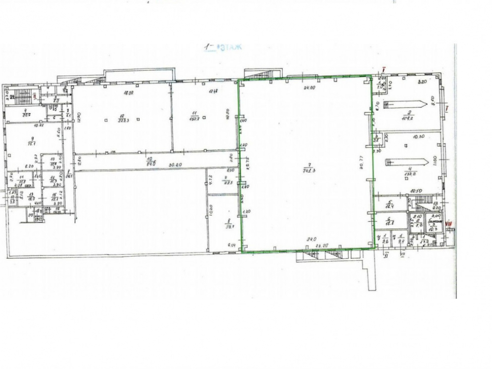
площадь 830.0 м2

QR код Qr код

Аренда павильона 830 м² в Хорошёвском районе.
Адрес: г. Москва, САО, 2-я Магистральная улица, 16. Первая линия, высокий пешеходный и автомобильный трафик.
11 минут пешком от м. «Хорошёвская» и м. «Тестовская».

Технические характеристики:
Общая площадь: 830 кв.м. 1 этаж, отдельный вход с улицы. Высота потолков: 13 м. Без единой колонны — свободная планировка. Чистовая отделка, центральное отопление. Электрическая мощность: 500 кВт (возможно увеличение).
Собственный паркинг на 100 машиномест. Нагрузки на пол: Высокие (подходит для тяжелого оборудования).

Рекомендуемые форматы использования:
Киносъёмки, телепроекты, шоу-румы, концерты, выставки, презентации, иммерсивные театры, спортивные ивенты, репетиционные базы, коворкинг для креативных индустрий.

Коммерческие условия:
Арендная ставка: 3 290 000 рублей в месяц (включены эксплуатационные расходы).
Ставка за 1 кв. м. в месяц: 3 964 рублей.
Срок аренды: от 11 месяцев.

Технические характеристики

Тип здания: Многофункциональный,Особняк/здание,С отдельным входом,Торговая,Лофт,Склад

Общая площадь: 830  м2

Этаж: 1

Всего этажей: 3

Электрическая мощность: 500 кВт

Высота потолков: 13 м, без колонн

Парковка: собственная, на 100 м/мест

Коммерческие условия

Цена в месяц: 3 290 000 RUB

ФОРМА ВЛАДЕНИЯ: по запросу

карта

Расположение

Адрес: Москва, 2-я Магистральная улица, 16

Округ: Северный административный округ

Близость метро: Тестовская,Хорошевская

Транспортная доступность: в пешей доступности

Окружение

Торговое окружение: развитое торговое окружение

Адрес:

Москва, 2-я Магистральная улица, 16

Округ:

Северный административный округ

Близость метро:

Тестовская,Хорошевская

Транспортная доступность:

в пешей доступности

карта

Торговое окружение:

развитое торговое окружение

Общая площадь:

830  м2

Этаж:

1

Всего этажей:

3

Тип:

Многофункциональный,Особняк/здание,С отдельным входом,Торговая,Лофт,Склад

Электрическая мощность:

500 кВт

Высота потолков:

13 м, без колонн

Парковка:

собственная, на 100 м/мест

ФОРМА ВЛАДЕНИЯ:

по запросу

Цена в месяц:

3 290 000 RUB

Планировка

Петр Соловьев

Ваш брокер по работе с клиентами

Найдите лучшее место
для жизни, бизнеса, инвестиций

Оставьте свои контакты — с вами свяжется руководитель отдела для презентации нужного вам объекта

Похожие объекты