Id 160444

Бизнес Центр класса В/Котельническя Набережная, д. 17/ Аренда Офис

адрес Москва, Котельническая набережная, 17

С отдельным входом

2 605 480 RUB | в месяц

(за 1 м2 — 4 916 RUB)

площадь 530.0 м2

QR код Qr код

Расположение: Москва, Котельническая Набережная, д. 17.
Расположен в Центральном Округе города Москвы, в 10 минутах пешком от м. Таганская. В самом центре культурной и деловой жизни столицы.

Окружение: Плотный жилой массив, театры, бары, рестораны. Рядом банки, другие БЦ, развитое деловое окружение и социальное окружение.

Технические характеристики: Бизнес Центр класса В , расположенный на Котельнической набережной д.17, общей
площадью 9 757 м2

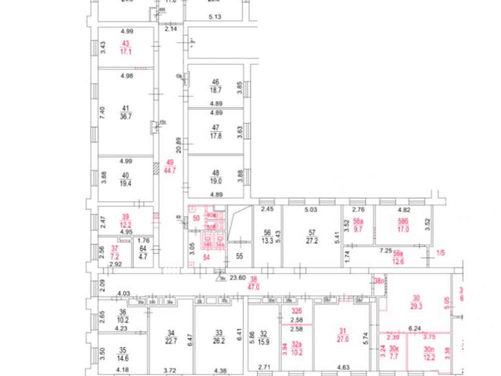
Автономная часть этажа с видом на Кремль и набережную, расположенного на 5 этаже.
Арендуемая площадь 530 м2.

Помещение с чистовой отделкой.
Помещение имеет собственные сан. узлы, кофе-поинт.
Основное помещение имеет кабинетную планировку и следующие обособленные помещения
офисного назначения: кабинет руководителя со своей приемной и
сан.узлом, кабинеты разной площади, большая
переговорная комната, гардеробная, помещение архива, предусмотрено
деление на звукоизолированные блоки с отдельным входом, климат
контролем, освещением и отдельным учетом электроэнергии.

Коммерческие условия:
Ставка в месяц: 2 605 480 рублей
Ставка в кв.м/год: 59 000 рублей
Ставка за кв.м/месяц: 4 916 рублей.

Форма владения: ООО
С НДС
Коммунальные платежи не включены
Срок аренды от 3 лет

Технические характеристики

Тип здания: С отдельным входом

Общая площадь: 530  м2

Этаж: 5

Всего этажей: 5

Электрическая мощность: 30

Высота потолков: 4

Парковка: подземная

Коммерческие условия

Цена в месяц: 2 605 480 RUB

ФОРМА ВЛАДЕНИЯ: ООО

карта

Расположение

Адрес: Москва, Котельническая набережная, 17

Округ: Центральный административный округ

Близость метро: Таганская

Транспортная доступность: 10 минут до м Таганская

Окружение

Торговое окружение: развитое

Адрес:

Москва, Котельническая набережная, 17

Округ:

Центральный административный округ

Близость метро:

Таганская

Транспортная доступность:

10 минут до м Таганская

карта

Торговое окружение:

развитое

Общая площадь:

530  м2

Этаж:

5

Всего этажей:

5

Тип:

С отдельным входом

Электрическая мощность:

30

Высота потолков:

4

Парковка:

подземная

ФОРМА ВЛАДЕНИЯ:

ООО

Цена в месяц:

2 605 480 RUB

Планировка

Александра

Ваш брокер по работе с клиентами

Найдите лучшее место
для жизни, бизнеса, инвестиций

Оставьте свои контакты — с вами свяжется руководитель отдела для презентации нужного вам объекта

Похожие объекты