Id 160451

Героев Панфиловцев 1 к 3/ 75,1 м2 / Аренда торгового помещения

адрес Москва, улица Героев Панфиловцев, 1к3

С отдельным входом
Торговая
Офис

190 000 RUB | в месяц

(за 1 м2 — 2 530 RUB)

площадь 75.1 м2

QR код Qr код

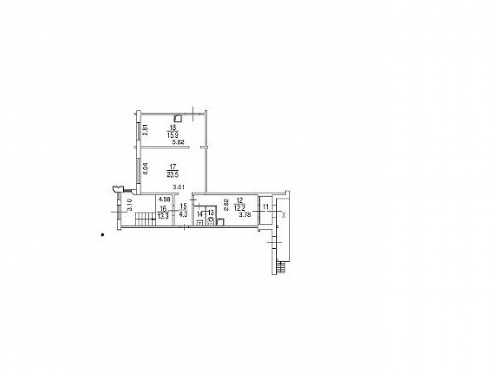
Предлагается в аренду торговое помещение площадью 75,1 м2 кв.м. в жилом доме по адресу: Героев Панфиловцев 1. Объект находится в непосредственной близости от станции метро «Сходненская.
Сверхинтенсивный пешеходный и автомобильный трафик.
Торговое окружение: офисные и продуктовые объекты, а также школа и торговый комплекс.

Технические характеристики:
Отдельный вход со двора. Все городские коммуникации, мокрая точка. Зальная планировка с косметическим ремонтом. Электрическая мощность: 15кВ. Высота потолков: 2,7м.

Коммерческие условия:
Стоимость аренды - 190 000 руб./мес.
Стоимость за 1 кв.м. - 2 530 руб./мес.

Технические характеристики

Тип здания: С отдельным входом,Торговая,Офис

Общая площадь: 75.1  м2

Этаж: 1

Всего этажей: 10

Электрическая мощность: 15кВ

Высота потолков: 2,7

Парковка: Есть

Коммерческие условия

Цена в месяц: 190 000 RUB

ФОРМА ВЛАДЕНИЯ: -

карта

Расположение

Адрес: Москва, улица Героев Панфиловцев, 1к3

Округ: Северо-Западный административный округ

Близость метро: Сходненская

Транспортная доступность: Шаговая доступность - м. Сходненская

Окружение

Торговое окружение: офисные и продуктовые объекты, а также школа и торговый комплекс.

Адрес:

Москва, улица Героев Панфиловцев, 1к3

Округ:

Северо-Западный административный округ

Близость метро:

Сходненская

Транспортная доступность:

Шаговая доступность - м. Сходненская

карта

Торговое окружение:

офисные и продуктовые объекты, а также школа и торговый комплекс.

Общая площадь:

75.1  м2

Этаж:

1

Всего этажей:

10

Тип:

С отдельным входом,Торговая,Офис

Электрическая мощность:

15кВ

Высота потолков:

2,7

Парковка:

Есть

ФОРМА ВЛАДЕНИЯ:

-

Цена в месяц:

190 000 RUB

Планировка

Шильцова Александра

Ваш брокер по работе с клиентами

Найдите лучшее место
для жизни, бизнеса, инвестиций

Оставьте свои контакты — с вами свяжется руководитель отдела для презентации нужного вам объекта

Похожие объекты