Id 160654

Москва, ул. Академика Королева, 13с1 - 47.5 кв.м/ Продажа ПСН

адрес Москва, улица Академика Королёва, 13с1

С отдельным входом
Торговая

16 625 000 RUB | за все

(за 1 м2 — 350 000 RUB)

площадь 47.5 м2

QR код Qr код

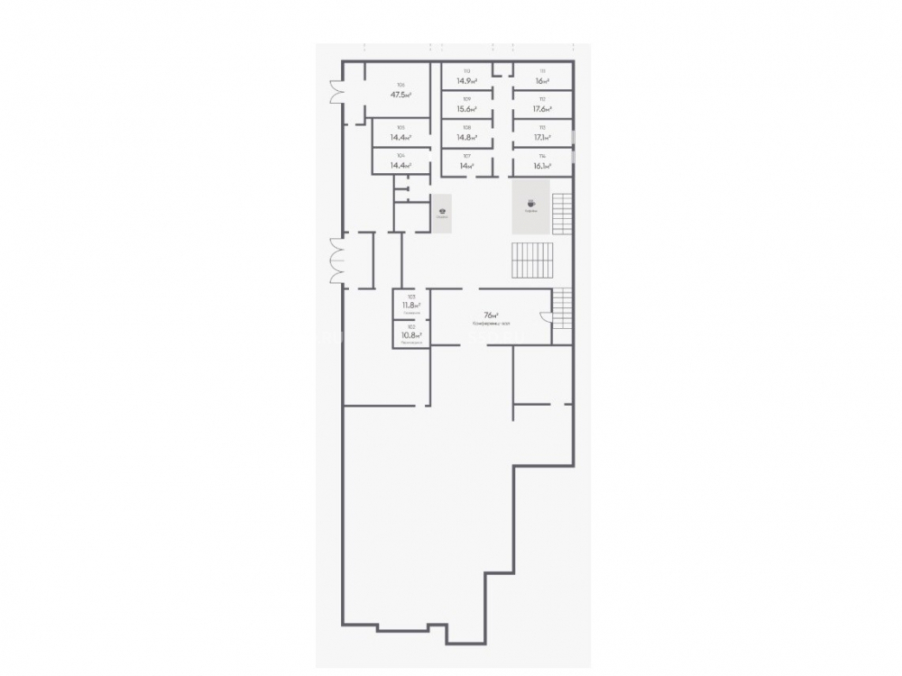
Предлагается в продажу ПСН на улице Академика Королева. Помещение расположено в 8-этажном здании.
До ближайшей станции метро "ВДНХ" - 10 минут пешком. 1-я линия домов.
В центре жилого массива, рядом остановка общественного транспорта. Большой автомобильный и пешеходный трафик вдоль помещения. Окружение - телецентр "НТВ", автомойка "Аквафортуна".

Технические характеристики:
Общая площадь 47.5 м2. Отдельный вход.
Электрическая мощность 0,2 кВт на кв.м. с возможностью увеличения.
Высота потолков - 4 метра. Парковка перед фасадом. Большие рекламные возможности.
Состояние - ShellCore.

Коммерческие условия:
Стоимость - 16 625 000 рублей
Стоимость за кв.м - 350 000 рублей

Технические характеристики

Тип здания: С отдельным входом,Торговая

Общая площадь: 47.5  м2

Этаж: 1

Всего этажей: 8

Электрическая мощность: 0,2 кВт на кв.м.

Высота потолков: от 4 м

Парковка: стихийная

Коммерческие условия

Цена за все: 16 625 000 RUB

ФОРМА ВЛАДЕНИЯ: Частная

карта

Расположение

Адрес: Москва, улица Академика Королёва, 13с1

Округ: Северо-Восточный административный округ

Близость метро: ВДНХ

Транспортная доступность: станции метро ВДНХ - 10 минут пешком

Окружение

Торговое окружение: телецентр, автомойка

Адрес:

Москва, улица Академика Королёва, 13с1

Округ:

Северо-Восточный административный округ

Близость метро:

ВДНХ

Транспортная доступность:

станции метро ВДНХ - 10 минут пешком

карта

Торговое окружение:

телецентр, автомойка

Общая площадь:

47.5  м2

Этаж:

1

Всего этажей:

8

Тип:

С отдельным входом,Торговая

Электрическая мощность:

0,2 кВт на кв.м.

Высота потолков:

от 4 м

Парковка:

стихийная

ФОРМА ВЛАДЕНИЯ:

Частная

Цена за все:

16 625 000 RUB

Планировка

Ирина Головина

Ваш брокер по работе с клиентами

Найдите лучшее место
для жизни, бизнеса, инвестиций

Оставьте свои контакты — с вами свяжется руководитель отдела для презентации нужного вам объекта

Похожие объекты