Id 160709

Алхимовская улица, 1к2 - 119,6 кв. м. - Аренда / ПСН

адрес Алхимовская улица, 1к2

Многофункциональный
С отдельным входом
Торговая
Жилой комплекс (мфк)

350 000 RUB | в месяц

(за 1 м2 — 2 926 RUB)

площадь 119.6 м2

QR код Qr код

Аренда помещения свободного назначения в ЖК «Алхимово».
Адрес: г. Москва, НАО, ЖК Алхимово, Алхимовская ул., 1к2.
Транспортная доступность: метро «Бунинская аллея» (20 мин на авто), станции Остафьево (5 мин) и Силикатная (10 мин). Остановки общественного транспорта — в шаговой доступности.
ЖК «Алхимово» — новый жилой комплекс на 15 000 жителей. Помещение сдано, заселение второй очереди — с 2025 года.

Технические характеристики:
Угловое помещение на 1-м этаже 15-этажного корпуса.
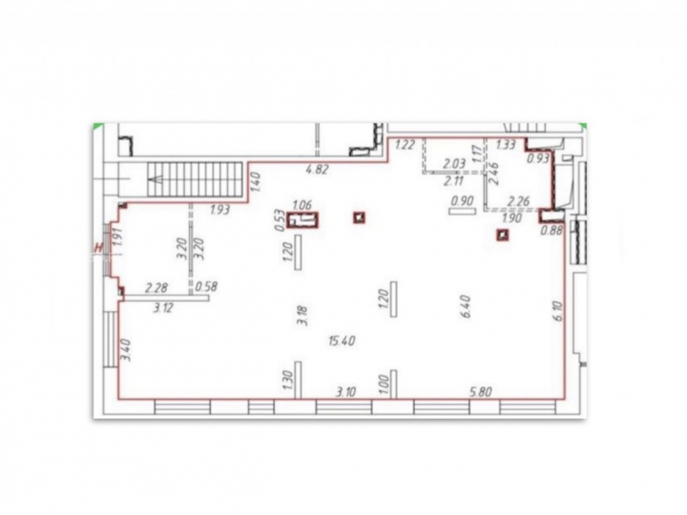
Общая площадь: 119,6 м².
Отдельный вход, 7 витринных окон.
Открытая планировка, высота потолков — 4 м.
Электрическая мощность: 21 кВт.
Рядом — парковка.
Соседи: Wildberries (WB), «Здравсити», «Горздрав».

Коммерческие условия:
Арендная ставка: 350 000 рублей в месяц.
Ставка за 1 кв. м.: 2 900 рублей в месяц.
Арендные каникулы: 1–3 месяца.
Индексация: 5–7% в год.
Выход на ставку — в течение 2 лет.

Технические характеристики

Тип здания: Многофункциональный,С отдельным входом,Торговая,Жилой комплекс (мфк)

Общая площадь: 119.6  м2

Этаж: 1

Всего этажей: 15

Электрическая мощность: 21 кВт

Высота потолков: 4 м

Парковка: наземная

Коммерческие условия

Цена в месяц: 350 000 RUB

ФОРМА ВЛАДЕНИЯ: по запросу

карта

Расположение

Адрес: Алхимовская улица, 1к2

Округ: Южный административный округ

Близость метро: Бунинская аллея

Транспортная доступность: транспортом

Окружение

Торговое окружение: развитая инфраструктура

Адрес:

Алхимовская улица, 1к2

Округ:

Южный административный округ

Близость метро:

Бунинская аллея

Транспортная доступность:

транспортом

карта

Торговое окружение:

развитая инфраструктура

Общая площадь:

119.6  м2

Этаж:

1

Всего этажей:

15

Тип:

Многофункциональный,С отдельным входом,Торговая,Жилой комплекс (мфк)

Электрическая мощность:

21 кВт

Высота потолков:

4 м

Парковка:

наземная

ФОРМА ВЛАДЕНИЯ:

по запросу

Цена в месяц:

350 000 RUB

Планировка

Степанов Анатолий

Ваш брокер по работе с клиентами

Найдите лучшее место
для жизни, бизнеса, инвестиций

Оставьте свои контакты — с вами свяжется руководитель отдела для презентации нужного вам объекта

Похожие объекты