Id 161203

Москва, улица - Ферганская ул., 8 к 3 с 1 /855 кв.м. /Аренда склада

адрес Москва, Ферганская улица, 8к3с1

Склад

1 368 000 RUB | в месяц

(за 1 м2 — 1 600 RUB)

площадь 855.0 м2

QR код Qr код

Предлагается в аренду складское помещение, расположенное по адресу: Москва, Ферганская ул., 8 к 3 с 1
Около 2 км до МКАД. Быстрый выезд на Волгоградский проспект и Рязанский проспект
Вблизи крупные торговые точки (Леруа Мерлен, Ашан — примерно 10 минут)
Транспортная доступность: 10 минут от м. Юго-Восточная

Технические характеристики:
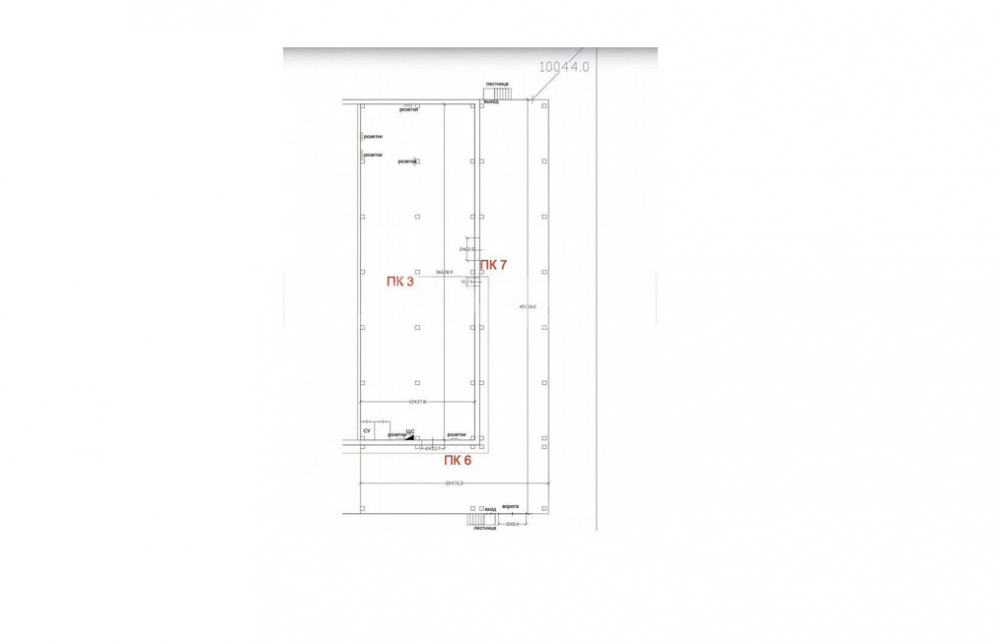
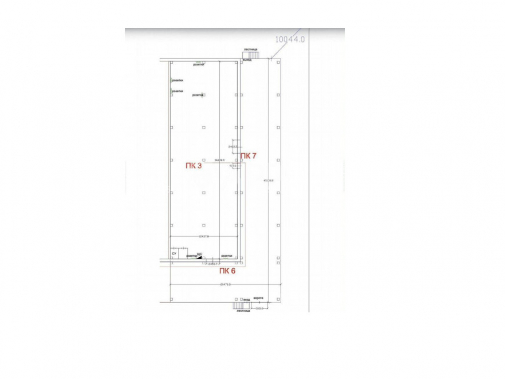
 Площадь помещения: 855 кв.м
 Высота потолка: от 5 до 8 м.
 Направления: ангар-склад широкого назначения
 Коммуникации: свет, отопление, вода
 Особенности: Отдельный вход + пандус для прямой отгрузки


Коммерческие условия:
Стоимость аренды - 1 368 000 рублей в месяц
Стоимость кв.м. - 1600 рублей

Технические характеристики

Тип здания: Склад

Общая площадь: 855  м2

Этаж: 1

Всего этажей: 1

Электрическая мощность: 30

Высота потолков: 5

Парковка: есть

Коммерческие условия

Цена в месяц: 1 368 000 RUB

ФОРМА ВЛАДЕНИЯ: собственность

карта

Расположение

Адрес: Москва, Ферганская улица, 8к3с1

Округ: Юго-Восточный административный округ

Близость метро: Юго-Восточная

Транспортная доступность: 10 минут от м. Юго-Восточная

Окружение

Торговое окружение: торговые точки (Леруа Мерлен, Ашан — примерно 10 минут)

Адрес:

Москва, Ферганская улица, 8к3с1

Округ:

Юго-Восточный административный округ

Близость метро:

Юго-Восточная

Транспортная доступность:

10 минут от м. Юго-Восточная

карта

Торговое окружение:

торговые точки (Леруа Мерлен, Ашан — примерно 10 минут)

Общая площадь:

855  м2

Этаж:

1

Всего этажей:

1

Тип:

Склад

Электрическая мощность:

30

Высота потолков:

5

Парковка:

есть

ФОРМА ВЛАДЕНИЯ:

собственность

Цена в месяц:

1 368 000 RUB

Планировка

Наталья

Ваш брокер по работе с клиентами

Найдите лучшее место
для жизни, бизнеса, инвестиций

Оставьте свои контакты — с вами свяжется руководитель отдела для презентации нужного вам объекта

Похожие объекты