Id 20825

Москва. Борисовские пруды, 14к4 - 100,3 кв.м / Продажа помещения свободного назначения / Медицина / Анализы

адрес улица Борисовские Пруды, 14к4

С отдельным входом
Торговая
Медицина

45 000 000 RUB | за все

(за 1 м2 — 448 654 RUB)

площадь 100.3 м2

QR код Qr код

Продается помещение свободного назначения (возможно под медицину) в первом доме от метро Борисово. В окружении густонаселенного жилого массива. Интенсивный, постоянный пешеходный трафик от/к метро. До метро Борисово 50 метров - прямая видимость. Якорным арендатором является супермаркет "Авоська" - это ближайший супермаркет от метро. Сложившийся центр торговли и оказания услуг вблизи метро.

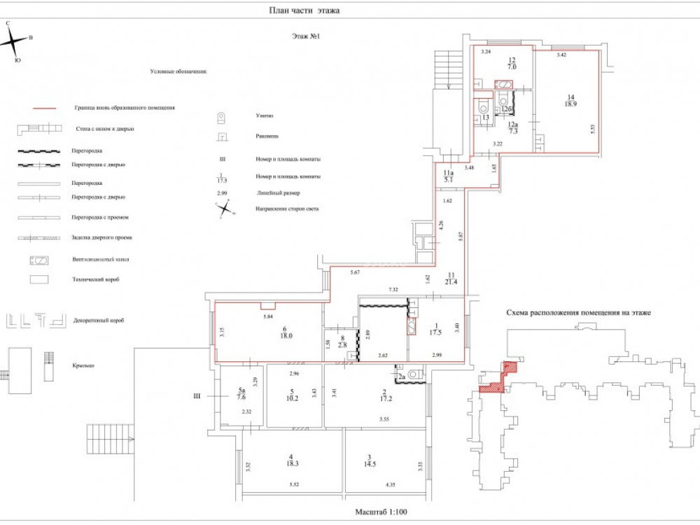
Технические характеристики: Площадь - 100,3 кв.м 1-й этаж 17-ти этажного жилого дома. Кабинетная планировка. Окна по фасаду. Отдельный вход. Вывеска на фасаде. Парковка перед помещением. Высокий инвестиционный потенциал и высокая ликвидность. Отделка под медицину, за выездом арендатора. Идеально под стоматологию, косметологию, лабораторию анализов, клинику. Возможно размещение нескольких арендаторов типа Дома быта, Ремонта телефонов и т.д. Эл. мощность - 25 кВт.

Коммерческие условия:
Стоимость - 45 000 000 рублей.
Стоимость за кв.м - 448 654 руб.
Продажа по ДКП.
Собственник юридическое лицо. ОСН (с НДС)

Технические характеристики

Тип здания: С отдельным входом,Торговая,Медицина

Общая площадь: 100.3  м2

Этаж: 1

Всего этажей: 17

Электрическая мощность: 25 кВт

Высота потолков: 3.2 м

Парковка: на улице

Коммерческие условия

Цена за все: 45 000 000 RUB

ФОРМА ВЛАДЕНИЯ: ЮЛ

карта

Расположение

Адрес: улица Борисовские Пруды, 14к4

Округ: Южный административный округ

Близость метро: Борисово

Транспортная доступность: 2 минуты пешком - метро Борисово, прямая видимость

Окружение

Торговое окружение: Аптека, Магазин Авоська, и др.

Адрес:

улица Борисовские Пруды, 14к4

Округ:

Южный административный округ

Близость метро:

Борисово

Транспортная доступность:

2 минуты пешком - метро Борисово, прямая видимость

карта

Торговое окружение:

Аптека, Магазин Авоська, и др.

Общая площадь:

100.3  м2

Этаж:

1

Всего этажей:

17

Тип:

С отдельным входом,Торговая,Медицина

Электрическая мощность:

25 кВт

Высота потолков:

3.2 м

Парковка:

на улице

ФОРМА ВЛАДЕНИЯ:

ЮЛ

Цена за все:

45 000 000 RUB

Планировка

Николай

Ваш брокер по работе с клиентами

Найдите лучшее место
для жизни, бизнеса, инвестиций

Оставьте свои контакты — с вами свяжется руководитель отдела для презентации нужного вам объекта

Похожие объекты