Id 21130

4-я Магистральная, 5с7 - 97,9 м² / Продажа готового арендного бизнеса - Кафе / ПСН / Общепит

адрес Москва, 4-я Магистральная, 5с7

Арендный бизнес
Особняк/здание
С отдельным входом
Торговая
Общепит

Окупаемость: 7.8 лет

Доходность:12.90%

37 000 000 RUB | за все

(за 1 м2 — 377 937 RUB)

площадь 97.9 м2

QR код Qr код

Продажа помещения свободного назначения с арендатором - Столовая Халяль 24 ч.
САО, Хорошёвский р-н, 4-я Магистральная улица, дом 5, строение 7. Пять минут пешком от метро Полежаевская и Хорошёвская. Плотный пешеходный трафик, развитый ритейл вдоль трафика и крупные складские пункты с офисами по соседству с помещением. Наличие городской парковки рядом со входом. Хорошая визуализация объекта.

Технические характеристики
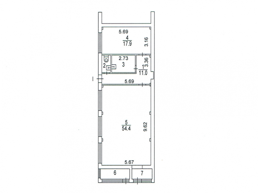
Отдельно стоящее одноэтажное здание. Общая площадь: 97,9 м² (Площадь зала: 90,8 м², складской тамбур: 7,1 м²). Состояние отделки: чистовая. Высота потолков: 3 метра (тамбур: 2,5 м). Электрическая мощность: 55 кВт. Центральные коммуникации. Круглосуточный режим работы. Городская парковка.

Коммерческие условия
Стоимость: 37 000 000 рублей
Цена за 1 м²: 377 937 рублей
Арендатор: Круглосуточная столовая халяль с 2018 года.
Индексация односторонняя - 7%. ДС к ДДА до 09.08.2028
МАП = 400 000 рублей
ГАП = 4 800 000 рублей
Окупаемость: 7.7 лет
Доходность: 12.97 % годовых.

Технические характеристики

Тип здания: Арендный бизнес,Особняк/здание,С отдельным входом,Торговая,Общепит

Общая площадь: 97.9  м2

Этаж: 1

Всего этажей: 1

Электрическая мощность: 55 кВт

Высота потолков: 2.5-3 м

Парковка: на улице

Коммерческие условия

Цена за все: 37 000 000 RUB

ФОРМА ВЛАДЕНИЯ: ФЛ

Общий МАП: 400 000 RUB (данный МАП является минимальным, при оптимизации арендаторов арендный поток можно значительно увеличить)

Общий ГАП: 4 800 000 RUB

Окупаемость: 7.8 лет

Доходность: 12.90%

карта

Расположение

Адрес: Москва, 4-я Магистральная, 5с7

Округ: Северный административный округ

Близость метро: Полежаевская,Хорошевская

Транспортная доступность: Пять минут пешком от метро Полежаевская и Хорошёвская.

Окружение

Торговое окружение: -

Адрес:

Москва, 4-я Магистральная, 5с7

Округ:

Северный административный округ

Близость метро:

Полежаевская,Хорошевская

Транспортная доступность:

Пять минут пешком от метро Полежаевская и Хорошёвская.

карта

Торговое окружение:

-

Общая площадь:

97.9  м2

Этаж:

1

Всего этажей:

1

Тип:

Арендный бизнес,Особняк/здание,С отдельным входом,Торговая,Общепит

Электрическая мощность:

55 кВт

Высота потолков:

2.5-3 м

Парковка:

на улице

ФОРМА ВЛАДЕНИЯ:

ФЛ

Цена за все:

37 000 000 RUB

Общий МАП: 400 000

(данный МАП является минимальным, при оптимизации арендаторов арендный поток можно значительно увеличить)

Общий ГАП:

4 800 000

Окупаемость:

7.8 лет

Доходность:

12.90%

Планировка

Николай

Ваш брокер по работе с клиентами

Найдите лучшее место
для жизни, бизнеса, инвестиций

Оставьте свои контакты — с вами свяжется руководитель отдела для презентации нужного вам объекта

Похожие объекты