Id 22270

Щелковское шоссе д. 100 - 2600 кв.м. - Аренда / Торговое помещение

адрес Москва, Щелковское шоссе д. 100

Многофункциональный
С отдельным входом
Торговая
Общепит
ТЦ

3 900 000 RUB | в месяц

(за 1 м2 — 1 483 RUB)

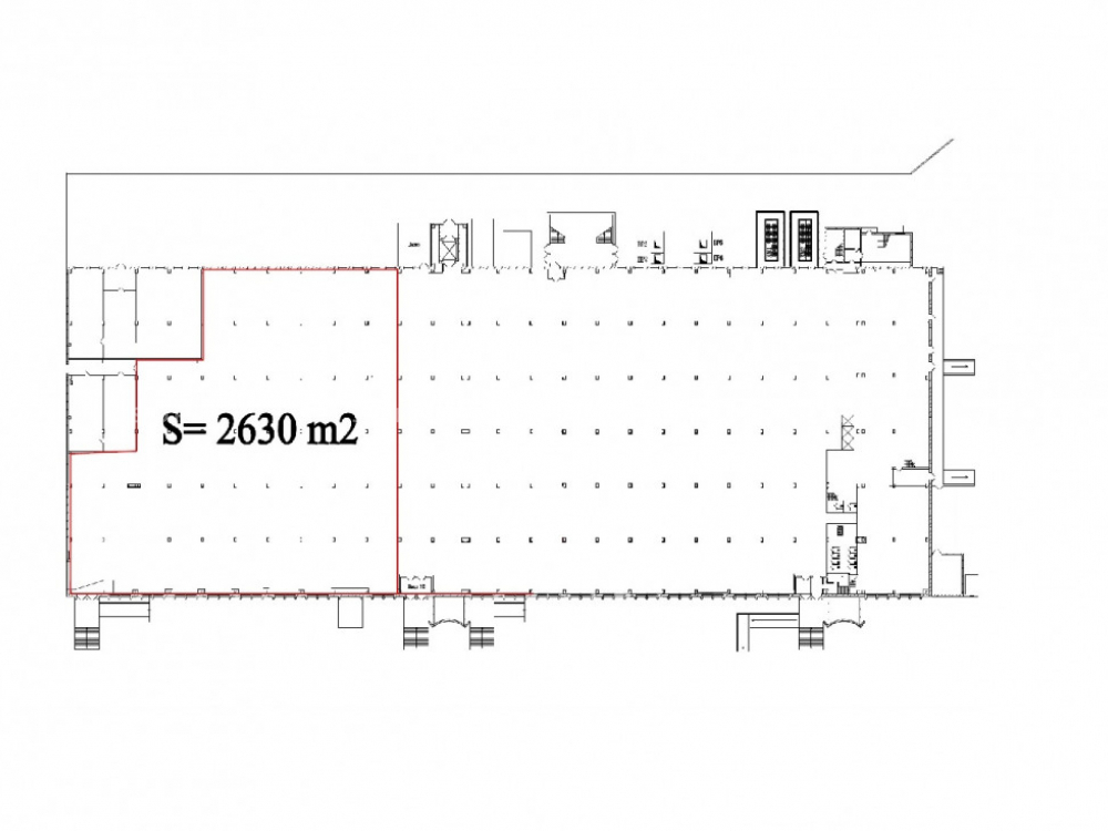
площадь 2 630.0 м2

QR код Qr код

Аренда торгового помещения по адресу: Москва, Щелковское шоссе д. 100, в 5 минутах езды на транспорте от м. Щелковская. ТРЦ Щёлково находится в окружении большого жилого массива на границе двух крупных районов Восточное Измайлово и Гольяново. Рядом наземный и подземный пешеходные переходы. Остановки общественного транспорта. Отличная визуализация объекта и высокий рекламный потенциал.
Торговое окружение: крупнейшие сетевые магазины федерального значения, такие как: гипермаркет Эльдорадо, Спотрмастер и другие крупные арендаторы, банки, кафе, развлекательные площадки, кинотеатр и зона фудкорта.

Технические характеристики:
Площадь помещения: 2600 кв.м., 2 этаж 3-х этажного здания ТЦ. Отдельный вход, отдельная зона для разгрузо-погрузочных работ. Центральные коммуникации, вентиляция. Планировка зальная, опен-спейс. Высота потолков до перекрытия 4.5 м до коммуникаций. Шаг колонн 12х18 м. Состояние помещения с хорошей отделкой и ремонтом, за выездом арендатора. Выделенная мощность электроэнергии предоставляется по запросу. Общий паркинг перед входом.

Коммерческие условия:
Ставка аренды в месяц- 3 900 000 руб. с НДС.
Ставка за 1 кв.м в месяц - 1 500 руб.
Коммунальные платежи оплачиваются отдельно по факту потребления.
Прямая аренда. Возможен долгосрочный договор.

Технические характеристики

Тип здания: Многофункциональный,С отдельным входом,Торговая,Общепит,ТЦ

Общая площадь: 2630  м2

Этаж: 2

Всего этажей: 3

Электрическая мощность: .

Высота потолков: .

Парковка: .

Коммерческие условия

Цена в месяц: 3 900 000 RUB

ФОРМА ВЛАДЕНИЯ: .

карта

Расположение

Адрес: Москва, Щелковское шоссе д. 100

Округ: Восточный административный округ

Близость метро: Щёлковская

Транспортная доступность: .

Окружение

Торговое окружение: .

Адрес:

Москва, Щелковское шоссе д. 100

Округ:

Восточный административный округ

Близость метро:

Щёлковская

Транспортная доступность:

.

карта

Торговое окружение:

.

Общая площадь:

2630  м2

Этаж:

2

Всего этажей:

3

Тип:

Многофункциональный,С отдельным входом,Торговая,Общепит,ТЦ

Электрическая мощность:

.

Высота потолков:

.

Парковка:

.

ФОРМА ВЛАДЕНИЯ:

.

Цена в месяц:

3 900 000 RUB

Планировка

Воробьев Алексей

Ваш брокер по работе с клиентами

Найдите лучшее место
для жизни, бизнеса, инвестиций

Оставьте свои контакты — с вами свяжется руководитель отдела для презентации нужного вам объекта

Похожие объекты