Id 22385

Ступинский район с. Лужники ул. Центральная д. 1 - 302,1 кв. м. / Продажа помещения с арендатором Дикси

адрес Московская область Ступинский район село Лужники ул. Центральная д.1

Арендный бизнес
Особняк/здание
Торговая

Окупаемость: 8.8 лет

Доходность:11.43%

41 900 000 RUB | за все

(за 1 м2 — 138 742 RUB)

площадь 302.0 м2

QR код Qr код

Продажа торгового помещения с сетевым супермаркетом Дикси в Ступинском районе в отдельно стоящем здании. Высокий пешеходный и автомобильный трафик. Рядом Автозаправка, что обеспечивает дополнительный поток покупателей в супермаркет.

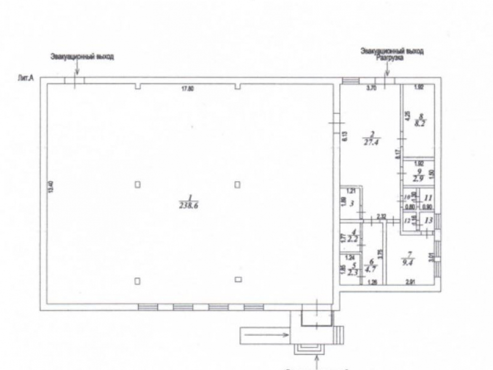
Технические характеристики: Общая площадь: 302,1 м2 (часть административного здания), Высота потолка: 3 м, Мощность: 33 кВт, Вода, Канализация, Вентиляция, Кондиционирование, Пожарная сигнализация. Большая парковка. Отдельный вход и удобная зона разгрузки. Полное отсутствие конкуренции в радиусе 3км.

Коммерческие условия:
МАП: 400.000 рублей (фикс 300 000рублей + 5% от товарооборота). Договор сроком на 10 лет с февраля 2022г.
Стоимость продажи - 41.900.000 рублей
Стоимость продажи за кв. м. - 138 696 рублей
Продажа по ДКП от физ. лица

Технические характеристики

Тип здания: Арендный бизнес,Особняк/здание,Торговая

Общая площадь: 302  м2

Этаж: 1

Всего этажей: 1

Электрическая мощность: 33 кВт

Высота потолков: 3

Парковка: Есть

Коммерческие условия

Цена за все: 41 900 000 RUB

ФОРМА ВЛАДЕНИЯ: Физ. лицо

Общий МАП: 400 000 RUB (данный МАП является минимальным, при оптимизации арендаторов арендный поток можно значительно увеличить)

Общий ГАП: 4 800 000 RUB

Окупаемость: 8.8 лет

Доходность: 11.43%

карта

Расположение

Адрес: Московская область Ступинский район село Лужники ул. Центральная д.1

Округ: Южный административный округ

Близость метро: Каширская

Транспортная доступность: Удобная

Окружение

Торговое окружение: Сложившееся

Адрес:

Московская область Ступинский район село Лужники ул. Центральная д.1

Округ:

Южный административный округ

Близость метро:

Каширская

Транспортная доступность:

Удобная

карта

Торговое окружение:

Сложившееся

Общая площадь:

302  м2

Этаж:

1

Всего этажей:

1

Тип:

Арендный бизнес,Особняк/здание,Торговая

Электрическая мощность:

33 кВт

Высота потолков:

3

Парковка:

Есть

ФОРМА ВЛАДЕНИЯ:

Физ. лицо

Цена за все:

41 900 000 RUB

Общий МАП: 400 000

(данный МАП является минимальным, при оптимизации арендаторов арендный поток можно значительно увеличить)

Общий ГАП:

4 800 000

Окупаемость:

8.8 лет

Доходность:

11.43%

Планировка

Ирина Головина

Ваш брокер по работе с клиентами

Найдите лучшее место
для жизни, бизнеса, инвестиций

Оставьте свои контакты — с вами свяжется руководитель отдела для презентации нужного вам объекта

Похожие объекты