Id 260

Маршала Василевского 15 - 260 кв.м. / Продажа арендного бизнеса,

адрес Маршала Василевского 15

Арендный бизнес
С отдельным входом
Торговая

Окупаемость:

Доходность:0.00%

103 320 000 RUB | за все

(за 1 м2 — 397 385 RUB)

площадь 260.0 м2

QR код Qr код

Продается арендный бизнес, торговое помещение с арендатором, расположенное по адресу: Маршала Василевского 15
Торговое помещение расположено в подвале 8-ми этажного жилого дома,ближайшая станция метро "Щукинская", рядом остановки общественного транспорта, вокруг густо населенный жилой массив, что обеспечивает интенсивный пешеходный и автомобильный трафик. 1-я линия домов. 3 Отдельных входа (2 входные группы с 1-й линии домов, одна входная группа со двора дома + дебаркадер) подвальное помещение, все коммуникации: 4 линия МГТС, Интернет, санузел, горячая/холодная вода, центральное отопление, вентиляция и др. Электричество - 50 кВт. Высота потолков - 3 м. Дебаркадер. Парковка: стихийная. Рекламная вывеска над входной группой. Недавно сделан ремонт. Рядом находится МФЦ Района Хорошо - Мневники, что еще обеспечивает дополнительный поток людей. Район развит и густо населен, станция метро и конечная остановка наземного транспорта в нескольких метрах. Прямая видимость с дороги.


Коммерческие условия:
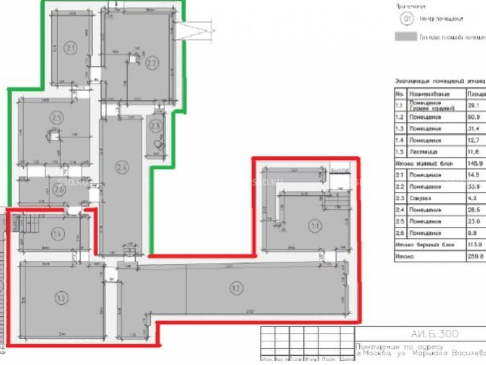
Общая площадь - 249 кв.м.
Арендаторы: Алкомаркет, Парикмахерская, Валберис, Русские корни, Ателье
Общий МАП - 820 000 руб. Общий ГАП - 9 840 000 руб.
Стоимость - 103 320 000 руб.

Технические характеристики

Тип здания: Арендный бизнес,С отдельным входом,Торговая

Общая площадь: 260  м2

Этаж: -1

Всего этажей: 8

Электрическая мощность: 50 Квт

Высота потолков: 3

Парковка: есть

Коммерческие условия

Цена за все: 103 320 000 RUB

ФОРМА ВЛАДЕНИЯ: Собственность

Общий МАП: 820 000 RUB (данный МАП является минимальным, при оптимизации арендаторов арендный поток можно значительно увеличить)

Общий ГАП: 9 840 000 RUB

Окупаемость:

Доходность: 0.00%

карта

Расположение

Адрес: Маршала Василевского 15

Округ: Северо-Западный административный округ

Близость метро: Щукинская

Транспортная доступность: метро Щукинская

Окружение

Торговое окружение: есть

Адрес:

Маршала Василевского 15

Округ:

Северо-Западный административный округ

Близость метро:

Щукинская

Транспортная доступность:

метро Щукинская

карта

Торговое окружение:

есть

Общая площадь:

260  м2

Этаж:

-1

Всего этажей:

8

Тип:

Арендный бизнес,С отдельным входом,Торговая

Электрическая мощность:

50 Квт

Высота потолков:

3

Парковка:

есть

ФОРМА ВЛАДЕНИЯ:

Собственность

Цена за все:

103 320 000 RUB

Общий МАП: 820 000

(данный МАП является минимальным, при оптимизации арендаторов арендный поток можно значительно увеличить)

Общий ГАП:

9 840 000

Окупаемость:

Доходность:

0.00%

Планировка

Ивашкин Алексей

Ваш брокер по работе с клиентами

Найдите лучшее место
для жизни, бизнеса, инвестиций

Оставьте свои контакты — с вами свяжется руководитель отдела для презентации нужного вам объекта

Похожие объекты