Id 139205

Ленинградское шоссе 16Ас1 - 1206м2 / Аренда ПСН / Общепит, клиентский офис, ритейл

адрес Ленинградское шоссе 16Ас1

Бизнес центр
С отдельным входом
Торговая
Общепит

6 030 000 RUB | в месяц

(за 1 м2 — 5 000 RUB)

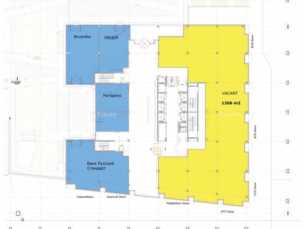
площадь 1 206.0 м2

QR код Qr код

Помещение на первой линии Ленинградского шоссе в Бц Метрополис.
Назначение: корпоративный офис, клиентский офис, сервисный центр, ритейл, общепит и другие функции.
Помещение расположено на уровне центрального лобби. Большой поток посетителей торгового центра Метрополис и большое количество посетителей Бизнес центра Метрополис обеспечивают постоянный трафик посетителей.

БЦ расположен в 2х минутах от станции Войковская.

Технические характеристики :
Витринное остекление. Отдельный вход с улицы + вход с лобби. Высота потолков 5,6 м., есть возможность организовать двухуровневое пространство. Выделенная электрическая мощность 180 кВт, приточно вытяжная вентиляция. Состояние shell & core – готово к началу отделочных работ.

Коммерческие условия :
Стоимость аренды: 6 030 000 рублей в месяц (без НДС)
Ставка аренды 60 000 рублей за кв. м в год (без НДС)
Арендные каникулы – 6 месяцев

Технические характеристики

Тип здания: Бизнес центр,С отдельным входом,Торговая,Общепит

Общая площадь: 1206  м2

Этаж: 1

Всего этажей: 20

Электрическая мощность: .

Высота потолков: .

Парковка: .

Коммерческие условия

Цена в месяц: 6 030 000 RUB

ФОРМА ВЛАДЕНИЯ: .

карта

Расположение

Адрес: Ленинградское шоссе 16Ас1

Округ: Северо-Западный административный округ

Близость метро: Войковская

Транспортная доступность: .

Окружение

Торговое окружение: .

Адрес:

Ленинградское шоссе 16Ас1

Округ:

Северо-Западный административный округ

Близость метро:

Войковская

Транспортная доступность:

.

карта

Торговое окружение:

.

Общая площадь:

1206  м2

Этаж:

1

Всего этажей:

20

Тип:

Бизнес центр,С отдельным входом,Торговая,Общепит

Электрическая мощность:

.

Высота потолков:

.

Парковка:

.

ФОРМА ВЛАДЕНИЯ:

.

Цена в месяц:

6 030 000 RUB

Планировка

Гервас Ксения

Ваш брокер по работе с клиентами

Найдите лучшее место
для жизни, бизнеса, инвестиций

Оставьте свои контакты — с вами свяжется руководитель отдела для презентации нужного вам объекта

Похожие объекты