Id 140128

ЖК Большое Путилково, Вольная улица, 7 - 70 м2 / Аренда торгового помещения

адрес ЖК Большое Путилково, Вольная улица, 7

Многофункциональный
С отдельным входом
Торговая
Новостройка

300 000 RUB | в месяц

(за 1 м2 — 4 286 RUB)

площадь 70.0 м2

QR код Qr код

В аренду предлагается торговое помещение в ЖК комфорт класса «Большое Путилково», по адресу: Московская область, г.о. Красногорск, Вольная улица, 7;
Жилой комплекс «Большое Путилково», главное достоинство нового квартала - близость к Москве. За десять минут на автомобиле можно добраться до 3-х станций метро: «Планерная», «Митино», «Пятницкое шоссе». Из ЖК удобно выезжать на основные магистрали: МКАД, Ленинградское и Пятницкое шоссе. Предусмотрено строительство дорог, будет пущен скоростной трамвай Шереметьево - Путилково - Красногорск, произведена реконструкция Путилковского шоссе. Всего комплекс будет насчитывать порядка 8 000 квартир.

Торговое окружение:
Соседнее помещение арендатор «Пятерочка», аптека Ригла, в непосредственной близости оператор «общепита» - «Вкусно и точка» АВТО.
Напротив через Путилковское шоссе сложившееся торговое окружение: Цирюльник, OldBoy, Красное и Белое, WB, ДоДо пицца, Магнит, ВкусВилл и прочие арендаторы.

Технические характеристики:
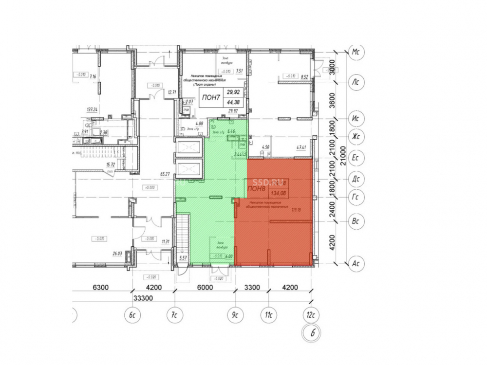
Площадь помещения - 70 м2. 1-й этаж жилого дома. Открытая планировка. Витринное остекление;
Электрическая мощность: 15кВт. *Возможно увеличение. Парковка перед фасадом. Все центральные коммуникации.


Коммерческие условия:
Арендная ставка – 300 000 рублей в месяц.
Прямая аренда. УСН.

Технические характеристики

Тип здания: Многофункциональный,С отдельным входом,Торговая,Новостройка

Общая площадь: 70  м2

Этаж: 1

Всего этажей: 17

Электрическая мощность: 15 кВт

Высота потолков: 4 м.

Парковка: перед помещением

Коммерческие условия

Цена в месяц: 300 000 RUB

ФОРМА ВЛАДЕНИЯ: ИП на УСН

карта

Расположение

Адрес: ЖК Большое Путилково, Вольная улица, 7

Близость метро: Митино,Планерная,Пятницкое шоссе

Транспортная доступность: 10 минут езды до метро Планерная, Сходненская, Митино

Окружение

Торговое окружение: супермаркет Пятёрочка

Адрес:

ЖК Большое Путилково, Вольная улица, 7

Округ:

Близость метро:

Митино,Планерная,Пятницкое шоссе

Транспортная доступность:

10 минут езды до метро Планерная, Сходненская, Митино

карта

Торговое окружение:

супермаркет Пятёрочка

Общая площадь:

70  м2

Этаж:

1

Всего этажей:

17

Тип:

Многофункциональный,С отдельным входом,Торговая,Новостройка

Электрическая мощность:

15 кВт

Высота потолков:

4 м.

Парковка:

перед помещением

ФОРМА ВЛАДЕНИЯ:

ИП на УСН

Цена в месяц:

300 000 RUB

Планировка

Владислав

Ваш брокер по работе с клиентами

Найдите лучшее место
для жизни, бизнеса, инвестиций

Оставьте свои контакты — с вами свяжется руководитель отдела для презентации нужного вам объекта

Похожие объекты