Id 140719

г.Москва, ЦАО, Пятницкая, 22с2 - 323,0 кв.м - Продажа / Отдельно стоящее здание/ гостиница

адрес г.Москва, ЦАО, Пятницкая, 22с2

Арендный бизнес
Особняк/здание
С отдельным входом
Офис
Общепит
Отель/Хостел

Окупаемость: 23.4 года

Доходность:4.27%

210 000 000 RUB | за все

(за 1 м2 — 650 155 RUB)

площадь 323.0 м2

QR код Qr код

Продаётся отдельно стоящее здание, расположенное по адресу: г. Москва, ЦАО, Пятницкая, 22с2. Метро Новокузнецкая - 1 минута пешком.
Вторая линия домов, вход через арку с улицы Пятницкая. НЕ ОКН. НЕ КРТ.
В непосредственной близости от Кремля, зон отдыха москвичей и гостей столицы. Отличная транспортная доступность.

Технические параметры:
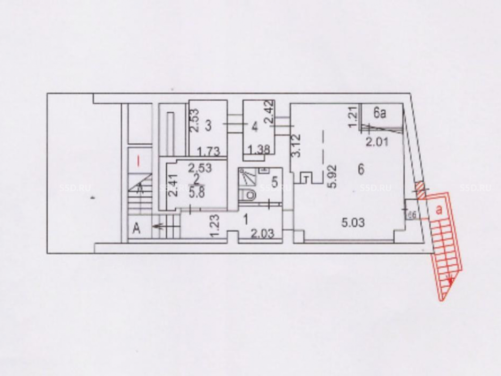
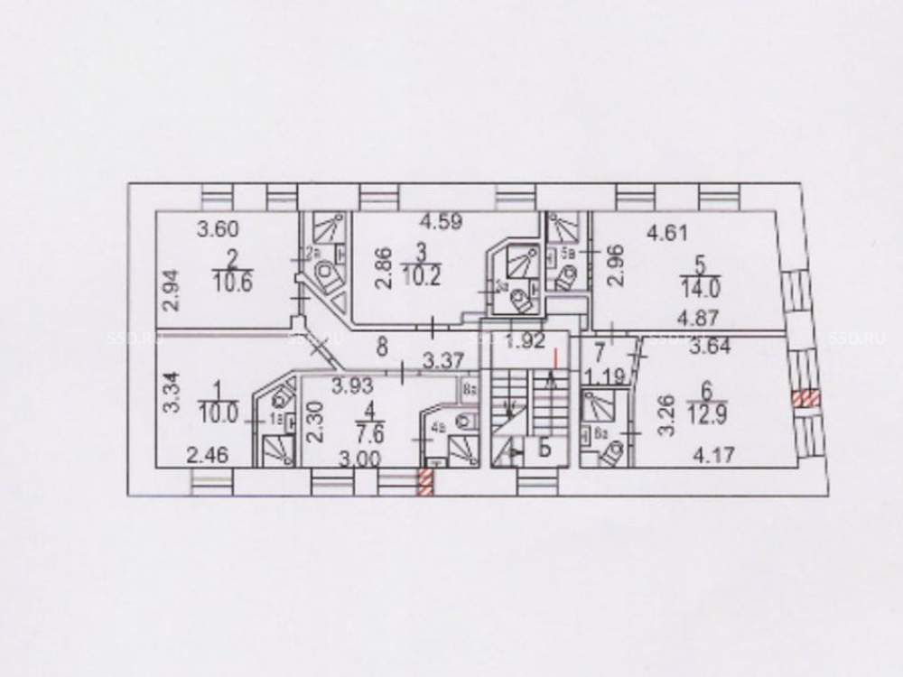
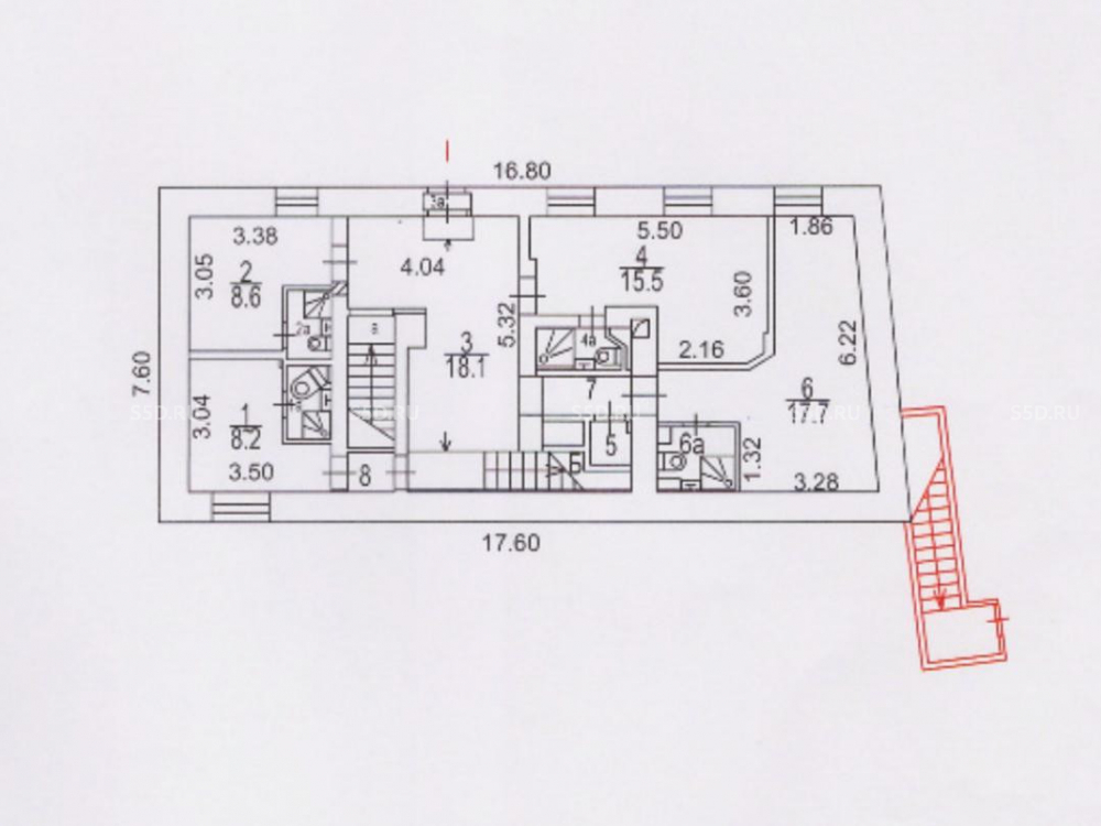
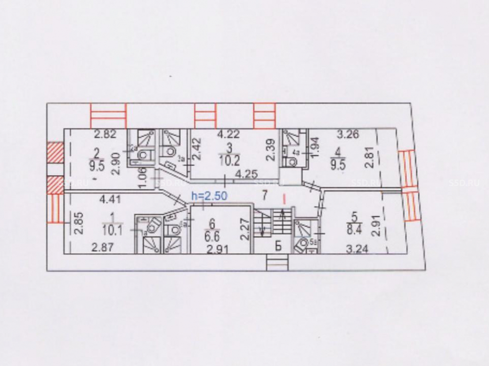
Общая площадь здания - 323,0 кв.м. Два этажа. Кабинетная планировка.
Центральные коммуникации: ГВС, ХВС, канализация, отопление.
Высота потолков 2,8 м.
Электрическая мощность - 100 кВт.
Земельный участок в аренде до 2030 года.
Возможна парковка на 1-2 а/м.
Оборудованы 16 гостиничных номеров.

Коммерческие условия:
Стоимость объекта - 210 000 000 рублей, в том числе НДС 5%
Стоимость за 1 кв.м - 650 155 рублей

Технические характеристики

Тип здания: Арендный бизнес,Особняк/здание,С отдельным входом,Офис,Общепит,Отель/Хостел

Общая площадь: 323  м2

Этаж: 1

Всего этажей: 2

Электрическая мощность: 100 кВт

Высота потолков: 2,8 м

Парковка: 1-2 а/м

Коммерческие условия

Цена за все: 210 000 000 RUB

ФОРМА ВЛАДЕНИЯ: Юр. лицо

Общий МАП: 750 000 RUB (данный МАП является минимальным, при оптимизации арендаторов арендный поток можно значительно увеличить)

Общий ГАП: 9 000 000 RUB

Окупаемость: 23.4 года

Доходность: 4.27%

карта

Расположение

Адрес: г.Москва, ЦАО, Пятницкая, 22с2

Округ: Центральный административный округ

Близость метро: Новокузнецкая

Транспортная доступность: Отличная. Метро Новокузнецкая - 1 минута пешком.

Окружение

Торговое окружение: В непосредственной близости от Кремля, зон отдыха москвичей и гостей столицы

Адрес:

г.Москва, ЦАО, Пятницкая, 22с2

Округ:

Центральный административный округ

Близость метро:

Новокузнецкая

Транспортная доступность:

Отличная. Метро Новокузнецкая - 1 минута пешком.

карта

Торговое окружение:

В непосредственной близости от Кремля, зон отдыха москвичей и гостей столицы

Общая площадь:

323  м2

Этаж:

1

Всего этажей:

2

Тип:

Арендный бизнес,Особняк/здание,С отдельным входом,Офис,Общепит,Отель/Хостел

Электрическая мощность:

100 кВт

Высота потолков:

2,8 м

Парковка:

1-2 а/м

ФОРМА ВЛАДЕНИЯ:

Юр. лицо

Цена за все:

210 000 000 RUB

Общий МАП: 750 000

(данный МАП является минимальным, при оптимизации арендаторов арендный поток можно значительно увеличить)

Общий ГАП:

9 000 000

Окупаемость:

23.4 года

Доходность:

4.27%

Планировка

Александр Невский

Ваш брокер по работе с клиентами

Найдите лучшее место
для жизни, бизнеса, инвестиций

Оставьте свои контакты — с вами свяжется руководитель отдела для презентации нужного вам объекта

Похожие объекты