Id 142928

Череповецкая ул, д. 18 с.2 - 616 м². - Аренда торгового помещения.

адрес Москва, Череповецкая ул., 18С2

Особняк/здание
Торговая
Общепит

1 800 000 RUB | в месяц

(за 1 м2 — 2 922 RUB)

площадь 616.0 м2

QR код Qr код

Предлагается в аренду торговое помещение на углу многолюдного оживленного перекрёстка, по адресу: Москва, улица Череповецкая, дом 18 с.2. Ближайшая станция метро "Алтуфьево" расположена в 7-ти минутах пешком. Очень интенсивный пешеходный и автомобильный трафик в течение всего дня. Высокий рекламный потенциал, отличная визуализация объекта с проезжей и пешеходной части. Соседство с крупными якорными федеральным сетями - Перекресток, парковка перед зданием. Напротив остановка общественного транспорта.

Торговое окружение:
Супермаркет Перекресток, магазин DNS, аптека Столетник, магазин Четыре лапы, салон красоты, цветочный магазин, Сбербанк.

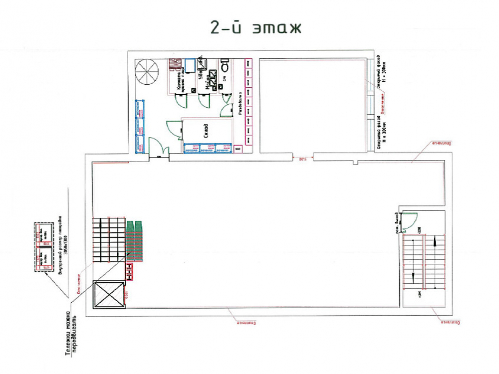
Технические характеристики: Общая площадь - 616 кв.м. (1-й этаж: 307 кв.м. 2-й этаж: 309 кв.м.), 4 отдельных входа, витрины, открытая планировка, лифт, состояние помещения за выездом арендатора,  высота потолков - 3.5 метра, выделенная эл.мощность - 150 кВт. (возможно увеличение). Зона погрузки разгрузки. Возможна организация технологической вытяжки под общепит, мокрые точки. Вывеска на фасаде. Алкогольная лицензия.
Помещение подходит под: Супермаркет, Гастроном Крупный магазин любого направления, Ресторан.

Коммерческие условия:
Общая площадь - 616 кв.м. (1-й этаж: 307 кв.м. 2-й этаж: 309 кв.м.).
Ставка аренды – 1 800 000 рублей в месяц с НДС 5%.
Ставка аренды за 1 кв.м в месяц – 2 922 рублей за кв.м.

Технические характеристики

Тип здания: Особняк/здание,Торговая,Общепит

Общая площадь: 616  м2

Этаж: 1

Всего этажей: 2

Электрическая мощность: -

Высота потолков: -

Парковка: -

Коммерческие условия

Цена в месяц: 1 800 000 RUB

ФОРМА ВЛАДЕНИЯ: -

карта

Расположение

Адрес: Москва, Череповецкая ул., 18С2

Округ: Северный административный округ

Близость метро: Алтуфьево,Лианозово

Транспортная доступность: -

Окружение

Торговое окружение: -

Адрес:

Москва, Череповецкая ул., 18С2

Округ:

Северный административный округ

Близость метро:

Алтуфьево,Лианозово

Транспортная доступность:

-

карта

Торговое окружение:

-

Общая площадь:

616  м2

Этаж:

1

Всего этажей:

2

Тип:

Особняк/здание,Торговая,Общепит

Электрическая мощность:

-

Высота потолков:

-

Парковка:

-

ФОРМА ВЛАДЕНИЯ:

-

Цена в месяц:

1 800 000 RUB

Планировка

Шаклеина Юлия

Ваш брокер по работе с клиентами

Найдите лучшее место
для жизни, бизнеса, инвестиций

Оставьте свои контакты — с вами свяжется руководитель отдела для презентации нужного вам объекта

Похожие объекты