Id 145520

Москва, Ленинградский пр., д. 27 - 207.2 м2 / Продажа ПСН

адрес Москва, САО, Ленинградский пр., д. 27

С отдельным входом
Торговая

55 000 000 RUB | за все

(за 1 м2 — 265 444 RUB)

площадь 207.2 м2

QR код Qr код

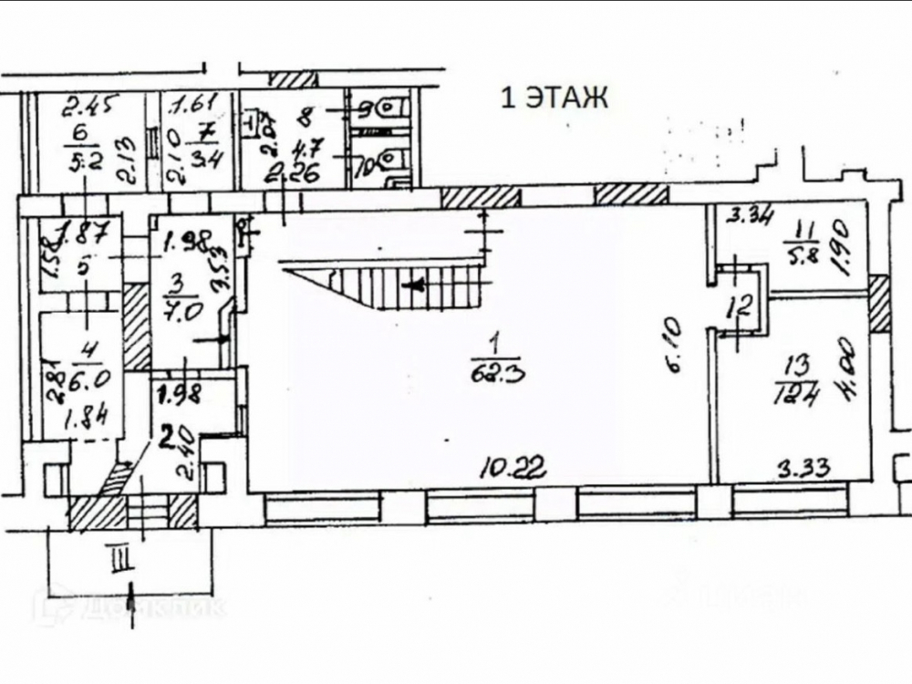
Продажа нежилого помещения свободного назначения в жилом доме "Ажурный" по адресу: САО, Москва, Ленинградский пр., д. 27, площадью 207.2 м2. Помещение располагается на первой линии Ленинградского проспекта. Сложившейся жилой массив. От метро "Динамо" 10 минут пешим шагом. Напротив помещения остановка общественного транспорта.

Технические параметры:
- 1 этаж 6-этажного жилого дома 1941 года постройки,
- площадью 207.2 м2,
- из них 1 этаж 118 м2, антресоль 89 м2.
- Зальная планировка.
- Четыре витринных окна по фасаду.
- Высота потолков первый этаж - 4.6 метра, на антресоли - 2.2. метра.
- Городские коммуникации.
- Выделенная эл. мощность: 35 кВт.
- Общедомовая вытяжка.

Коммерческие условия:
Стоимость объекта: 55 000 000 рублей.
Стоимость за м2: 265 700 рублей.
Условия сделки обсуждаются на переговорах.

Технические характеристики

Тип здания: С отдельным входом,Торговая

Общая площадь: 207.2  м2

Этаж: 1

Всего этажей: 8

Электрическая мощность: 35

Высота потолков: 5

Парковка: -

Коммерческие условия

Цена за все: 55 000 000 RUB

ФОРМА ВЛАДЕНИЯ: -

карта

Расположение

Адрес: Москва, САО, Ленинградский пр., д. 27

Округ: Северный административный округ

Близость метро: Сокол

Транспортная доступность: -

Окружение

Торговое окружение: -

Адрес:

Москва, САО, Ленинградский пр., д. 27

Округ:

Северный административный округ

Близость метро:

Сокол

Транспортная доступность:

-

карта

Торговое окружение:

-

Общая площадь:

207.2  м2

Этаж:

1

Всего этажей:

8

Тип:

С отдельным входом,Торговая

Электрическая мощность:

35

Высота потолков:

5

Парковка:

-

ФОРМА ВЛАДЕНИЯ:

-

Цена за все:

55 000 000 RUB

Планировка

Инна Васильева

Ваш брокер по работе с клиентами

Найдите лучшее место
для жизни, бизнеса, инвестиций

Оставьте свои контакты — с вами свяжется руководитель отдела для презентации нужного вам объекта

Похожие объекты