Id 160292

Москва, САО, Ходынский бульвар, 6/2 (STONE Ходынка 1, Башня H2) - 184.4м2 / Продажа помещения под ресторан с НДС

адрес Москва, Ходынский бульвар, 6/2

Торговая

397 382 000 RUB | за все

(за 1 м2 — 2 155 000 RUB)

площадь 184.4 м2

QR код Qr код

Предлагается в продажу помещение под ресторан в САО по адресу: Москва, Ходынский бульвар, 6/2 (STONE Ходынка 1, Башня H2)
Метро «ЦСКА» и ТЦ «Авиапарк» в 1 минуте пешком.
Офисный квартал состоит из 3 башен высотой от 13 до 23 этажей.
Все основные потоки жителей района, сотрудников бизнес центров, посетителей парков и спортивных арен проходят через
STONE Ходынка-1 и составляют более 72 000 чел./сутки.

Июль 2024 года – получение разрешения на строительство
III кв. 2027 года – строительная готовность

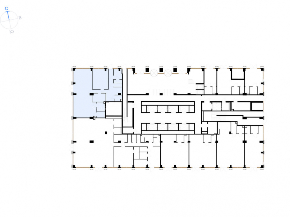
Технические характеристики: помещение площадью 184.4 кв.м., находится на 1 этаже 18-х этажного бизнес центра класса А, 2 отдельных входа - со стороны центрального входа в лобби БЦ и с торца. Открытая планировка (есть возможность объединения), потолки 4.85м., электроэнергия 40 кВт (есть техническая возможность для увеличения).

Коммерческие условия:
• стоимость объекта 397 382 000 рублей
• стоимость объекта за м2 2 155 000 рублей
• продажа по ДДУ есть рассрочка с первоначальным взносом 10% и более
• собственник юр. лицо продажа с НДС

Технические характеристики

Тип здания: Торговая

Общая площадь: 184.4  м2

Этаж: 1

Всего этажей: 18

Электрическая мощность: 0,2 кВт на м2

Высота потолков: 4.85м

Парковка: большая наземная охраняемая парковка у помещения

Коммерческие условия

Цена за все: 397 382 000 RUB

ФОРМА ВЛАДЕНИЯ: ДДУ

карта

Расположение

Адрес: Москва, Ходынский бульвар, 6/2

Округ: Северный административный округ

Близость метро: ЦСКА

Транспортная доступность: Метро «ЦСКА» и ТЦ «Авиапарк» в 1 минуте пешком.

Окружение

Торговое окружение: --

Адрес:

Москва, Ходынский бульвар, 6/2

Округ:

Северный административный округ

Близость метро:

ЦСКА

Транспортная доступность:

Метро «ЦСКА» и ТЦ «Авиапарк» в 1 минуте пешком.

карта

Торговое окружение:

--

Общая площадь:

184.4  м2

Этаж:

1

Всего этажей:

18

Тип:

Торговая

Электрическая мощность:

0,2 кВт на м2

Высота потолков:

4.85м

Парковка:

большая наземная охраняемая парковка у помещения

ФОРМА ВЛАДЕНИЯ:

ДДУ

Цена за все:

397 382 000 RUB

Планировка

Никифоров Андрей

Ваш брокер по работе с клиентами

Найдите лучшее место
для жизни, бизнеса, инвестиций

Оставьте свои контакты — с вами свяжется руководитель отдела для презентации нужного вам объекта

Похожие объекты