Id 146321

Москва, Нагатинская набережная, 10А / Продажа ПСН в Новом ЖК

адрес Нагатинская набережная, 10А

С отдельным входом
Торговая
Общепит
Жилой комплекс (мфк)
Новостройка

29 290 241 RUB | за все

(за 1 м2 — 420 837 RUB)

площадь 69.6 м2

QR код Qr код

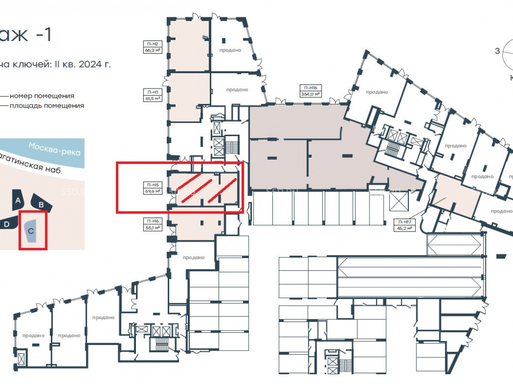
Предлагается в продажу нежилое помещение свободного назначения в ЮАО по адресу: Москва, ул. Нагатинская набережная, уч. 10А, площадью 61/5 м2, помещение находится на -1 этаже (стилобат) 26-ти этажного дома в корпусе С. От метро Нагатинская 10 мин. пешком.
Проект бизнес-класса Level Нагатинская — изящный архитектурный ансамбль от Level Group на первой береговой
линии Москвы-реки в престижном районе Южного округа столицы.
ЖК представляет собой 4 корпуса высотой в 20-26 этажей:
корпус A 217 квартир без отделки
корпус B 280 квартир с отделкой whitebox (быстрое заселение)
корпус C 312 квартир без отделки
корпус D 316 квартир без отделки, 1 125 квартир, 2850 жителей.
В пешей доступности 5 муниципальных и 9 частных детских садов, 4 школы, включая частную школу «Эрудит».

Технические характеристики: Общая площадь 69.6 кв.м. в стилобатной части корпуса "С". Открытая планировка, потолки 4.17 м. (есть возможность создать Антресоль), электроэнергия 100 кВт (есть техническая возможность для увеличения), витринное остекление, высокий рекламный потенциал, 2 отдельных входа с видом на первую линию, мокрая точка, есть возможность установить вытяжку, зона разгрузки, помещение в бетоне, двухуровневый подземный паркинг на 230 м/м
Ввод в эксплуатацию произведен в марте 2024г. , помещение уже "на ключах"

Коммерческие условия:
• стоимость объекта 29 290 241 рублей
• стоимость объекта за м2: 421 442 рубля
• продажа по ДКП от ЮЛ

Технические характеристики

Тип здания: С отдельным входом,Торговая,Общепит,Жилой комплекс (мфк),Новостройка

Общая площадь: 69.6  м2

Этаж: 1

Всего этажей: 26

Электрическая мощность: 100

Высота потолков: 4,17

Парковка: открытая, общая

Коммерческие условия

Цена за все: 29 290 241 RUB

ФОРМА ВЛАДЕНИЯ: ДДУ

карта

Расположение

Адрес: Нагатинская набережная, 10А

Округ: Южный административный округ

Близость метро: Варшавская,Каширская,Коломенская,Нагатинская

Транспортная доступность: От метро Нагатинская 10 мин. пешком.

Окружение

Торговое окружение: --

Адрес:

Нагатинская набережная, 10А

Округ:

Южный административный округ

Близость метро:

Варшавская,Каширская,Коломенская,Нагатинская

Транспортная доступность:

От метро Нагатинская 10 мин. пешком.

карта

Торговое окружение:

--

Общая площадь:

69.6  м2

Этаж:

1

Всего этажей:

26

Тип:

С отдельным входом,Торговая,Общепит,Жилой комплекс (мфк),Новостройка

Электрическая мощность:

100

Высота потолков:

4,17

Парковка:

открытая, общая

ФОРМА ВЛАДЕНИЯ:

ДДУ

Цена за все:

29 290 241 RUB

Планировка

Никифоров Андрей

Ваш брокер по работе с клиентами

Найдите лучшее место
для жизни, бизнеса, инвестиций

Оставьте свои контакты — с вами свяжется руководитель отдела для презентации нужного вам объекта

Похожие объекты