Id 159319

Москва, НАО, район Внуково, ул.Аэростатная, 15к9 (ЖК Новое Внуково)/88.3м2/Продажа помещения свободного назначения

адрес Аэростатная улица, 15к9

С отдельным входом
Торговая
Общепит
Жилой комплекс (мфк)
Новостройка

29 139 000 RUB | за все

(за 1 м2 — 330 000 RUB)

площадь 88.3 м2

QR код Qr код

Предлагается в продажу помещение свободного назначения в новом ЖК "Новое Внуково" класса комфорт-плюс
Адрес: Москва, НАО, район Внуково, ул.Аэростатная, 15к9 (ГК Самолёт)

До станции МЦД-4 «Кокошкино» - 5 минут на автомобиле. Дорога до станции метро «Аэропорт Внуково» займет 16 минут на автомобиле;
Жилой комплекс “Новое Внуково”рассчитан на 30 000 жителей.
Расположен на центральном перекрестке, рядом с остановкой общественного транспорта.
 Все квартиры в ЖК с отделкой.
 ЖК строят в 24 км к юго-западу от МКАД и в 4 км от аэропорта. Первые корпуса сдали в марте 2023 года.

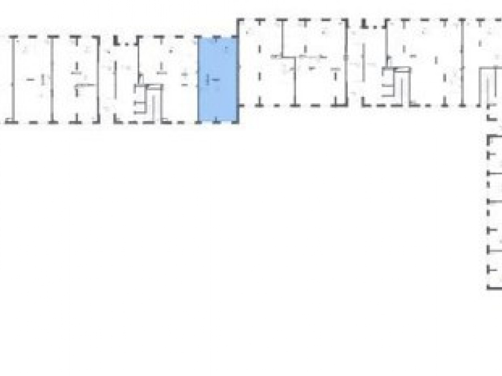
Помещение находится на 1й линии, пешеходная зона/основная пешеходная тропа, на въезде в ЖК. Расположено по пути следования жителей на самом трафиковом коридоре ЖК.
Формат помещения: стрит-ритейл, подходит под любой вид деятельности: магазин, кафе, пекарня, услуги.

Высокий пешеходный трафик, основная пешеходная тропа, на въезде в ЖК. Мало коммерческих помещений, только в первой линии домов.

Технические характеристики:
Общая площадь: 88.3м2
1й этаж, 1 входная группа
Корпус сдан, ключи получены
Коммуникации центральные
Техническая вытяжка
Электричество 16 кВт
Высота потолка 4 м


Коммерческие условия:
Стоимость: 29 139 000 руб
Стоимость за м2: 330 000 руб
Потенциальный МАП: 256 070 руб/мес.
2 900 руб/м2

Технические характеристики

Тип здания: С отдельным входом,Торговая,Общепит,Жилой комплекс (мфк),Новостройка

Общая площадь: 88.3  м2

Этаж: 1

Всего этажей: 10

Электрическая мощность: 16

Высота потолков: 4

Парковка: Имеется

Коммерческие условия

Цена за все: 29 139 000 RUB

ФОРМА ВЛАДЕНИЯ: Собственность

карта

Расположение

Адрес: Аэростатная улица, 15к9

Близость метро: Аэропорт Внуково

Транспортная доступность: До станции МЦД-4 «Кокошкино» - 5 минут на автомобиле

Окружение

Торговое окружение: Магнит, Озон

Адрес:

Аэростатная улица, 15к9

Округ:

Близость метро:

Аэропорт Внуково

Транспортная доступность:

До станции МЦД-4 «Кокошкино» - 5 минут на автомобиле

карта

Торговое окружение:

Магнит, Озон

Общая площадь:

88.3  м2

Этаж:

1

Всего этажей:

10

Тип:

С отдельным входом,Торговая,Общепит,Жилой комплекс (мфк),Новостройка

Электрическая мощность:

16

Высота потолков:

4

Парковка:

Имеется

ФОРМА ВЛАДЕНИЯ:

Собственность

Цена за все:

29 139 000 RUB

Планировка

Романов Роман

Ваш брокер по работе с клиентами

Найдите лучшее место
для жизни, бизнеса, инвестиций

Оставьте свои контакты — с вами свяжется руководитель отдела для презентации нужного вам объекта

Похожие объекты