Id 147106

Московская обл., г. Лыткарино, микрорайон 6-й, дом 15Г - 81,6 кв.м

адрес Московская обл., г. Лыткарино, микрорайон 6-й, дом 15Г

С отдельным входом
Торговая

15 500 000 RUB | за все

(за 1 м2 — 189 951 RUB)

площадь 81.6 м2

QR код Qr код

Предлагается в продажу торговое помещение с сетевым арендатором алкомаркет "Красное Белое", по адресу: Московская обл., г. Лыткарино, микрорайон 6-й, дом 15Г.

Помещение расположено на 1 этаже самого центрального дома.
Торговое окружение: ПВЗ WILDBERRIES, магазин ВкусВилл, аптека здравсити и супермаркет "Дикси"

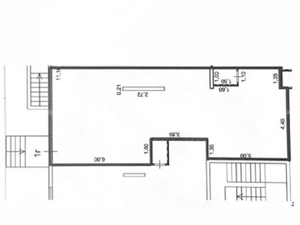
Технические характеристики: Площадь - 81.6 кв.м, 1й этаж многоэтажного жилого дома. Отдельный вход, окна по фасаду.
Высота потолка 3 метра, отдельный кадастровый номер, открытая территория.
Парковка по фасаду, размещение вывески на фасаде.

ЖК "Гармония Парк" ЖК состоит из семи 17-этажных зданий. В ЖК - 1494 квартир, рядом ЖК Новое Лыткарино на 1088
квартир. Помещение расположено в центре жилого массива. В радиусе 500 метров проживает более
9000 человек. В окружении присутствует старая многоквартирная застройка. Остановка
общественного транспорта находится в 100 метрах от помещения. На данной локации также есть
туристический поток - люди приезжают в соседний храм и усадьбу.

Коммерческие условия:
Площадь - 81.6 кв.м.
Стоимость - 15 500 000 рублей.
Стоимость за кв.м - 189 951 рубль.

Технические характеристики

Тип здания: С отдельным входом,Торговая

Общая площадь: 81.6  м2

Этаж: 1

Всего этажей: 17

Электрическая мощность: 15

Высота потолков: 3

Парковка: У помещения

Коммерческие условия

Цена за все: 15 500 000 RUB

ФОРМА ВЛАДЕНИЯ: Собственность

карта

Расположение

Адрес: Московская обл., г. Лыткарино, микрорайон 6-й, дом 15Г

Округ: Юго-Восточный административный округ

Близость метро: Алма-Атинская

Транспортная доступность: -

Окружение

Торговое окружение: Wildberies,ВкусВилл, аптека Здравсити,Дикси

Адрес:

Московская обл., г. Лыткарино, микрорайон 6-й, дом 15Г

Округ:

Юго-Восточный административный округ

Близость метро:

Алма-Атинская

Транспортная доступность:

-

карта

Торговое окружение:

Wildberies,ВкусВилл, аптека Здравсити,Дикси

Общая площадь:

81.6  м2

Этаж:

1

Всего этажей:

17

Тип:

С отдельным входом,Торговая

Электрическая мощность:

15

Высота потолков:

3

Парковка:

У помещения

ФОРМА ВЛАДЕНИЯ:

Собственность

Цена за все:

15 500 000 RUB

Планировка

Николай

Ваш брокер по работе с клиентами

Найдите лучшее место
для жизни, бизнеса, инвестиций

Оставьте свои контакты — с вами свяжется руководитель отдела для презентации нужного вам объекта

Похожие объекты