Id 147445

Домодедово Парк, ул. Современников д.10 / Площадь 92,7 м2 / Продажа ПСН

адрес Московская область, Домодедово, Современников дом 10, ЖК Домодедово Парк

Апартаменты
Многофункциональный
С отдельным входом
Торговая
Офис
Общепит
Новостройка
Медицина

18 540 000 RUB | за все

(за 1 м2 — 200 000 RUB)

площадь 92.7 м2

QR код Qr код

Продается нежилое помещение свободного назначения в ЖК Домодедово Парк по адресу: Московская обл., г.Домодедово, ул. Современников д.10, площадью 92,7 м2. Дом находится на въезде в жилой микрорайон, в окружении жилого массива. До станции метро "Домодедовская" 40 мин на авто. Дом введен в эксплуатацию, ключи на руках.

Торговое соседство: Магнит, Аптеки, Строительные магазины, Бристоль и др.

Технические параметры:
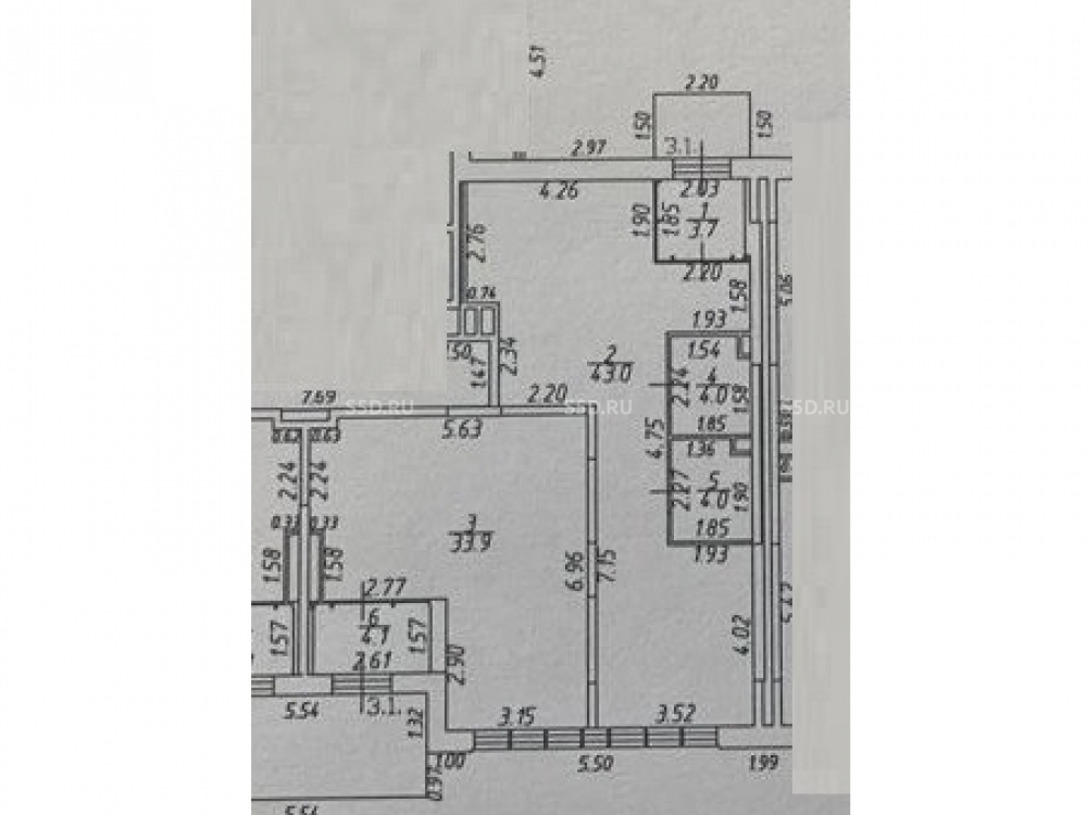
1 этаж 17- ти этажного жилого дома 2023 года постройки, общей площадью 92,7 м2. Один вход с фасада. Зальная планировка. Выделенная электрическая мощность по запросу. Городские коммуникации. Ремонт черновой. Высота потолка 3,4 метра. Витринные окна по фасаду.

Коммерческие условия:
Стоимость объекта: 18 540 000рублей.
Стоимость за м2: 200 000 рублей

Технические характеристики

Тип здания: Апартаменты,Многофункциональный,С отдельным входом,Торговая,Офис,Общепит,Новостройка,Медицина

Общая площадь: 92.7  м2

Этаж: 1

Всего этажей: 17

Электрическая мощность: по запросу

Высота потолков: 3,4 метра

Парковка: -

Коммерческие условия

Цена за все: 18 540 000 RUB

ФОРМА ВЛАДЕНИЯ: -

карта

Расположение

Адрес: Московская область, Домодедово, Современников дом 10, ЖК Домодедово Парк

Округ: Южный административный округ

Близость метро: Домодедовская

Транспортная доступность: До станции метро

Окружение

Торговое окружение: : Магнит, Аптеки, Строительные магазины, Бристоль и др.

Адрес:

Московская область, Домодедово, Современников дом 10, ЖК Домодедово Парк

Округ:

Южный административный округ

Близость метро:

Домодедовская

Транспортная доступность:

До станции метро

карта

Торговое окружение:

: Магнит, Аптеки, Строительные магазины, Бристоль и др.

Общая площадь:

92.7  м2

Этаж:

1

Всего этажей:

17

Тип:

Апартаменты,Многофункциональный,С отдельным входом,Торговая,Офис,Общепит,Новостройка,Медицина

Электрическая мощность:

по запросу

Высота потолков:

3,4 метра

Парковка:

-

ФОРМА ВЛАДЕНИЯ:

-

Цена за все:

18 540 000 RUB

Планировка

Гервас Ксения

Ваш брокер по работе с клиентами

Найдите лучшее место
для жизни, бизнеса, инвестиций

Оставьте свои контакты — с вами свяжется руководитель отдела для презентации нужного вам объекта

Похожие объекты