Id 148581

Москва, НАО, ЖК Прокшино / 84.3 м² / Продажа ПСН

адрес жилой комплекс Прокшино, к11.1.2

С отдельным входом
Торговая

29 620 491 RUB | за все

(за 1 м2 — 351 370 RUB)

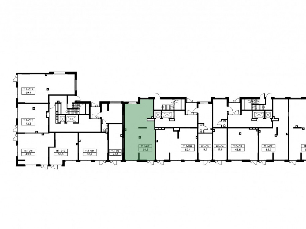
площадь 84.3 м2

QR код Qr код

Продается помещение свободного назначения в ЖК Прокшино, по адресу: Москва, НАО, ЖК Прокшино, площадью 84.3 м².
Первая линия оживленной внутрирайонной улицы – Прокшинского проспекта (активный автомобильный трафик). Первая линия пешеходной диагональной улицы, ведущей к набережной (активный пешеходный трафик, траты внутри района). Пешая доступность до станции метро "Прокшино".

В шаговой доступности Бизнес-квартал Прокшино.
Бизнес-квартал Прокшино - возводится рядом с метро с которым он соединен прямым крытым переходом. Это новый деловой центр Москвы, который включает 5 офисных зданий с торгово-сервисной инфраструктурой. Более 16 тыс. рабочих мест с общей площадью 177 000 м².

Дом сдан.

Технические характеристики:
1 этаж 12-ти этажного жилого дома, площадью 84.3 м², высота потолков 5.36 м, электрическая мощность 25,29 кВт, отдельный вход, витринное остекление, место для вывески на фасаде, нагрузка на пол 800 кг/м².

Коммерческие условия:
Стоимость объекта - 29 620 491 ₽
Стоимость объекта за м² - 351 370 ₽

Продажа по ДКПн.

Технические характеристики

Тип здания: С отдельным входом,Торговая

Общая площадь: 84.3  м2

Этаж: 1

Всего этажей: 12

Электрическая мощность: 25.29 кВт

Высота потолков: 5.36 м

Парковка: Наземная

Коммерческие условия

Цена за все: 29 620 491 RUB

ФОРМА ВЛАДЕНИЯ: -

карта

Расположение

Адрес: жилой комплекс Прокшино, к11.1.2

Близость метро: Прокшино

Транспортная доступность: Пешая доступность до станции метро

Окружение

Торговое окружение: На первых этажа запланирован формат street retail.

Адрес:

жилой комплекс Прокшино, к11.1.2

Округ:

Близость метро:

Прокшино

Транспортная доступность:

Пешая доступность до станции метро

карта

Торговое окружение:

На первых этажа запланирован формат street retail.

Общая площадь:

84.3  м2

Этаж:

1

Всего этажей:

12

Тип:

С отдельным входом,Торговая

Электрическая мощность:

25.29 кВт

Высота потолков:

5.36 м

Парковка:

Наземная

ФОРМА ВЛАДЕНИЯ:

-

Цена за все:

29 620 491 RUB

Планировка

Сухарев Михаил

Ваш брокер по работе с клиентами

Найдите лучшее место
для жизни, бизнеса, инвестиций

Оставьте свои контакты — с вами свяжется руководитель отдела для презентации нужного вам объекта

Похожие объекты