Id 150345

БЦ

адрес газетный 17

Бизнес центр

40 900 000 RUB | в месяц

(за 1 м2 — 32 851 RUB)

площадь 1 245.0 м2

QR код Qr код

Предлагается офисный блок на "Газетном 17" на одном из верхних этажей с замечательным видом! Каждый этаж обладает отличными видовыми характеристиками, панорамные виды на Кремль и исторический центра города. Пешая доступность к шести (!) веткам метро, включая доступ в Москва-Сити без пересадок. Новая отделка помещений, меблировка и оборудование пространства от Business Club с комфортной рассадкой и продуманной компоновкой рабочего пространства. ТРАНСПОРТНАЯ ДОСТУПНОСТЬ Охотный ряд, Театральная, Тверская;
Расположение Газетный пер., д. 17. Общая площадь здания 7 818 м2. Всего этажей в здании 12. Предлагаемые этажи в аренду 10-11, площадью 818,9 кв.м. Готовы к въезду. Ставка за рабочее место, руб./мес. 50 000 (не вкл. НДС), 124 рабочих места.

Технические характеристики

Тип здания: Бизнес центр

Общая площадь: 1245  м2

Этаж: 10

Всего этажей: 12

Электрическая мощность: 35

Высота потолков: 3,5

Парковка: есть

Коммерческие условия

Цена в месяц: 40 900 000 RUB

ФОРМА ВЛАДЕНИЯ: собственность

карта

Расположение

Адрес: газетный 17

Округ: Центральный административный округ

Близость метро: Охотный Ряд,Театральная

Транспортная доступность: отличная

Окружение

Торговое окружение: развито

Адрес:

газетный 17

Округ:

Центральный административный округ

Близость метро:

Охотный Ряд,Театральная

Транспортная доступность:

отличная

карта

Торговое окружение:

развито

Общая площадь:

1245  м2

Этаж:

10

Всего этажей:

12

Тип:

Бизнес центр

Электрическая мощность:

35

Высота потолков:

3,5

Парковка:

есть

ФОРМА ВЛАДЕНИЯ:

собственность

Цена в месяц:

40 900 000 RUB

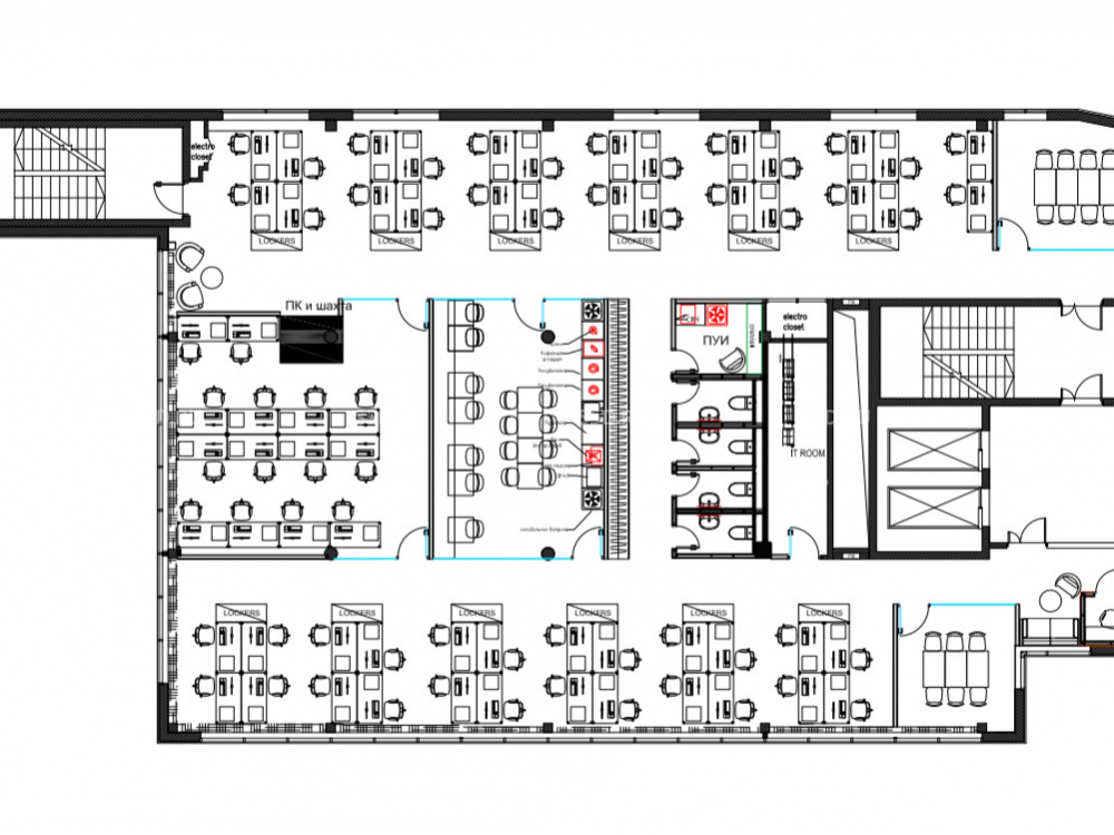
Планировка

Шаклеина Юлия

Ваш брокер по работе с клиентами

Найдите лучшее место
для жизни, бизнеса, инвестиций

Оставьте свои контакты — с вами свяжется руководитель отдела для презентации нужного вам объекта

Похожие объекты