Id 152664

ул. Екатерины Будановой, д. 4, к. 1, м. Рабочий Поселок /Продажа готового арендного бизнеса / ПСН

адрес ул. Екатерины Будановой, д. 4, к. 1

Арендный бизнес
С отдельным входом
Торговая

Окупаемость: 11 лет

Доходность:9.09%

65 000 000 RUB | за все

(за 1 м2 — 144 284 RUB)

площадь 450.5 м2

QR код Qr код

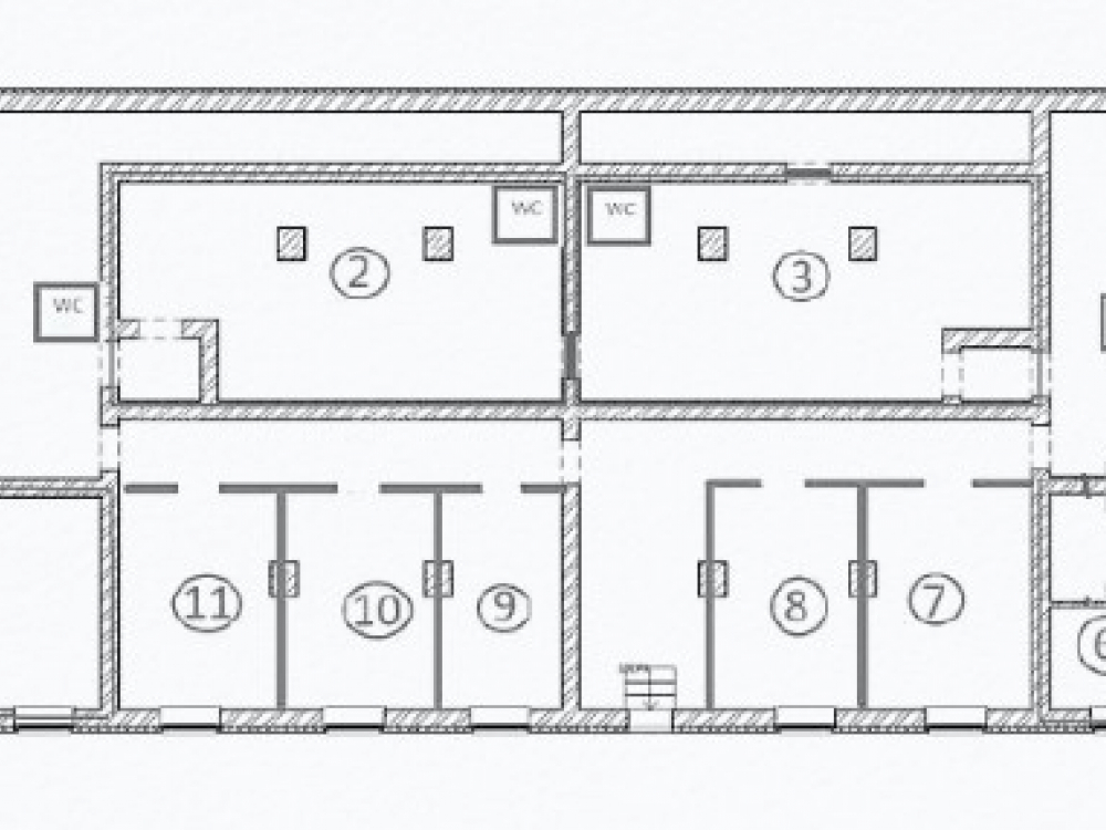
Предлагается к продажа помещение с арендаторами в жилом доме, 450.5 м2, расположенное по адресу: ЗАО, ул. Екатерины Будановой, д. 4, к. 1. Ближайшие станции метро: м. Рабочий поселок. Рядом с домом - остановка общественного транспорта. Удобную транспортную доступность обеспечивают улица Молодогвардейская и проспект Багратиона. Помещение находится в 13 минутах ходьбы от МЦД "Рабочий поселок", станций метро "Кунцевская", "Молодежная". Рядом с домом - остановка общественного транспорта. Плотный жилой массив, ведется активная застройка новых ЖК.

Технические условия:
Общая площадь: 450.5 м2 ( 1-й этаж).
Высота потолков: 2,7 метров.
Выделенная электрическая мощность: 60 к Вт.
100% площадей сдано в аренду.
Отдельный вход с улицы.
Полноценные окна.
Несколько мокрых точек, приточно-вытяжная система вентиляции, центральные коммуникации, несколько с/у, свежий ремонт.
Назначение помещения: Офис, клиентский офис, шоурум.
Стихийный городской паркинг.

Коммерческие условия:
Стоимость продажи: 65 000 000 рублей.
Стоимость за м2: 144 284 рубля.
МАП: 495 000 рублей.
ГАП: 5 940 000 рублей.

Технические характеристики

Тип здания: Арендный бизнес,С отдельным входом,Торговая

Общая площадь: 450.5  м2

Этаж: -1

Всего этажей: 5

Электрическая мощность: 60 кВт

Высота потолков: 2,7 м

Парковка: стихийная

Коммерческие условия

Цена за все: 65 000 000 RUB

ФОРМА ВЛАДЕНИЯ: собственность

Общий МАП: 495 000 RUB (данный МАП является минимальным, при оптимизации арендаторов арендный поток можно значительно увеличить)

Общий ГАП: 5 940 000 RUB

Окупаемость: 11 лет

Доходность: 9.09%

карта

Расположение

Адрес: ул. Екатерины Будановой, д. 4, к. 1

Округ: Западный административный округ

Близость метро: Кунцевская,Рабочий поселок

Транспортная доступность: отличная

Окружение

Торговое окружение: есть

Адрес:

ул. Екатерины Будановой, д. 4, к. 1

Округ:

Западный административный округ

Близость метро:

Кунцевская,Рабочий поселок

Транспортная доступность:

отличная

карта

Торговое окружение:

есть

Общая площадь:

450.5  м2

Этаж:

-1

Всего этажей:

5

Тип:

Арендный бизнес,С отдельным входом,Торговая

Электрическая мощность:

60 кВт

Высота потолков:

2,7 м

Парковка:

стихийная

ФОРМА ВЛАДЕНИЯ:

собственность

Цена за все:

65 000 000 RUB

Общий МАП: 495 000

(данный МАП является минимальным, при оптимизации арендаторов арендный поток можно значительно увеличить)

Общий ГАП:

5 940 000

Окупаемость:

11 лет

Доходность:

9.09%

Планировка

Гервас Ксения

Ваш брокер по работе с клиентами

Найдите лучшее место
для жизни, бизнеса, инвестиций

Оставьте свои контакты — с вами свяжется руководитель отдела для презентации нужного вам объекта

Похожие объекты