Id 153662

Электродный проезд, 16 - 83,9 кв.м / Продажа торгового помещения

адрес Москва, Электродный проезд, 16

С отдельным входом
Торговая

26 009 000 RUB | за все

(за 1 м2 — 310 000 RUB)

площадь 83.9 м2

QR код Qr код

Продажа торгового помещения в нежилом здании по адресу: г. Москва, ВАО, Электродный проезд, д. 16.
Здание расположено на первой Энтузиастов линии домов, в 200 м от ст. метро «Шоссе Энтузиастов», в районе высокой деловой активности и развитой инфраструктуры.

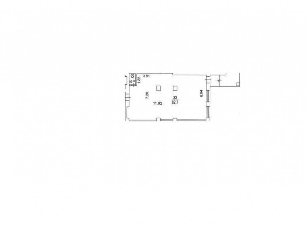
Технические характеристики: общая площадь 83.9 кв.м, 1й этаж. Отдельный вход. Свободная планировка. Панорамные окна. Высота потолков 3 м. Новое остекление. Выполнен ремонт входной группы. Свежий ремонт в помещении, выполнены ремонтные работы по обновлению фасадов по всему зданию.

Коммерческие условия:
Стоимость 26 009 000 рублей
Стоимость кв.м. 310 000 рублей
Продажа по ДКПН от юр. лица

Технические характеристики

Тип здания: С отдельным входом,Торговая

Общая площадь: 83.9  м2

Этаж: 1

Всего этажей: 4

Электрическая мощность: по запросу

Высота потолков: 3 м

Парковка: есть

Коммерческие условия

Цена за все: 26 009 000 RUB

ФОРМА ВЛАДЕНИЯ: Юр.лицо

карта

Расположение

Адрес: Москва, Электродный проезд, 16

Округ: Восточный административный округ

Близость метро: Шоссе Энтузиастов

Транспортная доступность: хорошая

Окружение

Торговое окружение: развитое

Адрес:

Москва, Электродный проезд, 16

Округ:

Восточный административный округ

Близость метро:

Шоссе Энтузиастов

Транспортная доступность:

хорошая

карта

Торговое окружение:

развитое

Общая площадь:

83.9  м2

Этаж:

1

Всего этажей:

4

Тип:

С отдельным входом,Торговая

Электрическая мощность:

по запросу

Высота потолков:

3 м

Парковка:

есть

ФОРМА ВЛАДЕНИЯ:

Юр.лицо

Цена за все:

26 009 000 RUB

Планировка

Гервас Ксения

Ваш брокер по работе с клиентами

Найдите лучшее место
для жизни, бизнеса, инвестиций

Оставьте свои контакты — с вами свяжется руководитель отдела для презентации нужного вам объекта

Похожие объекты