Id 154868

Красногорск, ЖК Большое Путилково, корп.28/ 140,8 кв.м./ Продажа торгового помещения в новостройке

адрес Красногорск, ЖК Большое Путилково, к.28

С отдельным входом
Торговая
Жилой комплекс (мфк)
Новостройка

54 076 999 RUB | за все

(за 1 м2 — 384 070 RUB)

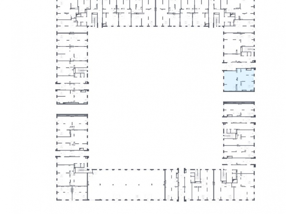
площадь 140.8 м2

QR код Qr код

Предлагается в продажу помещение свободного назначения в ЖК "Большое Путилково" в корп. 28. Объект расположен в окружении плотного жилого массива. Жилой комплекс рассчитан на более 8 000 квартир, более 20 000 жителей. Удобная транспортная доступность и развитая инфраструктура. Жилой комплекс «Большое Путилково» расположен на северо-западе Подмосковья – всего в 2,8 км от Москвы и в 15 минутах езды от метро «Сходненская» и "Планерная".

Торговое окружение: Пятёрочка, стоматология, Грузинская пекарня, Яндекса Маркет, Wow lounge.

Срок получения ключей - 1 кв. 2027 г.

Технические характеристики:
общая площадь 133.3 кв.м. • 1й этаж жилого 25 этажного дома • электрическая мощность 28,16 кВт. • отдельный вход • высота потолков 4,5 метра • витринное остекление.

Коммерческие условия:
• Стоимость - 54 076 999 рублей
• Стоимость за кв.м - 383 961 рубля
• Потенциальный МАП 500 000 руб./ потенциальный ГАП 6 000 000 руб.
• Потенциальный срок окупаемости 9 лет
• Продажа от юр. лица, возможна рассрочка

Технические характеристики

Тип здания: С отдельным входом,Торговая,Жилой комплекс (мфк),Новостройка

Общая площадь: 140.8  м2

Этаж: 1

Всего этажей: 25

Электрическая мощность: 28,16

Высота потолков: 4,5 м

Парковка: Стихийная

Коммерческие условия

Цена за все: 54 076 999 RUB

ФОРМА ВЛАДЕНИЯ: Частная

карта

Расположение

Адрес: Красногорск, ЖК Большое Путилково, к.28

Близость метро: Волоколамская,Митино,Пятницкое шоссе,Сходненская,Ховрино

Транспортная доступность: в 15 минутах езды от метро «Сходневская» и

Окружение

Торговое окружение: Торговое окружение: Пятёрочка, стоматология, Грузинская пекарня, Яндекса Маркет, Wow lounge.

Адрес:

Красногорск, ЖК Большое Путилково, к.28

Округ:

Близость метро:

Волоколамская,Митино,Пятницкое шоссе,Сходненская,Ховрино

Транспортная доступность:

в 15 минутах езды от метро «Сходневская» и

карта

Торговое окружение:

Торговое окружение: Пятёрочка, стоматология, Грузинская пекарня, Яндекса Маркет, Wow lounge.

Общая площадь:

140.8  м2

Этаж:

1

Всего этажей:

25

Тип:

С отдельным входом,Торговая,Жилой комплекс (мфк),Новостройка

Электрическая мощность:

28,16

Высота потолков:

4,5 м

Парковка:

Стихийная

ФОРМА ВЛАДЕНИЯ:

Частная

Цена за все:

54 076 999 RUB

Планировка

Ирина Головина

Ваш брокер по работе с клиентами

Найдите лучшее место
для жизни, бизнеса, инвестиций

Оставьте свои контакты — с вами свяжется руководитель отдела для презентации нужного вам объекта

Похожие объекты