Id 155058

Москва, ЮВАО, ЖК Level Нижегородская, корпус 5 / 63.6 м / Продажа ПСН

адрес Москва, ЖК Левел Нижегородская, 5

Многофункциональный
Новостройка

40 126 758 RUB | за все

(за 1 м2 — 630 924 RUB)

площадь 63.6 м2

QR код Qr код

Помещение свободного назначения в ЖК комфорт-класса в Нижегородском районе, по адресу: Москва, ЮВАО, ЖК Level Нижегородская, корпус 5.
Активно развивающийся район на границе с ЦАО.
Вблизи парки, культурные и социальные объекты. Строятся ЖК комфорт- и премиум класса.

1 этап строительства ЖК предполагает 1420 квартир (3690 жителей).
Выдача ключей: IV кв. 2026 г.

Транспортная доступность:
10 мин. пешком до станции метро «Нижегородская»
10 мин. на авто до Третьего транспортного кольца
14 мин. на авто до Садового кольца
20 мин. на авто до Кремля

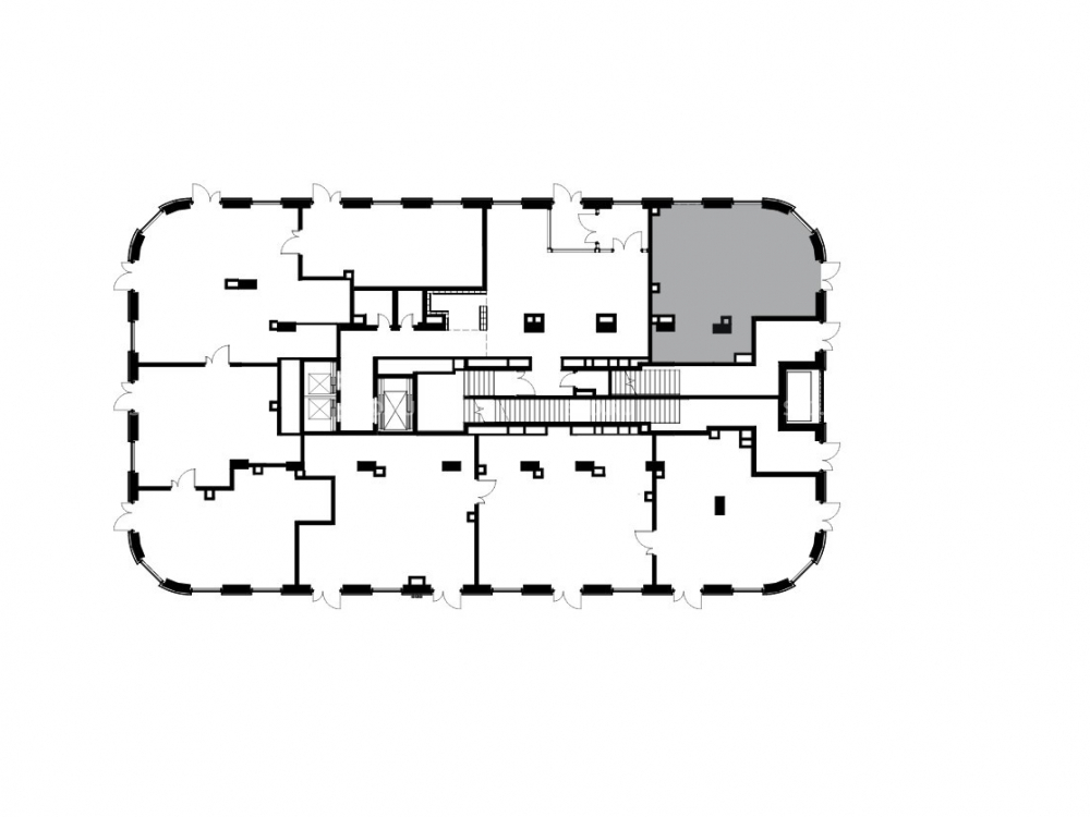
Технические характеристики: помещение площадью 63.6 кв.м. на 1-м этаже 29-ти этажного жилого дома. Вторая линия. Открытая планировка. Потолки 4.8 м., электроэнергия 15 кВт (есть техническая возможность для увеличения), витринное остекление. 1 отдельный вход с улицы. Мокрая точка.

Коммерческие условия:
стоимость объекта: 40 126 758 рублей.
стоимость объекта за м2: 630 923 рублей.
продажа по ДДУ, собственник юр. лицо.

Технические характеристики

Тип здания: Многофункциональный,Новостройка

Общая площадь: 63.6  м2

Этаж: 1

Всего этажей: 29

Электрическая мощность: 15 кВт

Высота потолков: 4,8 м

Парковка: наземная и подземная

Коммерческие условия

Цена за все: 40 126 758 RUB

ФОРМА ВЛАДЕНИЯ: в собственности у юр лица

карта

Расположение

Адрес: Москва, ЖК Левел Нижегородская, 5

Округ: Юго-Восточный административный округ

Близость метро: Нижегородская

Транспортная доступность: в 10 мин от м Нижегородская

Окружение

Торговое окружение: магазины, аптеки, кафе, ПВЗ

Адрес:

Москва, ЖК Левел Нижегородская, 5

Округ:

Юго-Восточный административный округ

Близость метро:

Нижегородская

Транспортная доступность:

в 10 мин от м Нижегородская

карта

Торговое окружение:

магазины, аптеки, кафе, ПВЗ

Общая площадь:

63.6  м2

Этаж:

1

Всего этажей:

29

Тип:

Многофункциональный,Новостройка

Электрическая мощность:

15 кВт

Высота потолков:

4,8 м

Парковка:

наземная и подземная

ФОРМА ВЛАДЕНИЯ:

в собственности у юр лица

Цена за все:

40 126 758 RUB

Планировка

Гервас Ксения

Ваш брокер по работе с клиентами

Найдите лучшее место
для жизни, бизнеса, инвестиций

Оставьте свои контакты — с вами свяжется руководитель отдела для презентации нужного вам объекта

Похожие объекты