Id 155727

Москва, ул. Маршала Савицкого, 4к2/ 55,7 кв.м./ продажа торгового помещения с арендатором

адрес Москва, улица Маршала Савицкого, 4к2

Арендный бизнес
С отдельным входом
Торговая

Окупаемость: 12.1 года

Доходность:8.28%

10 800 000 RUB | за все

(за 1 м2 — 193 896 RUB)

площадь 55.7 м2

QR код Qr код

Предлагается в продажу торговое помещение в по адресу: Москва, ул. Маршала Савицкого, 4к2. Рядом автобусные остановки до станции метро Бульвара Дмитрия Донского и МЦД D2 Щербинка. Дом 2009 года постройки. Плотная жилая застройка.

Торговое окружение: Пятёрочка, Красное и Белое, аптека Горздрав, Wildberries, кондитерская БонКафе и т.д.

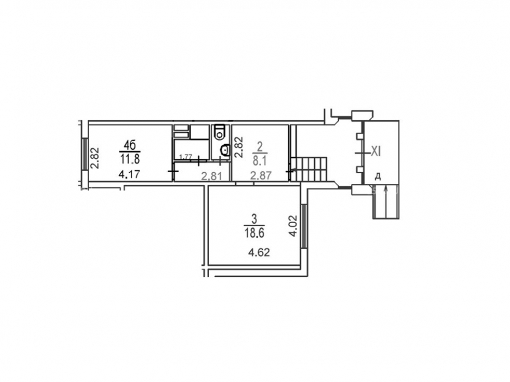
Технические характеристики: общая площадь 55,7 кв.м. • первый этаж жилого 15 этажного дома • электроэнергия 15 кВт. • высота потолка 2,7 м. • отдельный вход • в помещении выполнена отделка • все коммуникации центральные .

Коммерческие условия:
• Стоимость 10 800 000 рублей
• Стоимость кв.м. 193 896 рублей
• Арендатор: театральная студия, срок аренды 11 месяцев
• МАП 75 000 руб./ ГАП 900 000 руб.
• Коммунальные расходы оплачиваются арендатором
• Окупаемость 12 лет
• Продажа по ДКПн от физ. лица

Технические характеристики

Тип здания: Арендный бизнес,С отдельным входом,Торговая

Общая площадь: 55.7  м2

Этаж: 1

Всего этажей: 15

Электрическая мощность: 15 кВт

Высота потолков: 2,7

Парковка: наземная

Коммерческие условия

Цена за все: 10 800 000 RUB

ФОРМА ВЛАДЕНИЯ: ДКП

Общий МАП: 75 000 RUB (данный МАП является минимальным, при оптимизации арендаторов арендный поток можно значительно увеличить)

Общий ГАП: 900 000 RUB

Окупаемость: 12.1 года

Доходность: 8.28%

карта

Расположение

Адрес: Москва, улица Маршала Савицкого, 4к2

Близость метро: Бульвар Дмитрия Донского,Щербинка

Транспортная доступность: метро Бульвара Дмитрия Донского и МЦД D2 Щербинка

Окружение

Торговое окружение: Пятёрочка, Красное и Белое, аптека Горздрав, Wildberries, кондитерская БонКафе и т.д.

Адрес:

Москва, улица Маршала Савицкого, 4к2

Округ:

Близость метро:

Бульвар Дмитрия Донского,Щербинка

Транспортная доступность:

метро Бульвара Дмитрия Донского и МЦД D2 Щербинка

карта

Торговое окружение:

Пятёрочка, Красное и Белое, аптека Горздрав, Wildberries, кондитерская БонКафе и т.д.

Общая площадь:

55.7  м2

Этаж:

1

Всего этажей:

15

Тип:

Арендный бизнес,С отдельным входом,Торговая

Электрическая мощность:

15 кВт

Высота потолков:

2,7

Парковка:

наземная

ФОРМА ВЛАДЕНИЯ:

ДКП

Цена за все:

10 800 000 RUB

Общий МАП: 75 000

(данный МАП является минимальным, при оптимизации арендаторов арендный поток можно значительно увеличить)

Общий ГАП:

900 000

Окупаемость:

12.1 года

Доходность:

8.28%

Планировка

Надежда Лежнина

Ваш брокер по работе с клиентами

Найдите лучшее место
для жизни, бизнеса, инвестиций

Оставьте свои контакты — с вами свяжется руководитель отдела для презентации нужного вам объекта

Похожие объекты