Id 156078

Дмитровское шоссе 73Б - 215 м2 / Продажа ГАБ Самокат

адрес Москва, Дмитровское шоссе, 73Б

Арендный бизнес
С отдельным входом
Торговая

Окупаемость: 9.7 года

Доходность:10.34%

75 000 000 RUB | за все

(за 1 м2 — 348 837 RUB)

площадь 215.0 м2

QR код Qr код

Продажа ГАБ с федеральным арендатором на 1-м этаже жилого дома 2021 года постройки в ЖК комфорт-класса "Тринити", по адресу: г. Москва, САО, район Западное Дегунино, Дмитровское шоссе, 73Б. Станция метро Верхние Лихоборы находится в 5-ми минутах пешком.

Технические характеристики:
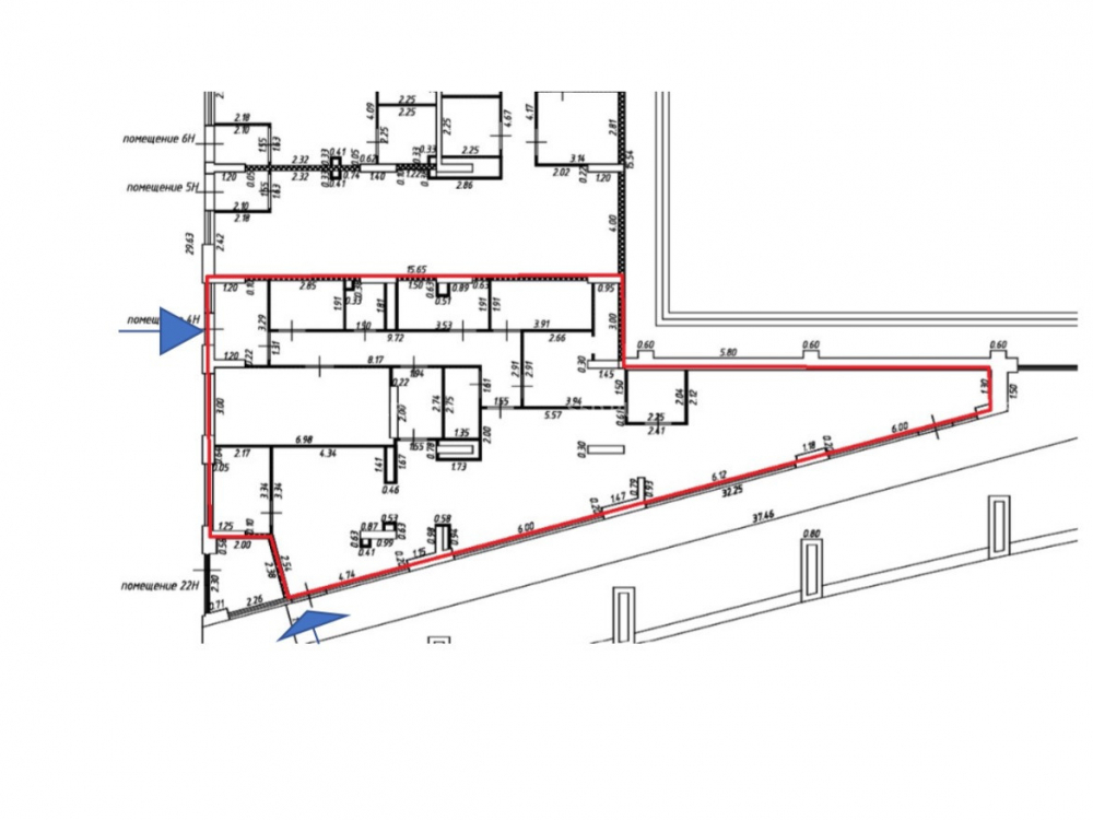
1-й этаж жилого дома. Общая площадь 215 м2. 3 отдельных входа с улицы. Витринное остекление. Высота потолков 3 м. Выделенная мощность 30 кВт. Все центральные коммуникации.

Коммерческие условия:
Стоимость объекта - 75 000 000 руб.
Стоимость за м2 - 348 837 руб.
Федеральный арендатор Самокат.
МАП - 650 000 руб. ГАП - 7 800 000 руб.
ДДА на 5 лет от 04.25 г. Индексация автоматическая 6% с 3-го года.
Коммунальные платежи оплачиваются арендатором отдельно.
Окупаемость: 9,6 лет
Продажа по ДКПН. Физ. лицо. УСН.

Технические характеристики

Тип здания: Арендный бизнес,С отдельным входом,Торговая

Общая площадь: 215  м2

Этаж: 1

Всего этажей: 26

Электрическая мощность: 30 кВт.

Высота потолков: 3 м.

Парковка: перед фасадом.

Коммерческие условия

Цена за все: 75 000 000 RUB

ФОРМА ВЛАДЕНИЯ: Фи.лицо. УСН.

Общий МАП: 650 000 RUB (данный МАП является минимальным, при оптимизации арендаторов арендный поток можно значительно увеличить)

Общий ГАП: 7 800 000 RUB

Окупаемость: 9.7 года

Доходность: 10.34%

карта

Расположение

Адрес: Москва, Дмитровское шоссе, 73Б

Округ: Северный административный округ

Близость метро: Верхние Лихоборы

Транспортная доступность: 100 метров от станции метро Верхние Лихоборы

Окружение

Торговое окружение: пункты выдачи Озон, ВБ, супермаркет Верный.

Адрес:

Москва, Дмитровское шоссе, 73Б

Округ:

Северный административный округ

Близость метро:

Верхние Лихоборы

Транспортная доступность:

100 метров от станции метро Верхние Лихоборы

карта

Торговое окружение:

пункты выдачи Озон, ВБ, супермаркет Верный.

Общая площадь:

215  м2

Этаж:

1

Всего этажей:

26

Тип:

Арендный бизнес,С отдельным входом,Торговая

Электрическая мощность:

30 кВт.

Высота потолков:

3 м.

Парковка:

перед фасадом.

ФОРМА ВЛАДЕНИЯ:

Фи.лицо. УСН.

Цена за все:

75 000 000 RUB

Общий МАП: 650 000

(данный МАП является минимальным, при оптимизации арендаторов арендный поток можно значительно увеличить)

Общий ГАП:

7 800 000

Окупаемость:

9.7 года

Доходность:

10.34%

Планировка

Лев

Ваш брокер по работе с клиентами

Найдите лучшее место
для жизни, бизнеса, инвестиций

Оставьте свои контакты — с вами свяжется руководитель отдела для презентации нужного вам объекта

Похожие объекты