Id 156371

МО, г.о. Ленинский, Римский проезд, 15. / 319 кв.м. / Продажа торгового помещения в ЖК Римский

адрес посёлок Развилка, Римский проезд, 15

С отдельным входом
Торговая
Жилой комплекс (мфк)
Новостройка
Медицина

120 000 000 RUB | за все

(за 1 м2 — 376 176 RUB)

площадь 319.0 м2

QR код Qr код

Продажа торгового помещения в ЖК «Римский». Адрес: Московская область, г.о. Ленинский, Римский проезд, 15.
ЖК «Римский» — 8 монолитных корпусов переменной этажности. Дома уже введены, идёт заселение. Более 8 000 квартир и частных домов в радиусе 1 км.
Особенность ЖК — двухуровневая модель организации пространства. Коммерческие объекты и дороги расположены на этаж ниже жилой зоны.

Помещение находится в 2 км от МКАД по Бесединскому или Каширскому шоссе.
10 минут от ст. метро «Домодедовская» на автомобиле

Подходит для медицинских учреждений.
В пешеходной зоне расположены: 4 детских сада, общеобразовательная школа на 1350 мест.

Торговое окружение: Пятерочка, ПВЗ, аптеки, кафе Здрасте

Технические характеристики:
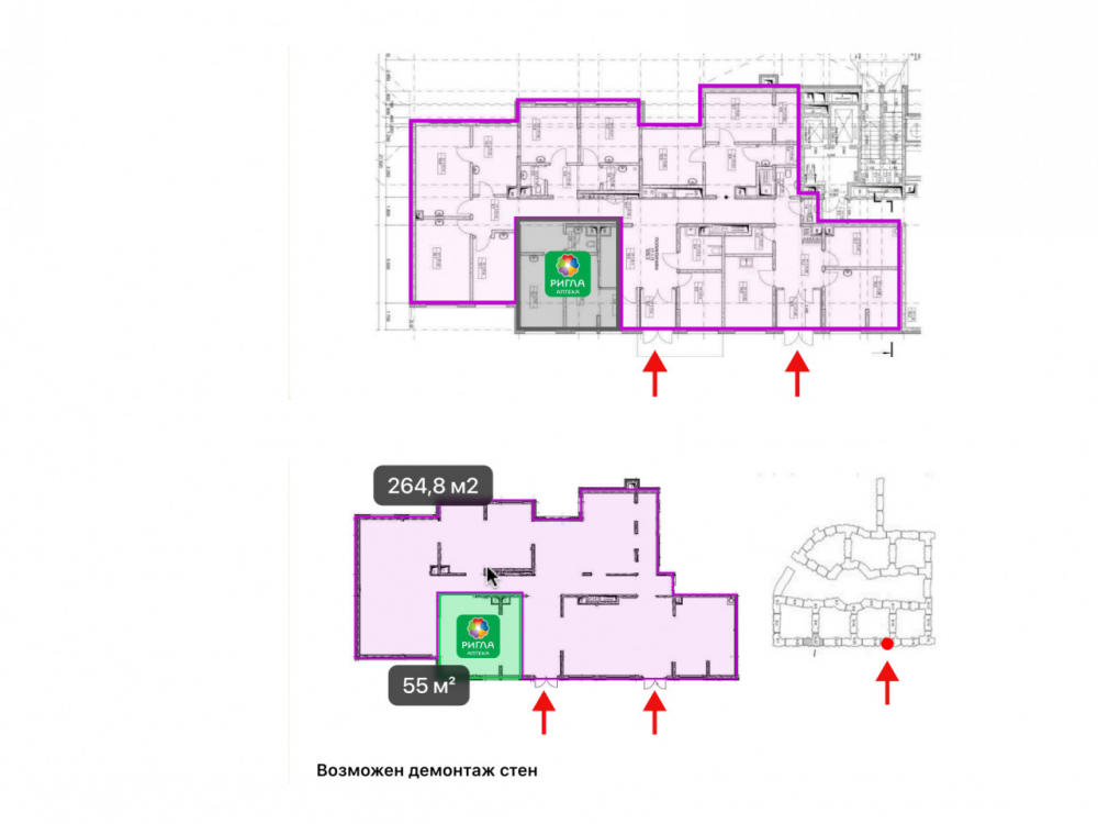
Общая площадь 319 кв.м., 55 кв.м. из них занимает аптека "Ригла".
Первый этаж жилого дома. Под помещением отсутствует паркинг. 2 Отдельных входа с фасада. Витринное остекление. Место для вывески. Высота потолков 4,8 метров. Эл. мощность – 63 кВт (возможно увеличение). Мокрая точка.

Свободная площадь: 264 кв.м.
Арендованная: 55 кв.м. Аптека "Ригла", ДА на 7 лет с 2025 г, индексация 5%. МАП: 165 000 руб.

Коммерческие условия:
Стоимость продажи: 120 000 000 руб.
Стоимость кв.м.: 376 125 руб.

Технические характеристики

Тип здания: С отдельным входом,Торговая,Жилой комплекс (мфк),Новостройка,Медицина

Общая площадь: 319  м2

Этаж: 1

Всего этажей: 10

Электрическая мощность: 63 кВт

Высота потолков: 4,8 м

Парковка: на улице, под помещение паркинга нет

Коммерческие условия

Цена за все: 120 000 000 RUB

ФОРМА ВЛАДЕНИЯ: -

карта

Расположение

Адрес: посёлок Развилка, Римский проезд, 15

Округ: Юго-Восточный административный округ

Близость метро: Домодедовская

Транспортная доступность: 10 минут от ст. метро «Домодедовская» на автомобиле

Окружение

Торговое окружение: Пятерочка, ПВЗ, аптеки, кафе Здрасте

Адрес:

посёлок Развилка, Римский проезд, 15

Округ:

Юго-Восточный административный округ

Близость метро:

Домодедовская

Транспортная доступность:

10 минут от ст. метро «Домодедовская» на автомобиле

карта

Торговое окружение:

Пятерочка, ПВЗ, аптеки, кафе Здрасте

Общая площадь:

319  м2

Этаж:

1

Всего этажей:

10

Тип:

С отдельным входом,Торговая,Жилой комплекс (мфк),Новостройка,Медицина

Электрическая мощность:

63 кВт

Высота потолков:

4,8 м

Парковка:

на улице, под помещение паркинга нет

ФОРМА ВЛАДЕНИЯ:

-

Цена за все:

120 000 000 RUB

Планировка

Гервас Ксения

Ваш брокер по работе с клиентами

Найдите лучшее место
для жизни, бизнеса, инвестиций

Оставьте свои контакты — с вами свяжется руководитель отдела для презентации нужного вам объекта

Похожие объекты