Id 157421

г. Москва, Войковский, Старопетровский проезд, корп. 3/ 47,4 кв.м./ продажа торгового помещения в ЖК бизнес класса Level Войковская

адрес Москва, ЖК Левел Войковская, корп. 4

С отдельным входом
Торговая
Жилой комплекс (мфк)
Новостройка

48 014 559 RUB | за все

(за 1 м2 — 1 012 965 RUB)

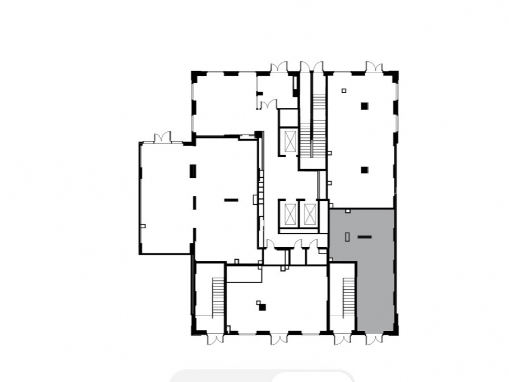
площадь 47.4 м2

QR код Qr код

Предлагается в продажу торговое помещение свободного назначения в Войковском районе в ЖК бизнес класса Level Войковская по адресу: г. Москва, Старопетровский проезд, корп. 3. Проект представлен 5 зданиями высотой от 20 до 26 этажей. На первых этажах размещены коммерческие помещения под кафе, пекарни и магазины. Проект отличает удобное расположение и прекрасная транспортная доступность как для автомобилистов, так и для пешеходов. От жилого комплекса до станции МЦК «Балтийская» — 7 минут пешком, до метро «Войковская» — 11 минут. Удобный выезд на одну из основных магистралей города — Ленинградское шоссе — позволит добраться на автомобиле за 8 минут до ТТК и за 11 минут до Садового кольца.

Торговое окружение: ТЦ Метрополис, СМ-Стоматология, фитнес клуб Nova.

Срок ввода в эксплуатацию - 3 кв. 2028 г.

Технические характеристики: общая площадь 47,4 кв.м. • первый этаж в жилом 26 этажного дома • высота потолков 7,95 метров • электроэнергия 12 кВт. • отдельный вход с улицы • 1я линия • без отделки • центральные коммуникации.

Коммерческие условия:
• Стоимость 48 014 559 рублей
• Стоимость кв.м. 1 012 965 рублей
• Продажа по договору от юр.лица
• Возможна рассрочка с первоначальным взносом от 30%, остаток до конца строительства

Технические характеристики

Тип здания: С отдельным входом,Торговая,Жилой комплекс (мфк),Новостройка

Общая площадь: 47.4  м2

Этаж: 1

Всего этажей: 26

Электрическая мощность: 12 кВт

Высота потолков: 7,95

Парковка: наземная, подземная

Коммерческие условия

Цена за все: 48 014 559 RUB

ФОРМА ВЛАДЕНИЯ: ДДУ

карта

Расположение

Адрес: Москва, ЖК Левел Войковская, корп. 4

Округ: Северный административный округ

Близость метро: Балтийская,Войковская

Транспортная доступность: 100 метров от станции МЦК «Балтийская»

Окружение

Торговое окружение: жилой массив

Адрес:

Москва, ЖК Левел Войковская, корп. 4

Округ:

Северный административный округ

Близость метро:

Балтийская,Войковская

Транспортная доступность:

100 метров от станции МЦК «Балтийская»

карта

Торговое окружение:

жилой массив

Общая площадь:

47.4  м2

Этаж:

1

Всего этажей:

26

Тип:

С отдельным входом,Торговая,Жилой комплекс (мфк),Новостройка

Электрическая мощность:

12 кВт

Высота потолков:

7,95

Парковка:

наземная, подземная

ФОРМА ВЛАДЕНИЯ:

ДДУ

Цена за все:

48 014 559 RUB

Планировка

Никифоров Андрей

Ваш брокер по работе с клиентами

Найдите лучшее место
для жизни, бизнеса, инвестиций

Оставьте свои контакты — с вами свяжется руководитель отдела для презентации нужного вам объекта

Похожие объекты