Id 157439

ЖК Lucky / улица Костикова 4к4 / 126.9 м² / Аренда помещения свободного назначения

адрес Москва, улица Костикова, 4к4

Многофункциональный
С отдельным входом
Торговая
Жилой комплекс (мфк)

1 522 800 RUB | в месяц

(за 1 м2 — 12 000 RUB)

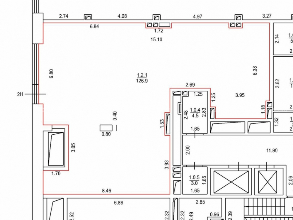
площадь 126.9 м2

QR код Qr код

Предлагается в аренду помещение свободного назначения в ЖК премиум класса Lucky, по адресу: г. Москва, ЦАО, р-н Пресненский, улица Костикова 4к4. Lucky - это жилой квартал площадью 4.5 гектаров с современными жилыми домами, историческими зданиями с инфраструктурой, офисными центрами класса А и собственными парковыми зонами. В квартале есть всё самое главное для качественной жизни: гастрономические рестораны, кафе, детский сад, школа, спортивный клуб, спортивные площадки, образовательные студии и шоурумы. Территория охраняемая, огороженная, установлено видеонаблюдение. Квартал расположен между улицами 2-й Звенигородская и Костикова, в 200 метрах от станции метро "Улица 1905 года". До "Москва-Сити" и ТТК всего 7 минут, а до Садового кольца всего 10 минут на машине.


Технические характеристики:
Общая площадь 126.9 м². 1-й этаж жилого дома. 1-я линия 2-й Звенигородской улицы. Свободная планировка. Отдельный вход. Эл. мощность 26 кВт. Витринное остекление. Без отделки. Высота потолков 6м. Отлично подойдёт под любой вид деятельности, кроме общепита полного цикла.


Коммерческие условия:
Ставка аренды в месяц - 1 522 800 руб.
Ставка аренды за м² в месяц - 12 000 руб.
Ставка аренды за м² в год - 144 000 руб.
Прямая аренда. УСН.

Технические характеристики

Тип здания: Многофункциональный,С отдельным входом,Торговая,Жилой комплекс (мфк)

Общая площадь: 126.9  м2

Этаж: 1

Всего этажей: 15

Электрическая мощность: 26 кВт.

Высота потолков: 6 м.

Парковка: Перед фасадом

Коммерческие условия

Цена в месяц: 1 522 800 RUB

ФОРМА ВЛАДЕНИЯ: ИП.УСН.

карта

Расположение

Адрес: Москва, улица Костикова, 4к4

Округ: Центральный административный округ

Близость метро: Улица 1905 года

Транспортная доступность: ТТК и Москва-сити всего в 7-ми минутах на автомобиле, до Садового кольца - 10 минут на автомобиле, 200 метров до станции метро улица 1905 года

Окружение

Торговое окружение: Магазин парфюмерии и косметики-салон красоты visage.concept Lucky, магазин цветов Hotel des Fleurs, аптека Ригла, магазин Вкусвилл, алкогольный бутик SimpleWine

Адрес:

Москва, улица Костикова, 4к4

Округ:

Центральный административный округ

Близость метро:

Улица 1905 года

Транспортная доступность:

ТТК и Москва-сити всего в 7-ми минутах на автомобиле, до Садового кольца - 10 минут на автомобиле, 200 метров до станции метро улица 1905 года

карта

Торговое окружение:

Магазин парфюмерии и косметики-салон красоты visage.concept Lucky, магазин цветов Hotel des Fleurs, аптека Ригла, магазин Вкусвилл, алкогольный бутик SimpleWine

Общая площадь:

126.9  м2

Этаж:

1

Всего этажей:

15

Тип:

Многофункциональный,С отдельным входом,Торговая,Жилой комплекс (мфк)

Электрическая мощность:

26 кВт.

Высота потолков:

6 м.

Парковка:

Перед фасадом

ФОРМА ВЛАДЕНИЯ:

ИП.УСН.

Цена в месяц:

1 522 800 RUB

Планировка

Лев

Ваш брокер по работе с клиентами

Найдите лучшее место
для жизни, бизнеса, инвестиций

Оставьте свои контакты — с вами свяжется руководитель отдела для презентации нужного вам объекта

Похожие объекты